Добавить в корзинуПозвонить
Найти в Дзене
АртСтрой

Каркасный дом 7,5х11,5 м по проекту «под заказчика». Смотрите какой дом получился вместе с отделкой

Не нашли у нас подходящий проект для вашего будущего жилья? Заказывайте индивидуальное проектирование, благодаря которому появился, например, этот дом
Оглавление

Мы предлагаем нашим клиентам множество проектов, по которым возводим разнообразные каркасные дома. Но иногда случается, что они не находят «свой» вариант, тогда создается проект «под заказчика». Так было и с этим домиком, который строители нашей компании возвели в деревне Третьяково Клинского района Московской области.

Вид построенного дома
Вид построенного дома

Как все задумывалось

По пожеланию будущих хозяев в нем предполагалось наличие:

  • Тамбура.
  • Гостиной, совмещенной с кухней.
  • Двух спален.
  • Сан. узла.
  • Тех. помещения.

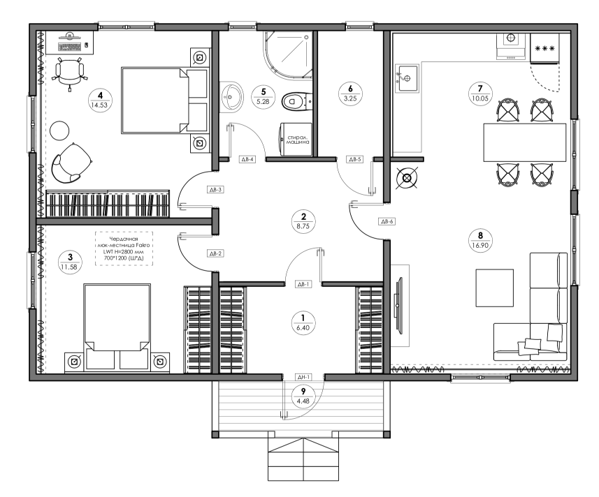
Планировка построенного дома:

Планировка дома 7,5х11,5 м по индивидуальному проекту
Планировка дома 7,5х11,5 м по индивидуальному проекту

Внешне этот дом с габаритами 7,5х11,5 м должен был выглядеть так:

От фундамента до внутренней отделки

Бывает, что мы начинаем сооружение каркаса на готовом фундаменте, но здесь нами выполнялась вся работа «с нуля».

Мы сделали:

  • Свайно-винтовой фундамент.
  • Каркас из строганной доски 200 мм.
  • Ветрозащиту «Изоплат» и защиту от грызунов.
  • Утепление пола и стен в 225 мм.
  • Кровлю из матовой металлочерепицы с утеплением в 250 мм.
  • Отделку фасада из тонкопиленой доски.
  • Установку окон «Рехау».

Чтобы в сданный нами дом можно было сразу заезжать, в нем обустроили:

  • Электрику и вентиляцию.
  • Водосточную систему.
  • Сантехнику и септик.

На пол был положен ламинат. А «второй свет» в гостиной визуально увеличил ее объем.

Больше интересных проектов каркасников можно найти здесь, а просмотреть другие построенные нами дома - в этом разделе

Если этот дом вам понравился, ставьте лайк и пишите комментарии!

Чтобы сравнить его с типовыми проектами АртСтроя, переходите на наш сайт.

У нас на канале можно просмотреть обзоры других готовых работ по возведению каркасных домов: