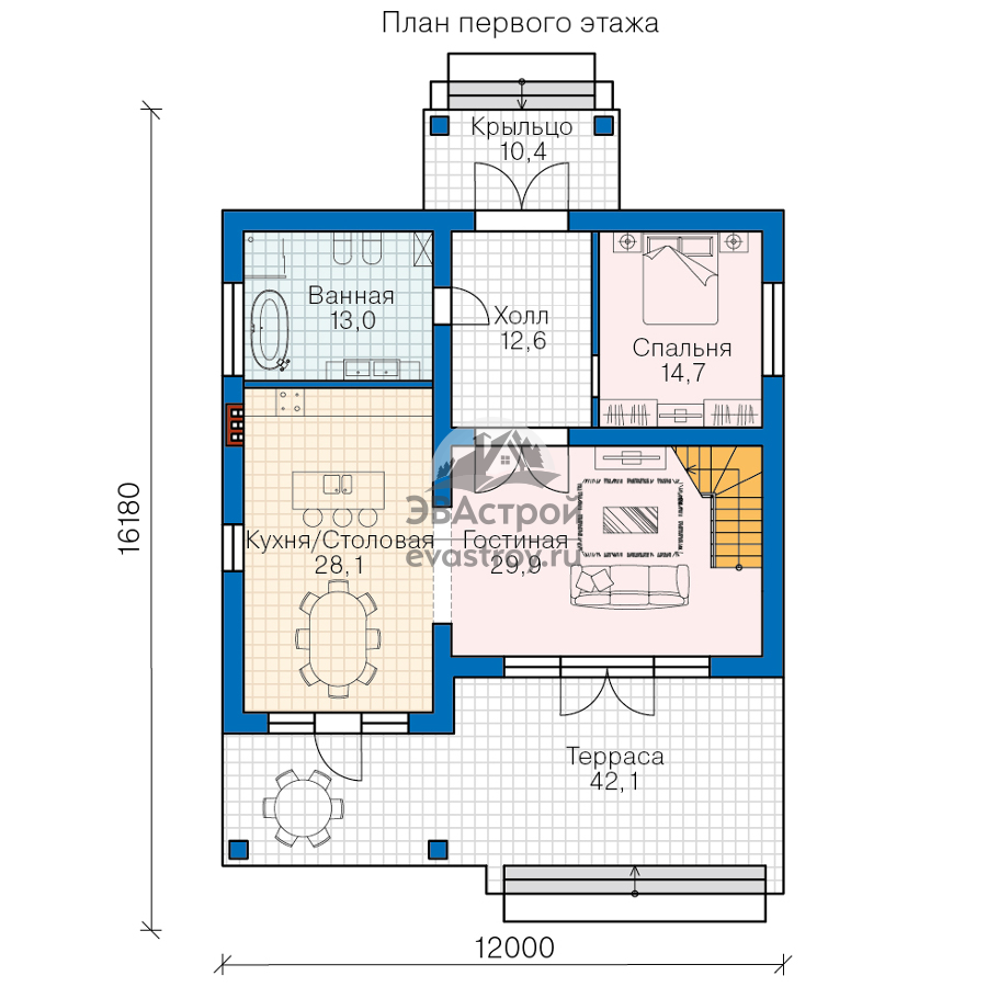
Общая площадь: 157.3 м2;
Габариты дома: 12 x 16.18 м;
Этажность: 2 ;
Фундамент: свайно-ростверковый ж/б;
Общая площадь: 157.3 м2;
Габариты дома: 12 x 16.18 м;
Этажность: 2 ;
Фундамент: свайно-ростверковый ж/б;
...Читать далее
Общая площадь: 157.3 м2;
Габариты дома: 12 x 16.18 м;
Этажность: 2 ;
Фундамент: свайно-ростверковый ж/б;
Материал стен: газобетонные блоки 400 ;
Перекрытия: монолитные ж/б;
Крыша: чердачная ;
Кровля: ментно-песчаная черепица ;
Фасад: камень;
Стиль: Классический;
Проект LG-98 может быть реализован на вашем участке силами строительных бригад «Эвастрой». Для заключения договора строительства или покупки проекта звоните +7 (499) 408-42-89 или обращайтесь онлайн.
Подписывайтесь на канал, ставьте лайки.
Каждый день выпускаем новый и полезный материал.