Два небольших, но удобных дома с гаражом, площадью около 130 м2. По планировочной схеме дома похожи, но внешне - совершенно разные.
Два небольших, но удобных дома с гаражом, площадью около 130 м2. По планировочной схеме дома похожи, но внешне - совершенно разные.
...Читать далее
Оглавление
Сегодня представляем два проекта небольших, но удобных домов с гаражом, площадью около 130 м2.
По планировочной схеме дома похожи, но внешне - совершенно разные. Первый - Поволжье - ближе к стилю шале. Второй, Шампань, выполнен в средиземноморском стиле.
Оба дома имеют ширину чуть более 9 метров, и их можно построить на участке шириной от 17 метров.
Все проекты узких домов ИНВАПОЛИС здесь
Все проекты домов с гаражом здесь
Поволжье 132 м2
Дом с мансардным вторым этажом, в стиле шале или европейском.
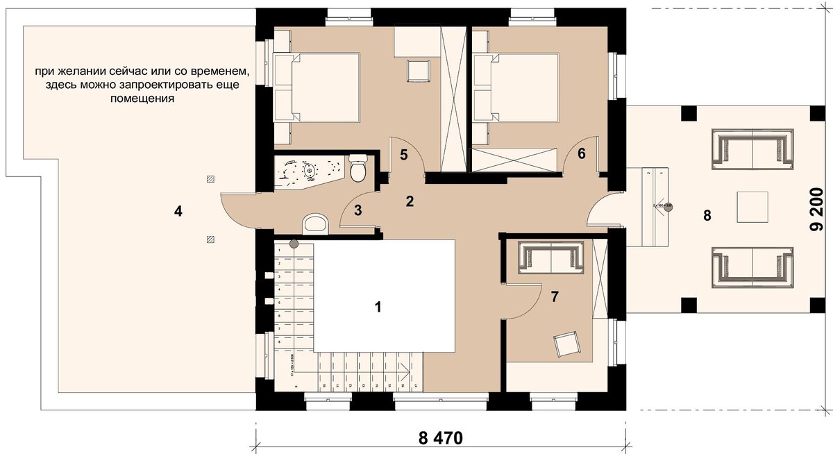
План первого этажа - общие пространства и одна спальня
Описание дома и информация о стоимости и покупке проекта ПОВОЛЖЬЕ
Шампань 131 м2
Этот дом - находка для любителей отдыха на чистом воздухе - можно наслаждаться видами окрестностей и с балкона, и с террасы 1-го этажа
Первый этаж - гостиная, спальня и гараж
Описание дома и информация о стоимости и покупке проекта ШАМПАНЬ
Подписывайтесь на наш канал ДЗЕН, если вам интересны наши проектов домов.