Найти в Дзене
ПИК Северный Город

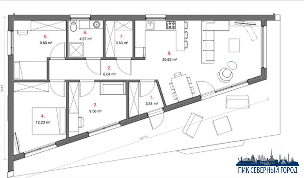
Быстровозводимый каркасный дом по проекту "Нео"

Дом по финскому быстровозводимому ( 25 дней ) проекту "Нео", габаритные размеры 14.0х8.5 м. максимальная высота 3.2 м, общая площадь строения 79 м.кв. В основании проекта заложен самостоящий деревянный каркас. В доме предусмотрены 3 спальных помещения, кухня - столовая, гостинная, санузел, техническое помещение. Архитектурные особенности, площадь застройки трапецевидной формы, объемный зал, кровля плоская в базе неэксплуатируемая ( дополнительно организую солярий + 58.000 руб).
Фундамент - свайно-ростверковый (опционально система "Теплый пол" + 120.000 руб), Основной каркас и несущие конструкции - деревянный каркас (пиломатериал хвойных пород, сухой), толщина теплого контура 250 мм, перегородки 150 мм, утепление - базальтовые маты 150 мм. Перекрытия по деревянным фермам - 200 мм.
Кровля плоская неэксплуатируемая, материал кровли битумный наплавляемый, мембрана ПВХ
Внешняя отделка - деревянный планкен, фиброцементный сайдинг, металлический архитектурный декор, штукатурка фасадная по ЦСП.
Внутренняя отделка под чистовую - ГВЛ плита, фанера ФСФВ Окна и двери по проекту.
Коммуникации по вашему заданию
Дом по финскому быстровозводимому ( 25 дней ) проекту "Нео", габаритные размеры 14.0х8.5 м. максимальная высота 3.2 м, общая площадь строения 79 м.кв. В основании проекта заложен самостоящий деревянный каркас. В доме предусмотрены 3 спальных помещения, кухня - столовая, гостинная, санузел, техническое помещение. Архитектурные особенности, площадь застройки трапецевидной формы, объемный зал, кровля плоская в базе неэксплуатируемая ( дополнительно организую солярий + 58.000 руб). Фундамент - свайно-ростверковый (опционально система "Теплый пол" + 120.000 руб), Основной каркас и несущие конструкции - деревянный каркас (пиломатериал хвойных пород, сухой), толщина теплого контура 250 мм, перегородки 150 мм, утепление - базальтовые маты 150 мм. Перекрытия по деревянным фермам - 200 мм. Кровля плоская неэксплуатируемая, материал кровли битумный наплавляемый, мембрана ПВХ Внешняя отделка - деревянный планкен, фиброцементный сайдинг, металлический архитектурный декор, штукатурка фасадная по ЦСП. Внутренняя отделка под чистовую - ГВЛ плита, фанера ФСФВ Окна и двери по проекту. Коммуникации по вашему заданию
-2
-3
-4
-5
-6
-7