Найти в Дзене

БАЛТИКА 288 м2 - проект респектабельного большого дома с красивой лестницей.

БАЛТИКА – один из самых любимых нашими Заказчиками коттеджей в размерном ряду 250-300 м2. Он представительный, строгий и практичный. В меру красив и категорически удобен. Внутри очень необычная планировка и стильные интерьеры. 👇 Похожий дом в немного другом стиле ПЛАНИРОВКА В доме мало внутренних капитальных стен, так что планировка может меняться. Ниже - типовой вариант планов этажей. Лестница в центре плана позволяет рационально разместить вокруг неё помещения. Одновременно лестница - композиционный центр интерьера, - при движении по ней виды раскрываются с разных точек. Цокольный и первый этажи отданы общим помещениям, размещенным в едином пространстве. Благодаря этому интерьер очень эффектный, кругом свет и простор. 👇 почитать о преимуществах лофт-гостиных Эскизы интерьеров Конструктивные особенности ФУНДАМЕНТЫ – ленточный монолитный на глубину промерзания. Возможен индивидуальный проект фундамента под ваши грунты 👇 О типах фундаментов СТЕНЫ – газосиликатные блоки с облицовкой
Оглавление

БАЛТИКА – один из самых любимых нашими Заказчиками коттеджей в размерном ряду 250-300 м2.

Он представительный, строгий и практичный. В меру красив и категорически удобен. Внутри очень необычная планировка и стильные интерьеры.

👇 Похожий дом в немного другом стиле

ЯНТАРЬ 285 м2 - проект коттеджа бизнес-класса, 9-комнатного дома шале с красивой лестницей в центре
Инваполис - проекты рациональных домов 13 июля 2021
  • S общая 288 м2; S жилая 202 м2; Габариты 16х16 м

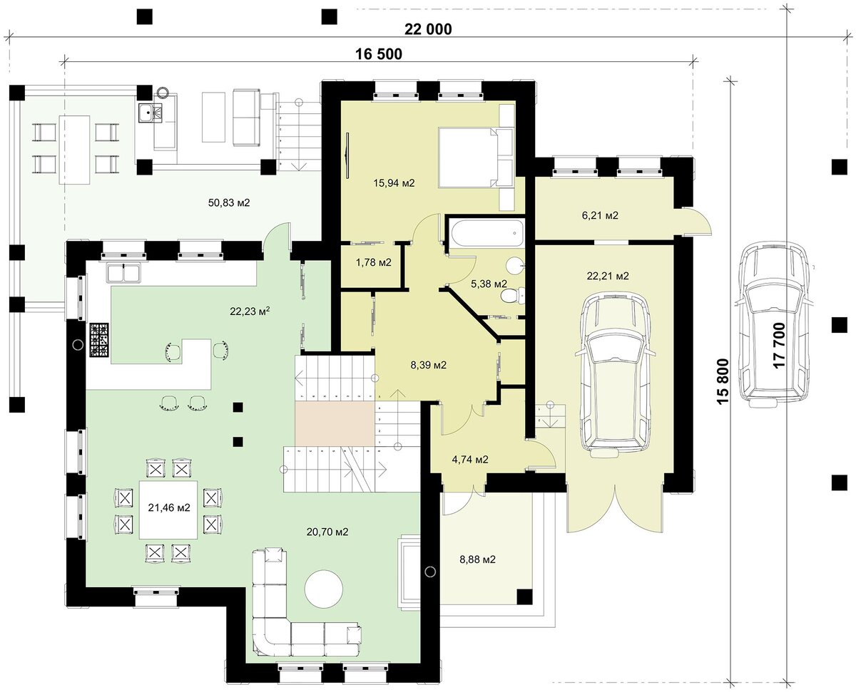
ПЛАНИРОВКА

В доме мало внутренних капитальных стен, так что планировка может меняться. Ниже - типовой вариант планов этажей.

Лестница в центре плана позволяет рационально разместить вокруг неё помещения.

Одновременно лестница - композиционный центр интерьера, - при движении по ней виды раскрываются с разных точек.

Цокольный и первый этажи отданы общим помещениям, размещенным в едином пространстве. Благодаря этому интерьер очень эффектный, кругом свет и простор.

👇 почитать о преимуществах лофт-гостиных

Эскизы интерьеров

Конструктивные особенности

ФУНДАМЕНТЫ – ленточный монолитный на глубину промерзания. Возможен индивидуальный проект фундамента под ваши грунты

👇 О типах фундаментов

ИЗ ЧЕГО ПОСТРОИТЬ ДОМ - Варианты фундаментов каменных малоэтажных домов
Инваполис - проекты рациональных домов 10 марта 2023

СТЕНЫ – газосиликатные блоки с облицовкой клинкерной плиткой

ПЕРЕКРЫТИЯ – монолитные ж/б

КРОВЛЯ – двускатная тёплая по деревянным балкам, балки видны в интерьере комнат.

Фото со стройки (примерно 2009 год)
Фото со стройки (примерно 2009 год)
Другие коттеджи площадью 250 - 300 м2 на сайте ИНВАПОЛИС

ПРОЕКТНАЯ ДОКУМЕНТАЦИЯ

Проект состоит из двух разделов: архитектурный (АР) и строительно-конструктивный (СКР), в очень развернутом составе - 135 листов.

3D-разрез по лестнице
3D-разрез по лестнице
Информация о заказе и доставке проекта здесь...
Возможно внесение изменений в проект...

► Чтобы не пропускать наши публикации, реагируйте лайком 👍, подписывайтесь на канал, пишите комментарии, тогда нейросети будут показывать нас вам чаще :)

► Получать обзоры наших проектов и следить за новостями ИНВАПОЛИС и можно также в ТЕЛЕГРАММ или в группе ВКонтакте – подписывайтесь, содержание немного отличается 😊

👀 полный каталог готовых проектов домов и коттеджей ИНВАПОЛИС