Добавить в корзинуПозвонить
Найти в Дзене

ПЛАНИРОВКА. Выпуск 8. Из двушки - трёшка.

Переделываем двухкомнатную квартиру 76,1 кв. м. в трёхкомнатную.

Планировка всегда индивидуальна, под нужды конкретной семьи. Однако, каждый может найти в разнообразии планировочных решений что-то подходящее для себя.

В этом выпуске - делаем перепланировку двухкомнатной квартиры 76,1 кв. м.

Варианты планировочного решения предоставлены для молодой семьи из трёх человек - семейной пары и сына - дошкольника.

Пожелания заказчиков:

- Переделать двухкомнатную квартиру 76,1 кв. м. в трёхкомнатную.

- Детская комната и спальня - отдельные комнаты. Гостиная с окном. Кухня переносится в коридор.

- Два санузла обязательно. В одном душевая кабина, в другом - ванная.

- Стиральная машина обязательна в ванной комнате с ванной (так удобно хозяйке).

- Прихожую оставить открытой, но обязательно отгородить, хотя бы маленькой перегородкой.

- Стол, как минимум, на четыре персоны.

- Много мест для хранения.

- Телевизор один, в гостиной.

- Нравятся ниши и радиусные элементы.

В конце статьи можно узнать, какую планировку выбрали именно эти заказчики.

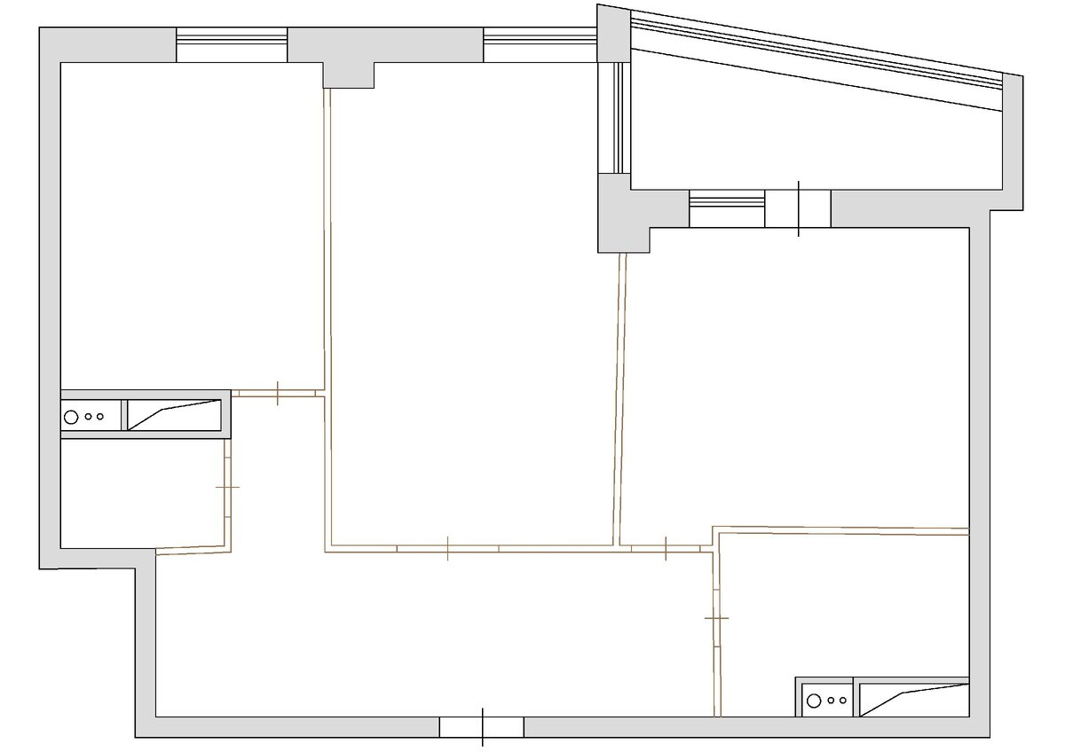
План квартиры до перепланировки.

Квартира расположена на верхнем этаже многоквартирного дома. Плита электрическая. Кухня по плану БТИ слева вверху.

План квартиры до перепланировки. Кухня по плану БТИ вверху слева.
План квартиры до перепланировки. Кухня по плану БТИ вверху слева.

Планировка. Вариант 1.

-2

Особенности варианта 1.

  • Проход из прихожей в гостиную через проём в стене.
  • Угловой шкаф в детской.
  • Два шкафа в спальне.
  • Стол на шесть персон.

Планировка. Вариант 2.

-3

Особенности варианта 2.

  • Прихожая отгорожена небольшой перегородкой с возможностью кругового движения.
  • Стиральная машина - в нише, с возможностью сделать шкаф над стиральной машиной или разместить бойлер.
  • Два шкафа в спальне (один угловой).
  • Стол на пять персон.

Планировка. Вариант 3.

-4

Особенности варианта 3.

  • Прихожая отгорожена небольшой скруглённой перегородкой с возможностью кругового движения.
  • Круглый стол в гостиной на 4 персоны.
  • Два шкафа в спальне.
  • Тумбочки в спальне меньше по ширине.

Планировка. Вариант 4.

-5

Особенности варианта 4.

  • Проход из прихожей в гостиную через проём в стене.
  • Полотенцесушитель в ванной комнате, в этом случае, только электрический.
  • Стиральная машина - в нише, с возможностью сделать шкаф над стиральной машиной или разместить бойлер.
  • Угловой шкаф в прихожей.
  • Из-за выступа санузла с душевой кабиной, кухня меньше на 30 см.
  • Самый большой угловой диван в гостиной.
  • Стол на пять персон.

Планировка. Вариант 5.

-6

Особенности варианта 5.

  • Прихожая отгорожена небольшой перегородкой с возможностью кругового движения.
  • Два шкафа в спальне.
  • Тумбочки в спальне меньше по ширине.
  • Стол на 6 персон.

Выбор заказчиков.

Заказчики остановились на третьем варианте планировки. Очень понравилась круглая стена с круглым столом и два шкафа в спальне. Решили один шкаф для супруга, другой для супруги.

Подписывайтесь на наш канал! Нам есть, что Вам рассказать!

Рекомендуем прочитать - Планировка. Выпуск 1. Трёшка - 10 вариантов!