Найти в Дзене
ПОСТОБЛОГ

Жить на 14 квадратах и не жаловаться: практичная планировка микрожилья

Приветствую всех, дорогия друзья, на этом канале. Далеко не у каждого жителя нашей планеты складывается все так, что он может позволить себе просторную многокомнатную квартиру или дом. Поэтому многие вынуждены размещаться на маленькой квадратуре. Однако и на небольшой жилплощади можно удобно и практично все организовать, чтобы жить вполне себе с комфортом до тех пор, пока не заработаешь на другой вариант. Сегодня мы как раз-таки и разберем весьма практичное решение по планировке квартиры маленькой метража - студия всего 14 квадратов! Поехали! Квартира данная расположена в южном городе нашей необъятной страны. Каждый сантиметр площади имеет значение. Для начала предлагаю ознакомиться с планировкой квартиры в виде наглядного чертежа: Видим, что сразу после входа слева от нас ванная комната (причем с ванной полноценной!), справа же располагается кухонка. В коридоре также небольшой шкафчик для вещей (следом за плитой). Прошу обратить внимание на дверь в ванную: она складывается вдвое, ч

Приветствую всех, дорогия друзья, на этом канале. Далеко не у каждого жителя нашей планеты складывается все так, что он может позволить себе просторную многокомнатную квартиру или дом. Поэтому многие вынуждены размещаться на маленькой квадратуре.

Однако и на небольшой жилплощади можно удобно и практично все организовать, чтобы жить вполне себе с комфортом до тех пор, пока не заработаешь на другой вариант.

Сегодня мы как раз-таки и разберем весьма практичное решение по планировке квартиры маленькой метража - студия всего 14 квадратов! Поехали!

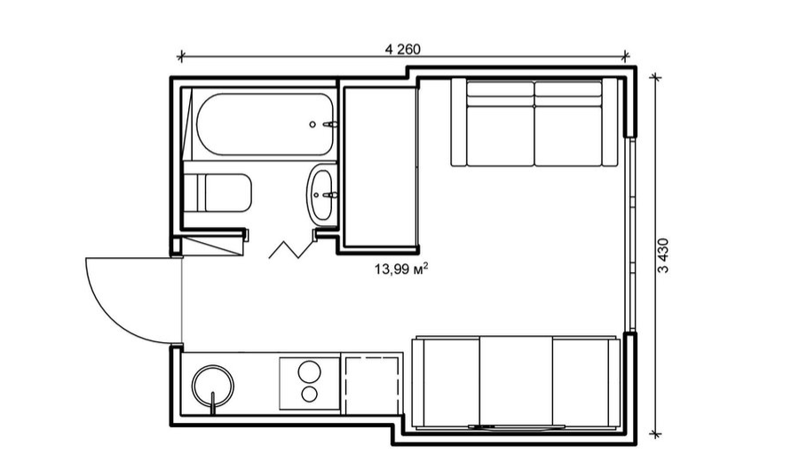
Квартира данная расположена в южном городе нашей необъятной страны. Каждый сантиметр площади имеет значение.

Для начала предлагаю ознакомиться с планировкой квартиры в виде наглядного чертежа:

Планировка квартиры 14 кв. м.
Планировка квартиры 14 кв. м.

Видим, что сразу после входа слева от нас ванная комната (причем с ванной полноценной!), справа же располагается кухонка. В коридоре также небольшой шкафчик для вещей (следом за плитой). Прошу обратить внимание на дверь в ванную: она складывается вдвое, что мы не занимать пространство при открытии.

После входа в квартиру - кухня и ванная по бокам
После входа в квартиру - кухня и ванная по бокам

Вот на фото выше как раз-таки виден коридор с кухней и ванной по разные стороны.

Так, по коридорчику прошлись - попадаем в основное помещение. Здесь у нас спальное и, так скажем, гостинично-диванное место в одном:

Раскладной мини-диван для отдых и сна
Раскладной мини-диван для отдых и сна

Напротив же располагается место для работы, а также для трапезы:

Обеденно-рабочая зона
Обеденно-рабочая зона

Итого имеем входную зону с небольшим гардеробом. Тут же кухня для готовки еды. Полноценная ванная комната. Далее место для сна, отдыха и для еды, работы. Для 14 квадратов очень впечатляет!

Слева диван для сна, справа место для трапезы и работы
Слева диван для сна, справа место для трапезы и работы
Вид с обеденной зоны
Вид с обеденной зоны

Резюмируя, хочется сказать, что для 14 квадратов получилась очень практичная и стильная квартира. Для молодого человека, которому нужно дома лишь переночевать, вполне себе отличный вариант на первое время!

А как вы считаете? Пишите в комментариях. Если статья понравилась, поставьте лайк и подпишитесь на канал, я буду вам премного благодарен!

На это все, до скорого!