Найти в Дзене
ООО «ГлавЖилСтрой»

Проектирование магазина 300 кв.м

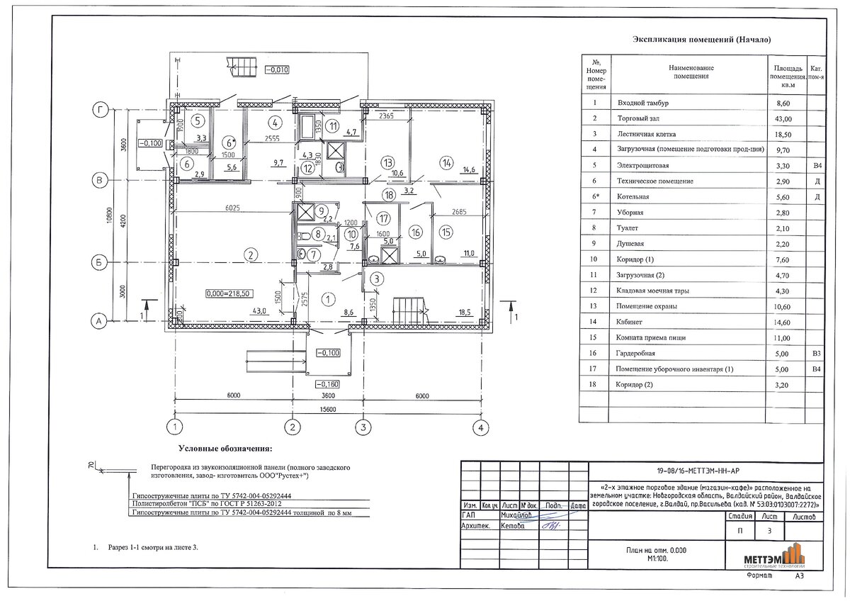
Проект строительства двухэтажного магазина на 300 кв.м, габаритными размерами 10х15 метров, конструктивная схема здания - металлический каркас, стеновые и кровельные сэндвич панели. Проектирование двухэтажного магазина площадью 300 м² в Москве — комплексная задача, требующая учета множества нормативных, коммерческих и архитектурных аспектов. Вот пошаговое руководство и ключевые моменты. Перед обращением к проектировщикам необходимо определить: Работа ведется в соответствии с Московскими градостроительными нормами (МГСН), СП (Сводами правил) и федеральными законами (№ 384-ФЗ "Технический регламент о безопасности зданий"). Этап 1. Эскизный проект (ЭП) или Архитектурные решения Этап 2. Проектная документация (стадия "Проект" или "П")
Основная и самая объемная стадия. Включает разделы: Этап 3. Рабочая документация (стадия "РД" или "Рабочий проект") Главный совет: Начинайте с консультации с опытным проектировщиком и юристом, который специализируется на градостроительном праве Москвы. Правил
Оглавление
http://www.mettem-ct.ru
http://www.mettem-ct.ru

Проект строительства двухэтажного магазина на 300 кв.м, габаритными размерами 10х15 метров, конструктивная схема здания - металлический каркас, стеновые и кровельные сэндвич панели.

http://www.mettem-ct.ru
http://www.mettem-ct.ru

Проектирование двухэтажного магазина площадью 300 м² в Москве — комплексная задача, требующая учета множества нормативных, коммерческих и архитектурных аспектов. Вот пошаговое руководство и ключевые моменты.

1. Предпроектный этап (Самое важное!)

Перед обращением к проектировщикам необходимо определить:

  • Концепция магазина: Продуктовый, DIY (стройматериалы), одежда, электроника, формат (дискаунтер, премиум)? От этого зависят все планировки, нагрузки, инженерные системы.
  • Местоположение и участок: Это отдельно стоящее здание или встройка в существующий ТЦ/жилой комплекс? Необходимо изучить градостроительные ограничения (красные линии, этажность), наличие и возможность подключения к коммуникациям.
  • Техническое задание (ТЗ): Основополагающий документ. Включает:
    Требования к зонированию (торговый зал, склад, администрация, подсобки, санузлы, комната персонала, возможно, кафе или зона выдачи онлайн-заказов).
    Поток покупателей (вход/выход, эскалатор/лестница/лифт между этажами).
    Специфические требования (холодильное оборудование, мощная вентиляция, особое освещение, повышенные нагрузки на перекрытия для склада).
    Пожелания по фасаду и материалам.

2. Стадии проектирования (Согласно российскому законодательству)

Работа ведется в соответствии с Московскими градостроительными нормами (МГСН), СП (Сводами правил) и федеральными законами (№ 384-ФЗ "Технический регламент о безопасности зданий").

Этап 1. Эскизный проект (ЭП) или Архитектурные решения

  • Разработка планировочных решений, фасадов, концепции общего вида.
  • Согласование с заказчиком планировки, зонирования, основных конструктивных решений.
  • Для Москвы критически важно: Проверка соответствия проекта Правилам землепользования и застройки (ПЗЗ) вашего района. Определение вида разрешенного использования (ВРИ) участка.

Этап 2. Проектная документация (стадия "Проект" или "П")
Основная и самая объемная стадия. Включает разделы:

  • АР (Архитектурные решения): Детальные чертежи, планы, фасады, разрезы, ведомости отделки.
  • КР (Конструктивные решения): Расчет и чертежи фундамента, колонн, перекрытий, лестниц. Для магазина важно рассчитать нагрузки на полы от стеллажей и покупателей.
  • ИОС (Инженерное оборудование, сети и системы):
    ОВ (Отопление и вентиляция):
    Для магазина обязательна приточно-вытяжная вентиляция, возможно, кондиционирование. Для продуктового — мощная холодильная и вентиляционная системы.
    ВК (Водоснабжение и канализация): Расчет точек воды, канализации (в т.ч. для санузлов, возможной мойки).
    ЭОМ (Электрооборудование): Освещение (общее, акцентное, аварийное), розетки для оборудования, расчет мощности. Внимание на освещение витрин и торгового зала!
    СС (Слаботочные системы):
    Охранно-пожарная сигнализация (ОПС), система оповещения и управления эвакуацией (СОУЭ), видеонаблюдение, СКС, коммерческий учет энергоресурсов.
  • ПБ (Мероприятия по обеспечению пожарной безопасности): Один из ключевых разделов для общественного здания. Расчет путей эвакуации, ширины дверей и коридоров, размещение огнетушителей, противопожарных преград, выбор отделочных материалов по классу горючести.
  • ОДО (Мероприятия по обеспечению доступа инвалидов): Обязательное устройство пандусов, лифтов (если нет, то обоснование), адаптированных санузлов, тактильных указателей.

Этап 3. Рабочая документация (стадия "РД" или "Рабочий проект")

  • Детализированные чертежи и спецификации для строителей. На основе РД составляется смета и ведутся работы.

3. Специфика для Москвы (Ключевые сложности и требования)

  1. Согласования в Мосгосстройнадзоре (МГСН): Проект должен пройти экспертизу (государственную или негосударственную) и получить разрешение на строительство. После завершения строительства — разрешение на ввод в эксплуатацию.
  2. Требования к фасадам: В Москве строгие правила к внешнему облику зданий, особенно в центральных и исторических районах. Дизайн фасада может потребовать дополнительных согласований.
  3. Подключение к коммуникациям: Необходимо получить технические условия (ТУ) в МОЭК (тепло), Мосводоканале, Мосэнерго и т.д. Это длительный и дорогой процесс. Все ТУ должны быть отражены в проекте.
  4. Плотная городская застройка: Возможны сложности с подъездом техники, складированием материалов, шумовыми ограничениями.
  5. Требования к вывеске и рекламе: Размещение любой вывески требует разрешения Комитета по архитектуре и градостроительству г. Москвы (Москомархитектура). Это нужно учесть на стадии проектирования фасада.

4. Особенности планировки двухэтажного магазина 300 м²

  • Распределение площади (примерное):
    1-й этаж (150-200 м²):
    Основной торговый зал, кассы, входная группа, витрины, возможно, зона свежих продуктов (если продуктовый).
    2-й этаж (100-150 м²): Дополнительный торговый зал, административные помещения (офис, кабинет директора), комната персонала, санузлы, технические помещения (щитовая, венткамера).
    Важно: Складская зона должна быть логистически удобной (возможность подвоза товара, preferably с отдельного входа). Ее можно разместить частично в цоколе, на 2-м этаже или в пристройке.
  • Вертикальная связь: Обязательно нужна лестница, соответствующая нормам пожарной безопасности. Эскалатор или пассажирский лифт — дорогое, но коммерчески оправданное решение для повышения проходимости на второй этаж. Для маломобильных групп населения лифт может быть обязательным.
  • Грузовой лифт или подъемник: Критически важен для магазина, чтобы поднимать товар со склада на 1-й и 2-й этажи.

5. Примерный порядок действий и стоимость

  1. Найти земельный участок с подходящим ВРИ или готовое помещение.
  2. Заказать инженерные изыскания (геология) на участке.
  3. Получить ТУ на подключение к сетям.
  4. Нанять проектную организацию, имеющую допуск СРО на проектирование общественных зданий. Желательно с опытом работы в Москве.
  5. Разработать и согласовать проект.
  6. Стоимость проектных работ может сильно варьироваться: от ~1 500 до 4 000+ руб./м² в зависимости от сложности, уровня проектировщика и объема инженерных задач. Для магазина 300 м² это примерно 450 000 — 1 200 000 руб. Стоимость строительства "под ключ" в Москве может стартовать от 80-100 тыс. руб./м² и выше.

Главный совет: Начинайте с консультации с опытным проектировщиком и юристом, который специализируется на градостроительном праве Москвы. Правильно составленное ТЗ и понимание московской специфики согласований сэкономят вам огромное количество времени, нервов и денег на дальнейших этапах.

Подробнее на https://mettem-ct.ru/