Добавить в корзинуПозвонить
Найти в Дзене
iнженерикус

Пожарная безопасность. Как рассчитать категорию здания по пожарной и взрывопожарной опасности.

Все здания складского и производственного назначения классифицируются по пожарной и взрывопожарной опасности. Категория здания влияет на площади противопожарных отсеков, расстояния между соседними зданиями, нормативные расходы на внутреннее и наружное пожаротушение и другие пожарные аспекты зданий. Поэтому необходимо знать к какой категории относятся наши производственные здания. Сделать это достаточно просто. Рассмотрим это на примере. Из нормативной документации воспользуемся статьей 27 Федерального закона №123-ФЗ от 22.07.2008г. Технический регламент о требованиях пожарной безопасности и главой 6 СП 12.13130.2009 Определение категорий помещений, зданий и наружных установок по взрывопожарной и пожарной опасности (с Изм. N 1). Для расчета можно использовать схему, расположенную ниже. Она содержит информацию из вышеперечисленной нормативной документации. Будем двигаться по стрелкам от красного кружка к желтому. Для расчета возьмем здание мехмастерских. План мехмастерских предста

Все здания складского и производственного назначения классифицируются по пожарной и взрывопожарной опасности. Категория здания влияет на площади противопожарных отсеков, расстояния между соседними зданиями, нормативные расходы на внутреннее и наружное пожаротушение и другие пожарные аспекты зданий. Поэтому необходимо знать к какой категории относятся наши производственные здания.

Сделать это достаточно просто. Рассмотрим это на примере.

Из нормативной документации воспользуемся статьей 27 Федерального закона №123-ФЗ от 22.07.2008г. Технический регламент о требованиях пожарной безопасности и главой 6 СП 12.13130.2009 Определение категорий помещений, зданий и наружных установок по взрывопожарной и пожарной опасности (с Изм. N 1).

Для расчета можно использовать схему, расположенную ниже. Она содержит информацию из вышеперечисленной нормативной документации. Будем двигаться по стрелкам от красного кружка к желтому.

Схема расчета определения категории зданий по пожарной и взрывопожарной опасности (схема автора)
Схема расчета определения категории зданий по пожарной и взрывопожарной опасности (схема автора)

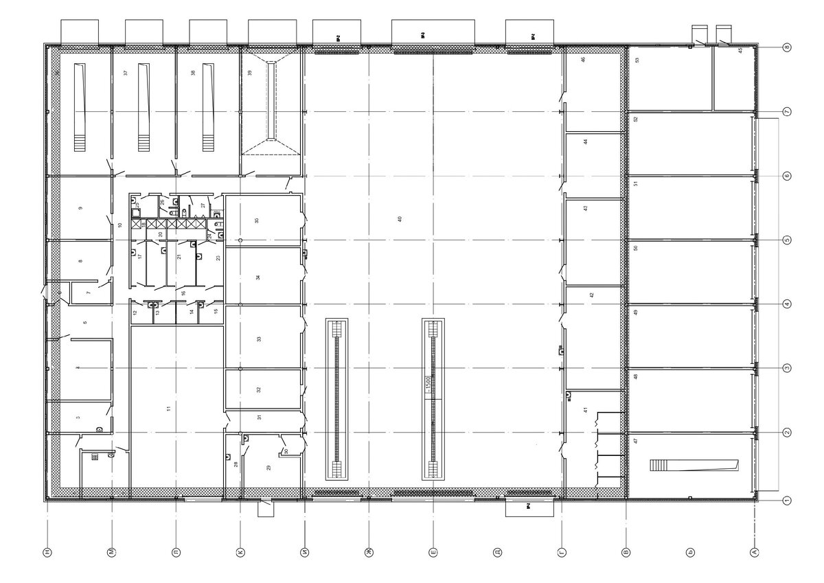
Для расчета возьмем здание мехмастерских. План мехмастерских представлен ниже.

План здания мехмастерских (чертеж автора)
План здания мехмастерских (чертеж автора)

Ниже представлена экспликация помещений здания с их площадью и присвоенной категорией. Не всем помещениям присваивается категория, так как категорированию подлежат только производственные и складские помещения.

Экспликация помещений мехмастерских (чертеж автора)
Экспликация помещений мехмастерских (чертеж автора)

Далее подготовим исходные данные для расчета. Суммируем площади разных помещений для расчета.

  • категория А (такое помещение у нас одно - зарядная): 26,7 м2.
  • категория Б (у нас нет): 0 м2.
  • категория В (суммируем все помещения категорий от В1 до В3): 137,3 + 8,8 + 24,7 + 40 + 36,1 + 32,5 + 70,8 + 69,1 + 69,1 + 65,4 + 1026,5 + 53,6 + 42,4 + 32,1 + 73,9 + 70,3 + 70,3 + 70,3 + 70,3 + 70,3 = 2133,8 м2.
  • категория В4: 7,1 + 4 + 4 + 4 + 4,5 + 5,1 = 28,7 м2.
  • категория Г (такое помещение также одно): 46,6 м2.
  • категория Д: 51,5 + 22,4 + 42,9 = 116,6 м2.
  • не категорируемые помещения: 17,8 + 18,5 + 16,3 + 32,5 + 18,5 + 4 + 21 + 34 + 63,3 + 10,8 + 5,4 + 2,5 + 7,3 + 3,4 + 10,8 + 7 + 10,1 + 2,6 + 3,4 + 7,8 + 3,4 + 13,6 = 314 м2.
  • общая площадь здания: 26,7 + 2133,8 + 28,7 + 46,6 + 116,6 + 314 = 2666,4 м2.
  • установкой автоматического порошкового пожаротушения оснащается только участок технического обслуживания и ремонта автомобилей (категория В2) площадью 1026,5 м2.

Теперь можно приступать к самому расчету:

1. Здание будет категории А если площадь помещений А больше 5% от площади здания. У нас: 26,7*100/2666,4=1%. Или если площадь помещений А больше 200 м2. У нас: 26,7 м2. Значит наше здание не категории А.

2. Здание будет категории Б если суммарная площадь помещений А и Б больше 5% от площади здания. У нас: (26,7+0)*100/2666,4=1%. Или если суммарная площадь помещений А и Б больше 200 м2. У нас: 26,7+0=26,7 м2. Значит наше здание не категории Б.

3. Здание будет категории В если суммарная площадь помещений А, Б и В1-В3 больше 5% от площади здания (в нашем случае не больше 10%, а пяти так как есть помещения категории А). У нас: (26,7+0+2133,8)*100/2666,4= 81%. Это здание возможно категории В.

4. Но далее стоит проверить, возможно здание не относиться к категории В. Здание не относится к категории В, если суммарная площадь помещений А, Б и В1-В3 меньше 25% от площади здания. У нас более 25%, значит наше здание относится к категории В.

Самое главное при расчете подготовить исходные данные и постепенно исключать категорию за категорией.

Спасибо! Надеюсь, эта статья была Вам полезной!