Найти в Дзене
Мой любимый ДОМ

Двушка-типовушка 50кв.м. Дизайнерский ремонт вместо «стенки» вдоль стенки

Здравствуйте, друзья! Типовые квартиры, доставшиеся нам от родителей, представляются такими же скучными, как «коробки» панельных домов. Правда же? Диван, ковер, «стенка»…
Что с этим можно cделать? Возможна ли #перепланировка ? Часто даже стены не сломаешь — несущие.
«А зачем ломать? Лучше декорировать!» — считает дизайнер Анна Смолякова (ну, как мы ее любим!). И в подтверждение показывает фото роскошного современного интерьера 50-метровой «двушки» на окраине Москвы 👇 Ну что, не похоже на типовую квартиру? А ведь мы не обманываем. И в доказательство, сразу приводим план, не томим. Линейная планировка квартиры вполне логична. Такая встречается в нескольких сериях типовых панельных домов, включая П-44, П-3, П-3М 👇 Те, для кого важно иметь именно две изолированные комнаты и раздельный санузел, вряд ли захотят здесь что-либо менять. Придраться можно разве что к высоте потолка (2,4 м получилось после выравнивания пола и укладки паркетной доски — ну очень низкий!). Еще, пожалуй, площ
Оглавление

Здравствуйте, друзья!

Типовые квартиры, доставшиеся нам от родителей, представляются такими же скучными, как «коробки» панельных домов. Правда же? Диван, ковер, «стенка»…
Что с этим можно cделать? Возможна ли #перепланировка ? Часто даже стены не сломаешь — несущие.
«
А зачем ломать? Лучше декорировать!» — считает дизайнер Анна Смолякова (ну, как мы ее любим!). И в подтверждение показывает фото роскошного современного интерьера 50-метровой «двушки» на окраине Москвы 👇

Правда, красота? Маленькая комната, по желанию хозяев, может превращаться то в гостиную, то в спальню, то в кабинет. Автор дизайн-проекта Анна Смолякова. (Фотограф: Дина Александрова; стилист: Татьяна Гедике)
Правда, красота? Маленькая комната, по желанию хозяев, может превращаться то в гостиную, то в спальню, то в кабинет. Автор дизайн-проекта Анна Смолякова. (Фотограф: Дина Александрова; стилист: Татьяна Гедике)

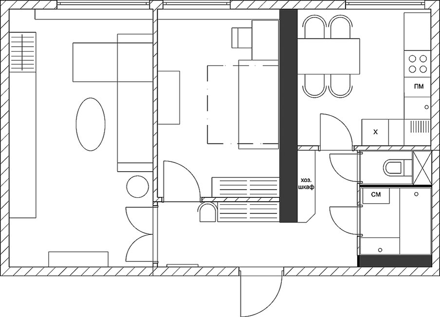
Ну что, не похоже на типовую квартиру? А ведь мы не обманываем. И в доказательство, сразу приводим план, не томим. Линейная планировка квартиры вполне логична. Такая встречается в нескольких сериях типовых панельных домов, включая П-44, П-3, П-3М 👇

Может, теперь узнали свою "двушечку"? Здесь точно нельзя ломать стену между кухней и маленькой комнатой...
Может, теперь узнали свою "двушечку"? Здесь точно нельзя ломать стену между кухней и маленькой комнатой...

Те, для кого важно иметь именно две изолированные комнаты и раздельный санузел, вряд ли захотят здесь что-либо менять. Придраться можно разве что к высоте потолка (2,4 м получилось после выравнивания пола и укладки паркетной доски — ну очень низкий!). Еще, пожалуй, площади всегда хозяйке кажется мало.
То есть задача для дизайнера формулировалась так:

Визуально раздвинуть стены, поднять потолок, оборудовать места хранения, не загружая пространство, и создать стильный современный интерьер не в ущерб функциональности.

Да, и чтобы было уютно, но не скучно, #квартира для молодой хозяйки творческой профессии 💛❗️

Дизайнер Анна Смолякова: «Хотелось победить серый московский климат, унылый пейзаж за окном, привнести солнечное настроение отпуска, чтобы интерьер каждый день дарил и праздник». (Фотограф: Дина Александрова; стилист: Татьяна Гедике)
Дизайнер Анна Смолякова: «Хотелось победить серый московский климат, унылый пейзаж за окном, привнести солнечное настроение отпуска, чтобы интерьер каждый день дарил и праздник». (Фотограф: Дина Александрова; стилист: Татьяна Гедике)

Палитра для смелых

К разработке этого яркого проекта дизайнер (а по первому образованию она художник-орнаменталист) нашла нетривиальный подход. Большая #комната ярче маленькой. Здесь ставка была сделана на разномасштабные орнаменты и графику с активными акцентами. Они стали не просто модной альтернативой коврам и «шаляпинским» обоям 1980-х, они абсолютно изменили восприятие объемов. После ремонта квартира кажется более просторной, пространство интересным и динамичным. Острия зигзагов в комнате зрительно подняли потолок, а низкая мебель поддержала этот эффект.

Дизайнер Анна Смолякова: «Зигзагообразный рисунок обоев под названием шеврон — символический защитник дома. И он прекрасно объединяет общую колористику гостиной». (Фотограф: Дина Александрова; стилист: Татьяна Гедике)
Дизайнер Анна Смолякова: «Зигзагообразный рисунок обоев под названием шеврон — символический защитник дома. И он прекрасно объединяет общую колористику гостиной». (Фотограф: Дина Александрова; стилист: Татьяна Гедике)

Конечно, не каждый решится на столь смелые принты и насыщенные цвета. Но если хозяйка — молодая женщина, ценит комфорт, следит за модными тенденциями, любит активный отдых, — то она, несомненно, оценит выбор по достоинству. (И кстати, оценила!)

Планировочное решение

Менять местами спальню с гостиной, тем более объединять кухню с комнатой не стали. Да здесь это было бы и невозможно из-за несущей стены. А вот дверной проем спальни пришлось сместить ближе к гостиной (см. план в самом начале статьи). В квартире нет ни лоджии, ни кладовки, а вещи надо куда-то класть, новое расположение двери позволило установить системы хранения как со стороны прихожей, так и со стороны спальни.

В коридоре напротив санузла удалось вместить хозяйственный шкаф, в ванную комнату — установить компактную стиральную машину (для этого дверь в ванную тоже немного сдвинули) 👇

Роскошный коридор и кухня вроде как уже и не маленькие, правда? Автор дизайн-проекта Анна Смолякова. (Фотограф: Дина Александрова; стилист: Татьяна Гедике)
Роскошный коридор и кухня вроде как уже и не маленькие, правда? Автор дизайн-проекта Анна Смолякова. (Фотограф: Дина Александрова; стилист: Татьяна Гедике)
Плитка на полу в прихожей, санузле и кухне уложена единым полотном, что объединяет зоны и усиливает эффект протяженного пространства.

От пола до потолка

Квартира выглядит свежо и позитивно. Низкий потолок больше не «давит». Здесь все продумано, чтобы обмануть зрение. Люстры на коротком подвесе высоко над головой. Светлый пол с мелкой текстурой, словно растворяется под ногами. Черно-белый орнамент отражается в глянце поверхностей и зрительно увеличивает объем. Выкрашенный в цвет стены плинтус в гостиной связывается с окружением и придает интерьеру легкость. Все получилось!

Текст: Лидия Чечёта

________________🏡

На нашем канале много интересного! Подписывайтесь, читайте и лайкайте:

Как небольшая квартира площадью 40 кв. м превратилась в модный городской лофт
Новостройка 4 года дожидалась своего ремонта. Наконец ее отделали под сдачу
Втиснуть спальню в крошечную однушку? Можно!