Найти в Дзене

Стильный и Уютный каркасный одноэтажный дом 116 м2 с плоской кровлей и панорамными окнами в пол

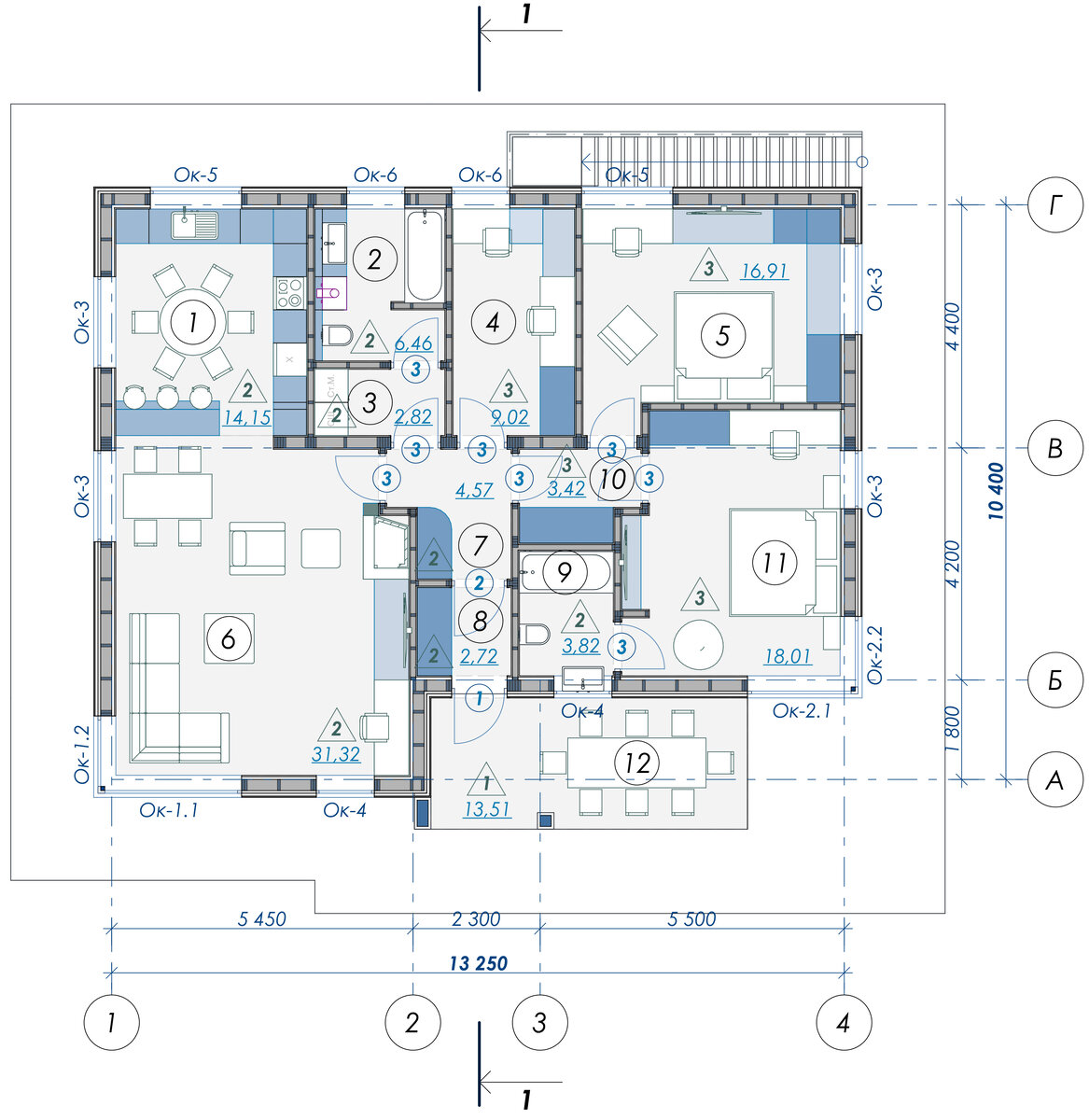
Знакомые в восторге от этого дома с такой планировкой.
Про планировку я писал уже в ранних статьях, поэтому повторяться не буду.
Сейчас же "докрутил" внешний вид с игрой блоков по фасадам.
Чтобы внешне дом не был плоской коробкой, искусственно выделены блоки по высоте, с легким выступом вперед и появлением навеса над террасой.

Знакомые в восторге от этого дома с такой планировкой.

Про планировку я писал уже в ранних статьях, поэтому повторяться не буду.

Сейчас же "докрутил" внешний вид с игрой блоков по фасадам.

Чтобы внешне дом не был плоской коробкой, искусственно выделены блоки по высоте, с легким выступом вперед и появлением навеса над террасой.

-3

Здесь как бы один объем врезан и выходит гармонично из другого.

Различные варианты внешней отделки из одной и той же доски лишь усиливают визуальный эффект.

-6

Такой дом не стыдно и построить, хоть он и не большой.