Найти в Дзене
Мебельная фабрика БОБР

Кухня 4,8 м2 - очень нежный и уютный проект.

В сегодняшней нашей статье мы хотим познакомить вас с еще одним очень симпатичным, на наш взгляд, проектом дизайна интерьера небольшой кухни.

В сегодняшней нашей статье мы хотим познакомить вас с еще одним очень симпатичным, на наш взгляд, проектом дизайна интерьера небольшой кухни.

Подробнее
Подробнее

#Ремонт маленькой кухни всегда начинается с тог, как разрешить дилемму: разместить все необходимое для удобного и комфортного приготовления пищи, и в то же время оставить место для, собственно, приема этой самой пищи. Мы, лично, глубоко убеждены, что лучше всего перенести обеденную зону другую комнату (конечное, если это позволяет изначальная планировка или конструкцией дома допускается #перепланировка). В данном проект дизайнер предложил именно такое решение.

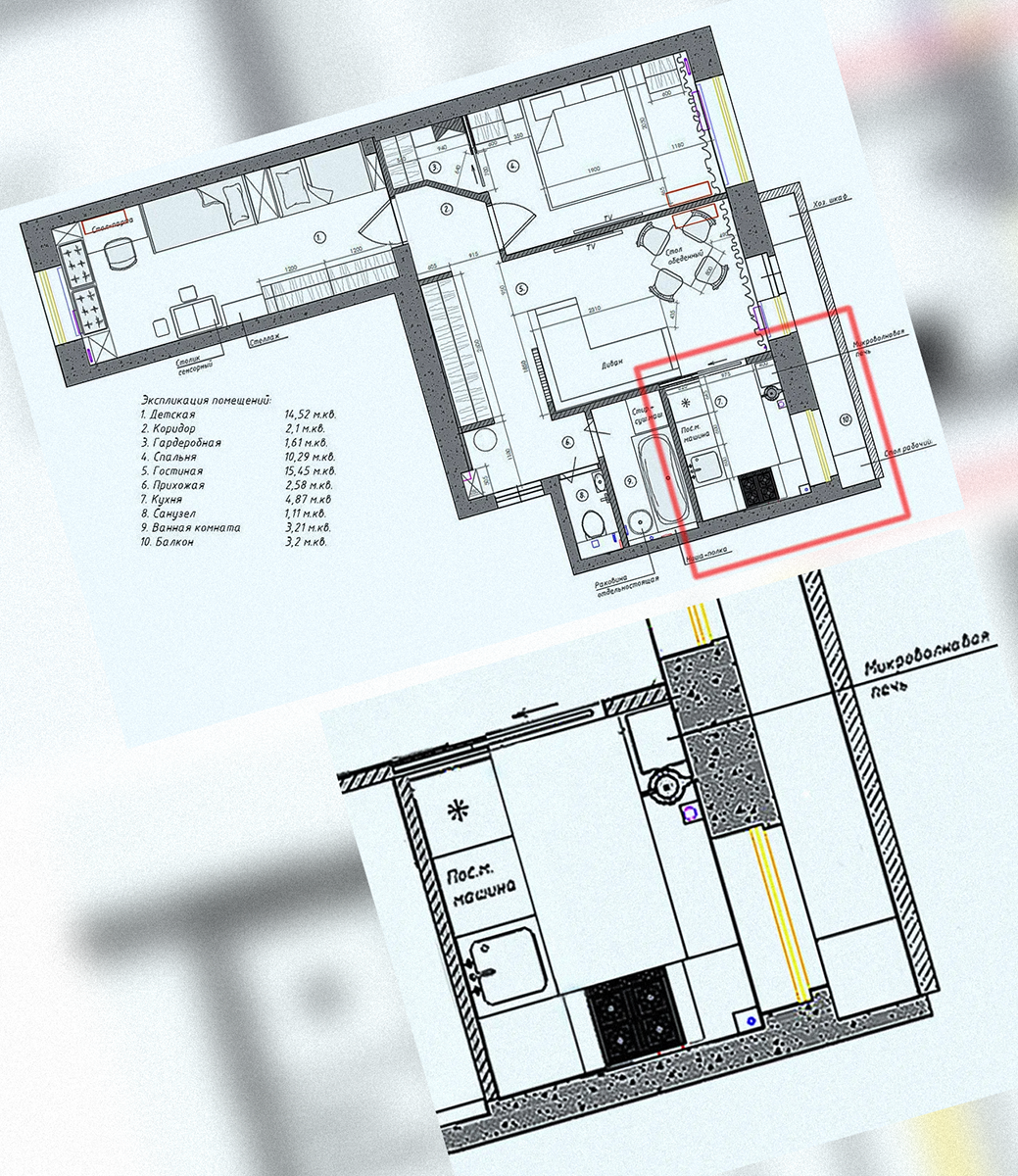
Для начала план кухонного помещения и квартиры в целом:

-2

Так-как на кухне установлена газовая плита, то во избежание проблем с согласованием проекта в газовой службе, решено было применить дверь-купе, которая позволяет быстро объединять/отделять кухню с помещением гостиной и в то же время экономит пространство в обеих комнатах.

-3

Листайте галерею

Расположение обеденной зоны в гостиной позволило применить в небольшом помещении кухни П-образную планировку кухонного гарнитура. Варочная панель с вытяжкой при этом расположились ровно по центру. А раковина и встроенный холодильник в правой части кухни. Между раковиной и холодильником расположилась довольно большая рабочая зона шириной 60 см., а под ней – посудомоечная машина.

-4

В левой же части, рядом с коном разместилась еще одна рабочая зона, которую по совместительству можно использовать для быстрых перекусов и завтраков.

Кухонный фартук так же выполнен в приглушенном синем из керамогранитной плитки 20х20 (Equipe ArtNouveau (WoadBlue).

У самого входа, в углу, удобно расположилась СВЧ-печь – прямо из холодильника в не можно помещать полуфабрикаты или уже готовую еду для разогрева, а ее расположение на уровне пояса позволяет легко оперировать тарелками с супом и т. п. блюдами.

-5

Очень оригинально уголок с СВЧ-печкой отделен небольшой консолью с открытыми сквозными полочками для специй и др. мелких предметов. А в оконном откосе предусмотрены розетки для, например, чайника или зарядки гаджетов.

На полу и на стенах было решено применить одинаковую испанскую плитку из керамогранита (Equipe ArtNouveau, ArcadeBlue).

Не трудно заметить, что основной цвет на кухне – белый. Верхние же шкафы, выполнены в приглушенном синем цвете. Кухонный гарнитур предполагается изготовить на заказ.

🔺 Обычно дизайнеры советуют делать наоборот – нижние шкафы более темные чем верхние. Однако в таком маленьком и узком помещении, нижняя его часть получает намного меньше естественного света из окна, чем верхняя, и такой прием позволяет распределить освещение более равномерно. При этом более темные верхние шкафы совершенно не давят и не скрадывают размеры помещения. А деревянная столешница смягчает контраст и дает кухню уютнее. 🔺

В целом, на наш взгляд, проект интерьера кухни получился очень нежным и уютным, и в тоже время функциональным. Надеемся, что эта статья поможет вам в создании кухни вашей мечты. А изготовление подобного кухонного, вы можете заказать на мебельной фабрике «Бобр».

Авторство, представленного в статье проекта:  Студия Дениса Серова (Москва).
Авторство, представленного в статье проекта: Студия Дениса Серова (Москва).