Найти в Дзене

Проект дома 130 м2 с тремя спальнями и двумя с/у

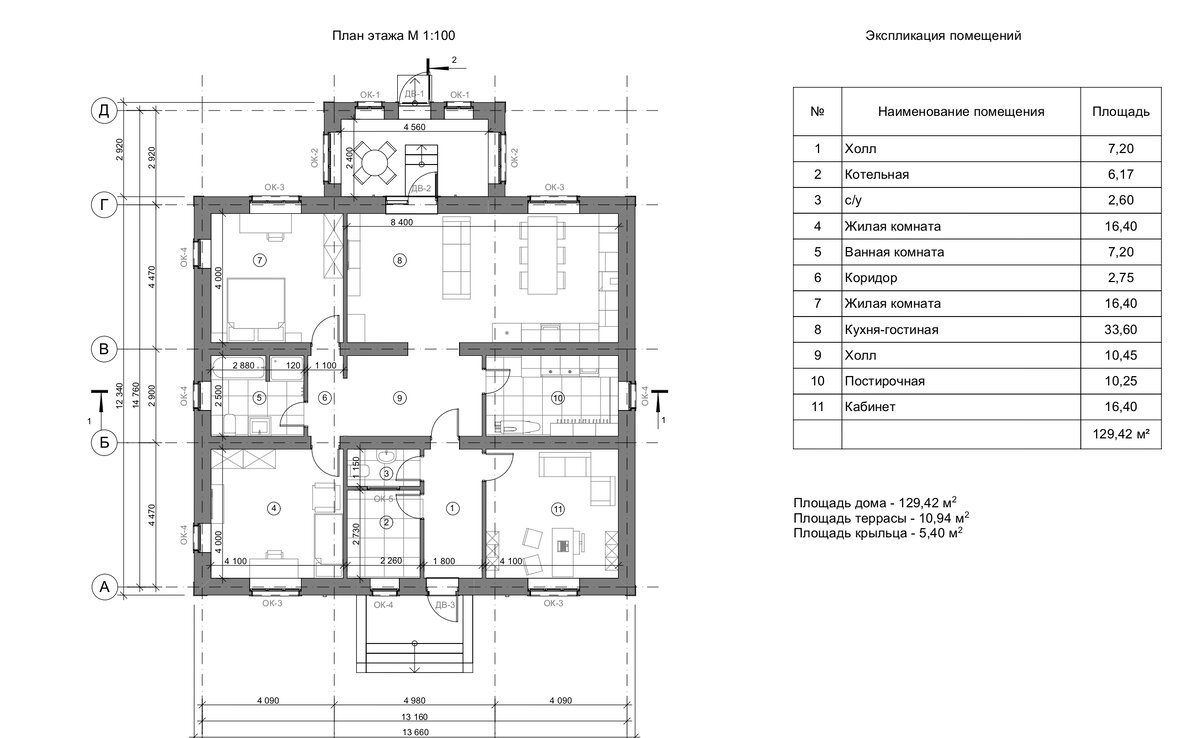
Представляем проект одноэтажного дома 130 м2 - светлый, милый внешне небольшой дом заслуживает особого внимания. Здесь будет комфортно жить даже большой семье с детьми. В доме три жилых комнаты и два санузла!
К преимуществам внутреннего пространства добавим просторную кухню-гостиную с выходом на террасу 10 м2, а так же отдельное помещение для постирочной и собственную котельную.
Проект был

Представляем проект одноэтажного дома 130 м2 - светлый, милый внешне небольшой дом заслуживает особого внимания. Здесь будет комфортно жить даже большой семье с детьми. В доме три жилых комнаты и два санузла!

К преимуществам внутреннего пространства добавим просторную кухню-гостиную с выходом на террасу 10 м2, а так же отдельное помещение для постирочной и собственную котельную.

-2

Проект был создан для семьи с тремя детьми, переезжающей за город, в окружение чистой природы и свежего воздуха. Решение архитекторов Тюмени еще раз доказывает истину: для комфортной жизни совсем не обязательно иметь большие хоромы, достаточно маленького, но уютного семейного гнездышка, где все будут счастливы.

-3

Дом уже строится в Тюмени. Подробное описание проекта и детали строительства смотрите в портфолио проекта на сайте нашего застройщика.

Много интересных проектов на нашем сайте Архитекторы Тюмени РФ.

Рассчитайте стоимость дома своей мечты!