Добавить в корзинуПозвонить
Найти в Дзене
Портал - Автоматика

Комфортная жизнь.

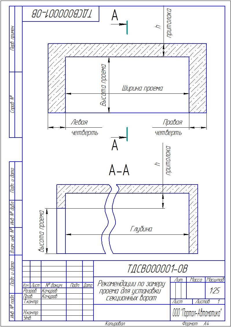
Часть 2 От правильного замера параметров проема и помещения, в котором будут установлены секционные ворота, зависит качество и скорость их монтажа. Для снятия необходимых показателей достаточно рулетки и строительного уровня. Все замеры производятся внутри помещения. Замер каждой величины рекомендуется производить как минимум по трем точкам - около одного угла, затем посередине, и у второго угла. Выбирается большее значение. Секционные ворота представляют собой рамную конструкцию, устанавливающуюся изнутри проема, крепление выполняется по плоскости пристенков и притолоки, а это значит, что при замере необходимо проконтролировать, что пристенки и притолока находятся в одной плоскости. К моменту замера очень важно знать уровень чистового пола. Если его пока нет, то следует отметить его уровень на стене.В случае готового чистового пола следует проконтролировать его уровень. Не менее важным является определение пространства для открывания ворот - глубины помещения. Необходимо обратить вним
Оглавление

Часть 2

От правильного замера параметров проема и помещения, в котором будут установлены секционные ворота, зависит качество и скорость их монтажа.

Для снятия необходимых показателей достаточно рулетки и строительного уровня. Все замеры производятся внутри помещения. Замер каждой величины рекомендуется производить как минимум по трем точкам - около одного угла, затем посередине, и у второго угла. Выбирается большее значение. Секционные ворота представляют собой рамную конструкцию, устанавливающуюся изнутри проема, крепление выполняется по плоскости пристенков и притолоки, а это значит, что при замере необходимо проконтролировать, что пристенки и притолока находятся в одной плоскости. К моменту замера очень важно знать уровень чистового пола. Если его пока нет, то следует отметить его уровень на стене.В случае готового чистового пола следует проконтролировать его уровень. Не менее важным является определение пространства для открывания ворот - глубины помещения. Необходимо обратить внимание на проходящие коммуникации, перемычки и прочие элементы.

Для установки секционных ворот требуются некоторое пространство для крепления, поэтому существует ряд ограничений для притолоки и пристенков. В случае когда они малы для установки ворот, возможно рассмотреть вариант их увеличения до требуемых минимальных значений за счет сужения и занижения проема. В этом случае рекомендуется сравнить полученные размеры получившегося проема с расчетными.

  • H — высота проема (максимальное значение);
  • B — ширина проема (максимальное значение);
  • h — высота притолоки (минимальное значение);
  • b1 — левое боковое пространство (минимальное значение);
  • b2 — правое боковое пространство (минимальное значение);
  • L — глубина помещения (минимальное значение);

При замере Н и В за итоговый размер принимается наибольшая величина; при замере h, b1, b2 и L — наименьшая.

Перепад уровня пола по всей ширине проема не должен превышать 10 мм.

НА ЧТО СЛЕДУЕТ ОБРАТИТЬ ВНИМАНИЕ ПРИ ЗАМЕРЕ

В зависимости от высоты и наклона притолоки h, ворота имеют различный конструктив (подъем). Поэтому во время замера следует определиться с возможным типом конструктива ворот.

http://www.portal-avtomatika.ru/
http://www.portal-avtomatika.ru/

Если по притолоке или потолку проложены трубы, кабели или прочие коммуникации и их нельзя убрать, то за уровень потолка следует принимать нижнюю точку этих коммуникаций.

Если потолок в помещении не ровный, за уровень потолка следует принять самую нижнюю точку потолка в области хода ворот.

http://www.portal-avtomatika.ru/
http://www.portal-avtomatika.ru/

Если часть притолоки невертикальна, то за уровень потолка следует принять окончание ровной притолоки. Помните, что притолока должна находиться в одной плоскости с пристенками.

О правильности замера проема зависит качество монтажа, выезд специалиста на замер бесплатный!

Продолжение следует...