Добавить в корзинуПозвонить
Найти в Дзене
4living

Как поделить одну комнату на троих?

Перед дизайнером Надеждой Ериной была поставлена задача — организовать пространство в однушке так, чтобы у каждого члена семьи было свое личное пространство. Дизайнер решила внести в интерьер немного динамики и оформить интерьер в афро-стиле. Именно благодаря этой идее, ей удалось по максимуму сохранить ощущение простора в помещении и нестандартно отзонировать уголок для каждого члена семьи.  Стены из пеноблоков четко разграничивают каждую зону: встречая у входа, они «ведут» вас в гостиную. Гостиная обрамлена теми же пеноблоками, которые отрезают от общей зоны приватные помещения. Угловые конструкции в прихожей, детской, спальне родителей, выполняющие роль шкафов для хранения вещей, лучше сделать на заказ из МДФ и покрасить в тон стен. Родительская спальня. Стены в этой комнате выложены мягкими вертикальными блоками белого цвета до самого потолка: они и декоративны, и вдобавок служат хорошей звукоизоляцией. Цветовое решение комнаты — светлые тона, чтобы не перегружать интерьер и сдел
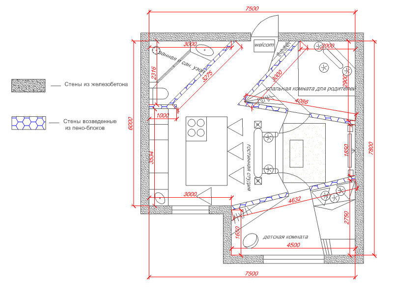
Первоначальный план однокомнатной квартиры
Первоначальный план однокомнатной квартиры

Перед дизайнером Надеждой Ериной была поставлена задача — организовать пространство в однушке так, чтобы у каждого члена семьи было свое личное пространство. Дизайнер решила внести в интерьер немного динамики и оформить интерьер в афро-стиле. Именно благодаря этой идее, ей удалось по максимуму сохранить ощущение простора в помещении и нестандартно отзонировать уголок для каждого члена семьи. 

План однокомнатной квартиры для троих с расстановкой мебели.
План однокомнатной квартиры для троих с расстановкой мебели.

Стены из пеноблоков четко разграничивают каждую зону: встречая у входа, они «ведут» вас в гостиную. Гостиная обрамлена теми же пеноблоками, которые отрезают от общей зоны приватные помещения. Угловые конструкции в прихожей, детской, спальне родителей, выполняющие роль шкафов для хранения вещей, лучше сделать на заказ из МДФ и покрасить в тон стен.

Родительская спальня. Стены в этой комнате выложены мягкими вертикальными блоками белого цвета до самого потолка: они и декоративны, и вдобавок служат хорошей звукоизоляцией. Цветовое решение комнаты — светлые тона, чтобы не перегружать интерьер и сделать спальню легкой и воздушной. В качестве акцентов выступили подушки, светильники, пуф и бамбуковые балки для балдахина. Функционально, удобно и красиво. Возле кровати расположился сундук — туалетный столик с зеркалом — для хранения вещей и различных предметов. 

-3

Детская. Чтобы выделить для ребенка свой уголок, пришлось присоединить и утеплить балкон. Комнату для мальчика дизайнер оформила тоже с легкими элементами этно, что большая редкость в дизайне интерьеров детских комнат. Кроватка — двухэтажная, идеальный вариант спального места в детских комнатах для мальчиков. На верхнем этаже — место для сна, на нижнем — диванчик с веселыми подушками и встроенными ящиками для хранения игрушек. Возле окна можно установить столик с «мобильными» ножками, которые по мере взросления ребенка можно будет подкручивать. Пока малыш маленький, стол будет служить для рисования или иных увлечений, в дальнейшем — для обучения и работы за компьютером. Такой столик — необходимый атрибут современных интерьеров детских комнат. 

-4

Гостиная-студия. Между двумя спальными зонами — полноценная зона для принятия гостей или отдыха всей семьи: просмотра телевизора, приема пищи и т.д. Кухню и гостиную разделяет небольшой белый диван и оригинальные напольные светильники. В самом центре располагается телевизор с колонками, который стоит на декоративном камине. Потолок в гостиной опущен на 15 см, в него встроены галогеновые лампы по всему периметру, что создает эффект парения и визуально «поднимает» потолок. 

-5

Кухня. Стены в этом помещении, также как и во всей квартире, покрыты венецианской штукатуркой, специальным шпателем, для имитации песка (пустыни). Экзотический светильник и барные стулья в стиле этно дополняют необычный интерьер. Полы — из темных пород дерева, вместо плинтуса по всему периметру гостиной-студии и прихожей выложен «ручеек» из гальки.