Найти в Дзене

Дом за 2.350.000 ₽. - Проект в стиле Барн Z252 - 81 кв.м Детальная смета!

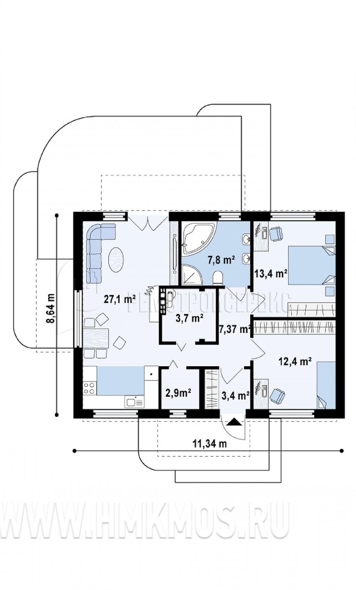
Современный одноэтажный дом в стиле Барн Оснащен панорамными окнами и открытой террасой, дизайн выдержан в консервативных пастельных тонах. В части гостинной расположился большой диван с камином в современном стиле Небольшая столовая зона и кухонный гарнитур Кухня небольшого размера и имеет достаточно вместительные шкафы. Одна из спален, которую при необходимости можно переделать в детскую Вторая спальня хозяйская Ванная комната достаточно большая и сочетает в себе душевую кабин и полноценную Ванную Входная группа и входя, имеют стеклянные козырьки для защиты от снега и дождя! Подробная смета на строительство дома: Если Вам нужна смета с объемами материалов оставляйте запрос в комментариях мы пришлем ее Вам. Проекты одноэтажных домов -https://www.hmkmos.ru/proektyi_odnoetajnyih_domov.html Кому понравился дом ставьте 👍 и пишите что нравится, а что нет. Подписывайтесь на наш Канал, Вас ждет много интересного!!! Проекты в других стилях: ->> Проект в стиле "Прерий" ->> Проект дома в

Современный одноэтажный дом в стиле Барн

Оснащен панорамными окнами и открытой террасой, дизайн выдержан в консервативных пастельных тонах.

-2

-3

В части гостинной расположился большой диван с камином в современном стиле

-4
-5
-6

Небольшая столовая зона и кухонный гарнитур

-7

Кухня небольшого размера и имеет достаточно вместительные шкафы.

-8

Одна из спален, которую при необходимости можно переделать в детскую

-9

Вторая спальня хозяйская

-10

Ванная комната достаточно большая и сочетает в себе душевую кабин и полноценную Ванную

-11

Входная группа и входя, имеют стеклянные козырьки для защиты от снега и дождя!

-12

Подробная смета на строительство дома:

-13
-14
-15

Если Вам нужна смета с объемами материалов оставляйте запрос в комментариях мы пришлем ее Вам.

Проекты одноэтажных домов -https://www.hmkmos.ru/proektyi_odnoetajnyih_domov.html

Кому понравился дом ставьте 👍 и пишите что нравится, а что нет. Подписывайтесь на наш Канал, Вас ждет много интересного!!!

Проекты в других стилях:

->> Проект в стиле "Прерий"

->> Проект дома в стиле минимализм

->> Проект в классическом стиле

->> Проект в стиле Хай-Тек

->> Проект в Викторианском стиле