Найти в Дзене

Лаконичный дом 12х13 с жилым чердаком - КУБАНЬ 123 м2

КУБАНЬ 123 м2 – проект дома 12 х 13 метров со стенами из тёплой керамики (или пенобетона). КОМФОРТ и ПОЭТАПНОЕ ОСВОЕНИЕ Дом задуман как одноэтажный с перспективой освоения чердака для расширения жилой площади. Первый этаж дома полностью самодостаточен. В распоряжении жильцов – гостиная-столовая, кухня, большая спальня с отдельной ванной и постирочной, две гостевых или детских комнаты. Вместо большой ванной можно сделать кабинет или четвертую спальню.
Предусмотрена кладовка под лестницей и котельная (подсобная) рядом со входом в дом. ИСПОЛЬЗОВАНИЕ ЧЕРДАКА Лестницу можно начать как из прихожей, так и из холла (повернуть). Кровля сразу делается утеплённой, перестраивать её не понадобится. Чердачное пространство может быть освоено позже основного этажа. Лестница начинается в прихожей, так что на чердаке можно обустроить совершенно автономное жильё. Например, для выросшего и создавшего свою семью ребёнка, или под сдачу. Пазухи кровли (там, где высота мала) хорошо подходят для инженерного
Оглавление

КУБАНЬ 123 м2 – проект дома 12 х 13 метров со стенами из тёплой керамики (или пенобетона).

КОМФОРТ и ПОЭТАПНОЕ ОСВОЕНИЕ

Дом задуман как одноэтажный с перспективой освоения чердака для расширения жилой площади.

Первый этаж дома полностью самодостаточен. В распоряжении жильцов – гостиная-столовая, кухня, большая спальня с отдельной ванной и постирочной, две гостевых или детских комнаты.

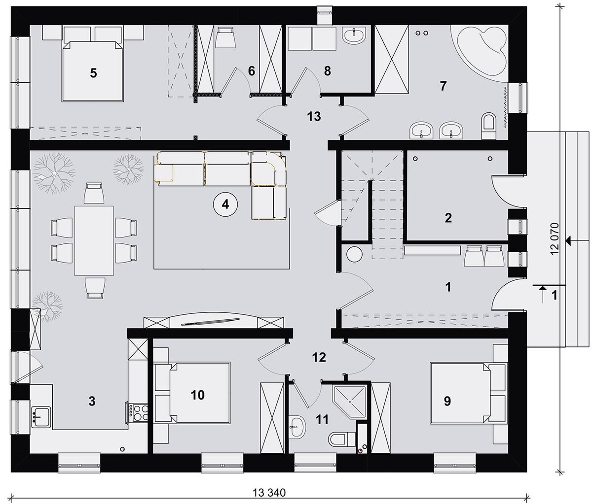
1. Прихожая 9,3 м2  2. Котельная 6,1 м2  3. Кухня 9,2 м2  4. Гостиная, 36,6 м2  5. Спальня, 15,2 м2  6. Гардеробная 3,9 м2  7. Ванная 11,3 м2  8. Постирочная 3,9 м2  9. Спальня 11,3 м2  10. Спальня 10,2 м2  11. С/у 3,4 м2  12. Тамбур 1,5 м2  13. Тамбур 1,5 м2
1. Прихожая 9,3 м2 2. Котельная 6,1 м2 3. Кухня 9,2 м2 4. Гостиная, 36,6 м2 5. Спальня, 15,2 м2 6. Гардеробная 3,9 м2 7. Ванная 11,3 м2 8. Постирочная 3,9 м2 9. Спальня 11,3 м2 10. Спальня 10,2 м2 11. С/у 3,4 м2 12. Тамбур 1,5 м2 13. Тамбур 1,5 м2

Вместо большой ванной можно сделать кабинет или четвертую спальню.
Предусмотрена 
кладовка под лестницей и котельная (подсобная) рядом со входом в дом.

ИСПОЛЬЗОВАНИЕ ЧЕРДАКА

Лестницу можно начать как из прихожей, так и из холла (повернуть). Кровля сразу делается утеплённой, перестраивать её не понадобится.

1. Холл 16,2 м2  2. Спальня 16,6 м2  3. Спальня 14,1 м2  4. Спальня 14,1 м2  5. Ванная 9,3 м2
1. Холл 16,2 м2 2. Спальня 16,6 м2 3. Спальня 14,1 м2 4. Спальня 14,1 м2 5. Ванная 9,3 м2

Чердачное пространство может быть освоено позже основного этажа.

Лестница начинается в прихожей, так что на чердаке можно обустроить совершенно автономное жильё. Например, для выросшего и создавшего свою семью ребёнка, или под сдачу.

Пазухи кровли (там, где высота мала) хорошо подходят для инженерного оборудования и разводки коммуникаций – воды, отопления, электрики.

► Похожий проект дома, но с фасадами в классическом стиле, САМАРА

ИНФОРМАЦИЯ О ПРОЕКТЕ

Комплект чертежей состоит из двух разделов.
В 
Паспорте показан внешний вид коттеджа, планировка, дан вариант отделки фасадов и обстановки помещений.

В альбоме АР дана информация о геометрии строения и частично о конструкциях с подсчетом основных строительных материалов. По частному заказу проект может быть доработан до полного КР.

► Информация о заказе, образец договора на приобретение здесь...

► Возможно внесение изменений в чертежи...

Читайте о других проектах ИНВАПОЛИС на нашем канале ДЗЕН