Найти в Дзене
4living

Париж: квартира 50 кв.м

И снова парижане доказывают свой талант «широко жить» на небольшой площади. Если хочется большую гостиную, не стоит мелочиться: «отрезайте» сразу полквартиры. 

Архитекторы: Мануэль Боннемазу и Аньес Камбю (Manuel Bonnemazou, Agnès Cambus), архитектурное бюро Element-S
Фото: Germain Suignard
Архитекторы: Мануэль Боннемазу и Аньес Камбю (Manuel Bonnemazou, Agnès Cambus), архитектурное бюро Element-S Фото: Germain Suignard

-2

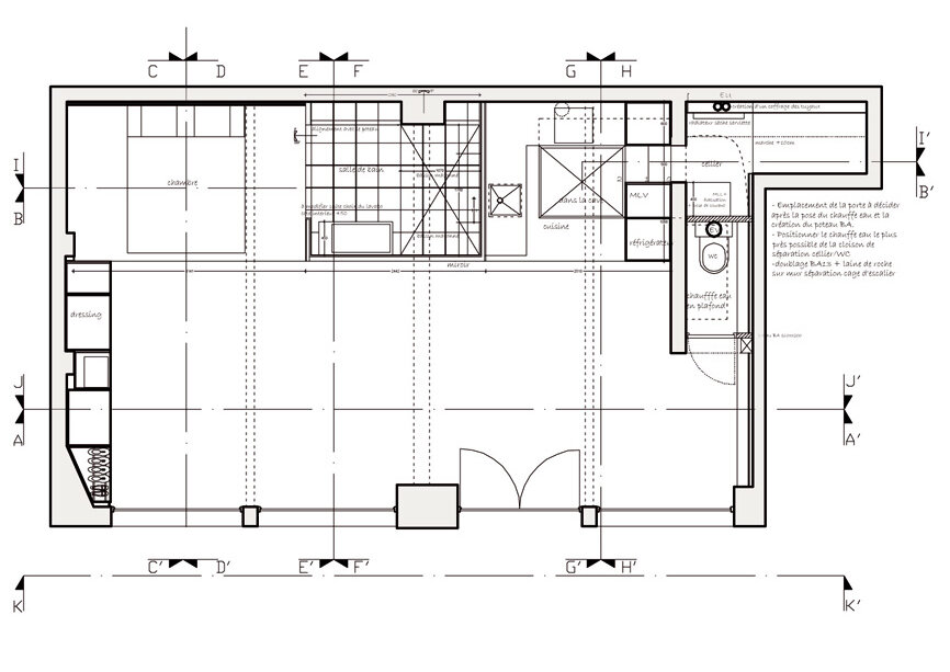
План. У этой квартиры практически прямоугольный план с небольшим «аппендиксом»: архитекторы прирезали к полезной площади крошечный закуток под лестницей. У хороших планировщиков и сантиметра не пропадает без дела – теперь там постирочная. 

-3

Аксонометрия. На аксонометрии видно, как зонированы основные функциональные пространства: на подиуме разместилась спальня, связанная с просторной ванной, и кухня. 

-4

Эскиз. Набросок будущего подиума из берёзовой фанеры: просто и экономно. Однако в этом современном интерьере он выглядит на удивление элегантно. 

-5

Главное достижение авторов интерьера этой 50-метровой квартиры, французских дизайнеров Мануэля Боннемазу и Аньес Камбю из Element-S, в том, что на сравнительно небольшой площади они сумели выкроить место для огромной светлой гостиной, ровно в полквартиры, не отказав в комфорте ни спальне, ни ванной, ни кухне.  

-6

Для этого по всей длине квартиры они выстроили подиум из березовой фанеры, разделенный на три примерно равных сегмента.

-7

В одном «отсеке» расположилась спальня, на противоположенном конце подиума кухня, при этом оба не очень больших пространства связаны с большой светлой гостиной: это наполняет их дневным светом и не позволяет выглядеть тесными.

В центре подиума расположен блок ванной комнаты, которая, по понятным причинам, закрыта от гостиной стеной и связана со спальней. Блок ванной  разделяет кухню от спальни, а расположенное на получившемся простенке огромное дополнительно зеркало расширяет пространство и, отражая окна, делает его еще светлее.