Найти в Дзене
Global Radiatori

Как перенести батареи в квартире

Оглавление

Держите пошаговую инструкцию.

Перенос радиаторов — это вам не шутки, а перепланировка, поэтому мероприятие нужно как следует оформить. Иначе есть куча рисков, начиная от плохого обогрева у вас или у соседей, заканчивая штрафом за незаконную перепланировку и необходимостью вернуть все на место. В общем, если вам дорого время и деньги, вот, что нужно сделать.

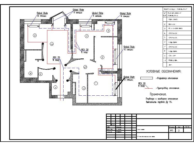
Шаг 1. Добудьте план квартиры.

Чтобы изменить расположение радиаторов, нужно отталкиваться от текущего плана квартиры. Не тот, что вы сами набросали на глазок, а настоящий полноценный план. Его можно получить в БТИ, но сначала инспектор навестит вас и проверит, не меняли ли вы планировку со времен составления последнего плана.

Новый план в Москве обойдется в среднем в 10-12 тысяч, и разработка займет около месяца.

-2

Шаг 2. Обратитесь к проектировщикам.

Им вы расскажете, куда хотите переместить батареи, а они уже оценят состояние системы отопления в квартире и решат, возможно ли это. Если все ок, и вы не хотите чего-то невозможного, проектировщики подготовят план новой системы отопления.

Стоимость создания проекта — от 5 тысяч рублей и до бесконечности, все зависит от метража квартиры и сложности изменений. В разных регионах страны цены тоже могут отличаться. По времени: примерно пару недель.

Почему нельзя обойтись без проектировщиков? Потому что они составляют план не только на основе ваших хотелок, но и исходя из требований безопасности и сантехнических норм. К тому же они расскажут, куда идти на следующем этапе.

Шаг №3. Идите по инстанциям.

Новый план нужно согласовать с кучей ведомств. Список может быть очень разный: там и УК, и МЧС, и Роспотребнадзор, и Жилинспекция. И еще много кого. Куда именно идти подскажут, как раз разработчики проекта.

-3

В перепланировке может быть отказано, если план составлен неверно. Этого можно избежать, если заказать проект в профильной организации, которая берет на себя ответственность за работу. И нет, мы не проектировщики и не продвигаем таким образом свои услуги. Просто хотим предостеречь вас от траты времени и денег.

Шаг №4. Выберите радиаторы.

Тут важно прислушаться к рекомендациям УК, которые могут подсказать, например, что вам лучше установить биметаллические радиаторы, потому что у воды в системе отопления повышенный pH.

-4

Если такой проблемы нет, то можно смело устанавливать алюминиевые батареи. Они хорошо отдают тепло, выдерживают все возможные перепады давления и служат пару десятков лет.

Что касается размеров радиаторов, то точный расчет лучше сделают профессионалы, которые учтут, например, тип дома и качество остекления. В целом размер батарей определяется из расчета 100 Вт/м2.

Шаг №5. Возвращайтесь в инстанции.

После перемещения радиаторов придется опять пройти всю цепочку согласований, чтобы чиновники убедились, что вы перенесли приборы именно так, как было написано в плане.

Сначала подаете заявление в Жилинспекцию. Если все в порядке, они же отправляют документы в БТИ. Но будьте готовы, что и те, и другие могут нагрянуть к вам в гости, чтобы все проверить.

-5

Когда новый план квартиры будет готов, отправляйтесь в Кадастровую палату, чтобы подтвердить, что вы владеете квартирой с такой планировкой — пригодится при последующей перепродажи жилья.

И все!

_ _ _ _ _ _ _ _ _ _ _ _ _ _ _ _ _ _ _ _ _ _ _ _ _ _ _ _ _ _ _ _ _ _ _ _ _ _ _ _ _ _ _ _ _ _ _ _ _ _ _ _ _ _ _ _ _

Понравилась статья? Нам важно твое мнение — голосуй лайками и комментариями, чтобы влиять на контент ;) 👍🏻👎🏻🤘🏻

_ _ _ _ _ _ _ _ _ _ _ _ _ _ _ _ _ _ _ _ _ _ _ _ _ _ _ _ _ _ _ _ _ _ _ _ _ _ _ _ _ _ _ _ _ _ _ _ _ _ _ _ _ _ _ _ _

Еще по теме:
Москвичам нельзя переносить батареи на балкон. Почему?
3 причины, почему вам стоит обратиться в управляющую компанию при замене радиаторов
5 причин поменять батареи прямо сейчас
Мы нашли самые странные способы установки радиаторов
Даже не думайте о самостоятельной установке батарей! Объясняем, почему так нельзя делать

_ _ _ _ _ _ _ _ _ _ _ _ _ _ _ _ _ _ _ _ _ _ _ _ _ _ _ _ _ _ _ _ _ _ _ _ _ _ _ _ _ _ _ _ _ _ _ _ _ _ _ _ _ _ _ _ _

Интересуешься отоплением и ремонтом?

Подписывайся на канал Global Radiatori и начнешь так хорошо разбираться в системах отопления, что ни один продавец или сантехник не сможет тебя обмануть!