Найти в Дзене
Сам себе не.....

А не построить ли мне.... ДОМ ч.1

А не построить ли мне.... ДОМ, подумал я. Всем привет, сегодня я начну цикл статей, о моей стройке. Многие скажут: "Еще один горе-строитель!", и возможно будут правы. Но сколько людей, столько и мнений. Возможно я поделюсь чем-то интересным, а возможно почерпну идеи для себя и из ваших комментариев. Итак Для начала немного о себе. Меня зовут... Хотя как меня зовут и почему у меня такой ник "Сам себе не..." Расскажу в следующих статьях. Пусть будет небольшой интригой. Вообщем приобрели мы участок в СНТ, пусть будет где-то на просторах нашей необъятной. Участок в 8 соток, ничем не отличающийся от других, оставшихся после советских садов. Начну пожалуй с того, что я решил все и полностью делать сам. Проект. Проектировать сие безобразие я решил в программе Компас 3D, т.к. уже имел небольшой опыт работы а этой САПР. Если будет кому-то интересно, могу замутить отдельную статью об этой программе и как в ней "разработать" ну хотя бы не проект, но некоторое подобие проекта самому. После недол

А не построить ли мне.... ДОМ, подумал я.

Всем привет, сегодня я начну цикл статей, о моей стройке. Многие скажут: "Еще один горе-строитель!", и возможно будут правы. Но сколько людей, столько и мнений. Возможно я поделюсь чем-то интересным, а возможно почерпну идеи для себя и из ваших комментариев.

Итак

Для начала немного о себе. Меня зовут... Хотя как меня зовут и почему у меня такой ник "Сам себе не..." Расскажу в следующих статьях. Пусть будет небольшой интригой.

Вообщем приобрели мы участок в СНТ, пусть будет где-то на просторах нашей необъятной. Участок в 8 соток, ничем не отличающийся от других, оставшихся после советских садов. Начну пожалуй с того, что я решил все и полностью делать сам.

Проект.

Проектировать сие безобразие я решил в программе Компас 3D, т.к. уже имел небольшой опыт работы а этой САПР. Если будет кому-то интересно, могу замутить отдельную статью об этой программе и как в ней "разработать" ну хотя бы не проект, но некоторое подобие проекта самому. После недолгих обсуждений со своей женой, мы определились с концептом. Будет дом и баня под одной крышей. Окей.

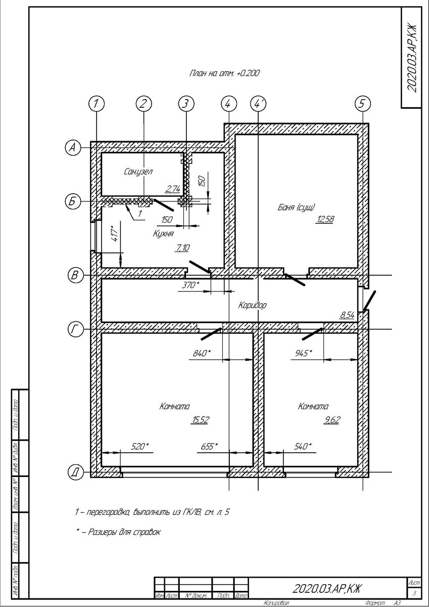
Планировка будущего дома.
Планировка будущего дома.

Вот такую планировку мы определили в качестве основной. Пусть никого не смущает надпись Баня (сущ.), т.к. на момент проектирования дома я уже закончил строительство бани, ибо участок был приобретен с уже заложенным фундаментом из фундаментных блоков ФБ. О ее (бане) возведении, я буду также рассказывать в следующих статьях.

3D модель дома
3D модель дома

3D модель дома, сделанная в той же программе. Крыша и фундамент условно не показаны.

Фундамент был заложен предыдущими хозяевами. Мелкозаглубленный из фундаментных блоков шириной 300мм. Сделан он достаточно качественно, к сожалению фоток пока нет т.к. нахожусь на работе в далеке от дома. Размеры предполагаемого строения 8х10м. Этажность - 1 этаж. В будущем конечно предполагается достроить и мансардный этаж, но пока, что есть - то есть.

Сразу хочу оговориться, что материал возведения стен будет - арболитовый блок. Но об этом позже... Зачем я делал проект сам. Ответ прост - экономия. Мы ведь не олигархи какие-нибудь. Проект мне обошелся несколько недель работы, немного гугла и небольшая ссора с женой. Забегая вперед скажу, что минут через 20 мы уже помирились )). Кто-то скажет "А где расчеты?", "А ветровую и снеговую нагрузку считали?" и т.д. и т.п. Конечно же все считал. На проектный институт по строительству не претендую, но в интернете сейчас овердофига информации по этому поводу. Поэтому все делается достаточно легко. И я считаю, что платить кому-то за проект пустая трата денег. Если я не прав, поправьте меня в комментариях.

На сегодня пока все. К сожалению я не профессиональный блогер, статеер и прочий -ер. Буду стараться писать каждый день, но основная работа может этому помешать.
To be continued
А не построить ли мне... ДОМ ч.2