Найти в Дзене
Баня | От А до Я

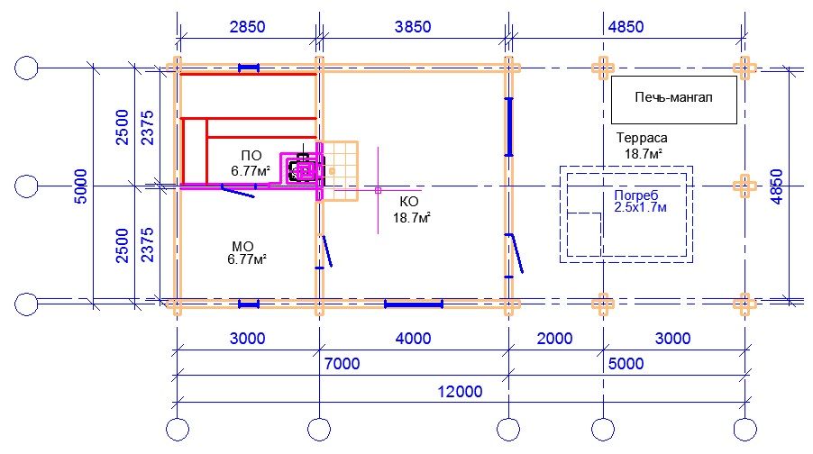
Построил баню из профбруса с террасой, сосед обзавидовался: проект и процесс строительства

В моих планах (или лучше сказать грезах) была Русская банька с террасой и печью-мангалом...
Оглавление

Три года тому назад я купил участок площадью в 15 соток рядом с Екатеринбургом. В моих планах (или лучше сказать грезах) была Русская банька с террасой и печью-мангалом. Летом баня нужна на постоянной основе, зимой – время от времени.

План строительства следующий:

  • Фундамент: МЗЛФ с сечением 270*700 мм;
  • Стены: профилированный брус 150*150 мм высотой 2.5 м, перегородка между помывочной и парной - каркасная (100 мм);
  • Пол: в парной и помывочной – по грунту с теплым полом, в комнате отдыха – доска по балкам 100*200 мм с утеплителем
  • Печка: Изи Стим СОЧИ M2 с кирпичной кладкой;
  • Кровля: металлочерепица, чердак холодный;
  • Водоснабжение: летом – с близлежащего участка, в зиму – ведрами вручную;
  • Водоотвод: перевернутая бочка в 3 метрах от постройки;
  • Нагревание воды с помощью теплообменника на трубе с баком в моечном отделении;
  • Отопление: от печки с конвекционными дверками. В моечной и парной – теплые полы. В холод в комнате отдыха есть 2 конвектора.

Укладкой ленточного фундамента занимались южные товарищи. Все обошлось бы благополучно, если не одно «но». На пол и отмостку первой партии бетона не хватило (несмотря на то, что я заказал больше, чем планировал – 6 кубов). Слой на отмостке получился на пару сантиметров больше расчетного. Об идеально ровном фундаменте пришлось забыть.

-2

Новые приключения начались с приезда транспорта с брусом – манипулятор застрял в колее и никак не хотел заезжать на участок. В итоге выгрузили весь материал за забором и пришлось рабочим вчетвером его перетаскивать.

Уложили подкладочную доску и собрали три первых венца (с выравниванием по нивелиру). Верхняя поверхность вышла неидеальной, с погрешностью в 25 мм, из-за проблем фундаментом.

-3

На сборку сруба у мужиков ушло три дня. Бригада мне очень понравилась, работают парни без суеты, четко и слаженно. По коньку из бруса 150-мм на высоте 5 метров ходят как нефиг делать. Когда стропила на крыше были готовы, мы на пару с тестем раскатали по ним Изоспан-Д и прижали контрообрешеткой.

-4

Когда лето закончилось, стройка отложилась. С крышей я «сводил счеты» уже зимой, что стоило мне немалых усилий. Снег выпал, подтаял и образовал ледяную корку, которую я потом усердно отковыривал из-под обрешетки.

-5

Чтобы не терять время, сразу заказал металлочерепицу и договорился с прежней бригадой. Поначалу я переживал за установку обрешетки и длину листа, но в итоге все совпало.

После утепления цоколя Пеноплеском я приступил покраске и шлифовке. Сначала я не планировал шлифовку. Но в процессе стройки стены местами испачкались, местами обросли грибком, так что выбора не оставалось.

-6

После шлифовки (проходил сначала 40 зерном, а затем 80) покрыл дерево праймером, а затем Тиккурилой Валти Колор. Консультант советовал наносить краску в два слоя, но я отказался – цвет получался слишком темный.

С момента строительства прошло два года

За это время я успел оценить все прелести русской бани, и семью приучил к целебному пару. Но ложка дегтя в моем опыте имеется. Со временем на брусе появились трещины. Особенно им понравилась солнечная сторона. Торцы от растрескивания я спал своевременной обработкой.