Добавить в корзинуПозвонить
Найти в Дзене
HQROOM

Яхта в лесу — загородный дом 125 м² в Московской области

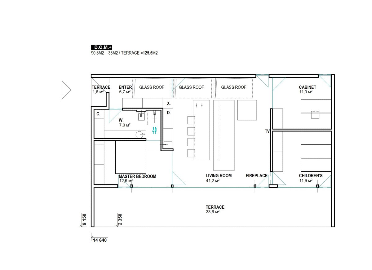
Дом бизнес-класса 125 м² Компания DOMPLUS.CLUB представила загородный дом в Московской области. Частная резиденция площадью 125 кв. метров возведена в кратчайшие сроки с использованием промышленных методов проектирования и строительства - для полного завершения потребовалось всего 90 дней. Главной задачей было создать невысокое строение, идеально вписанное в ландшафт и не нарушающее гармонию окружающего пейзажа. За основу дизайна взята стилистика 1930–40 годов, а особое внимание в процессе проектирования уделено хорошей инсоляции. Благодаря линейной планировке в центре дома расположены гостиная, кухня и столовая, по двум сторонам от которых предусмотрены три спальни. Вся мебель для резиденции изготовлена строительным способом прямо на месте. Особенности проекта: Детали: DOMPLUS.CLUB Подробнее: Дом 125 м² с мебелью за 90 дней
Оглавление
фото: DOM 125M / DOMPLUS.CLUB
фото: DOM 125M / DOMPLUS.CLUB

Дом бизнес-класса 125 м²

Компания DOMPLUS.CLUB представила загородный дом в Московской области. Частная резиденция площадью 125 кв. метров возведена в кратчайшие сроки с использованием промышленных методов проектирования и строительства - для полного завершения потребовалось всего 90 дней. Главной задачей было создать невысокое строение, идеально вписанное в ландшафт и не нарушающее гармонию окружающего пейзажа. За основу дизайна взята стилистика 1930–40 годов, а особое внимание в процессе проектирования уделено хорошей инсоляции. Благодаря линейной планировке в центре дома расположены гостиная, кухня и столовая, по двум сторонам от которых предусмотрены три спальни. Вся мебель для резиденции изготовлена строительным способом прямо на месте.

-2

Особенности проекта:

  • Утепление с превышением строительных норм РФ.
  • Ограждающая конструкция является отделочной (абсолютно экологичные клеёные панели берёзового шпона XXII века). Гарантия от производителя 100 лет.
  • Использование самого эффективного самозатухающего утеплителя, который не набирает влагу.
  • Заказчик получает готовый дом через 90 дней, в который можно сразу заселяться.

Детали: DOMPLUS.CLUB

фото: DOM 125M / DOMPLUS.CLUB
фото: DOM 125M / DOMPLUS.CLUB
фото: DOM 125M / DOMPLUS.CLUB
фото: DOM 125M / DOMPLUS.CLUB
фото: DOM 125M / DOMPLUS.CLUB
фото: DOM 125M / DOMPLUS.CLUB
фото: DOM 125M / DOMPLUS.CLUB
фото: DOM 125M / DOMPLUS.CLUB
фото: DOM 125M / DOMPLUS.CLUB
фото: DOM 125M / DOMPLUS.CLUB
фото: DOM 125M / DOMPLUS.CLUB
фото: DOM 125M / DOMPLUS.CLUB
фото: DOM 125M / DOMPLUS.CLUB
фото: DOM 125M / DOMPLUS.CLUB
фото: DOM 125M / DOMPLUS.CLUB
фото: DOM 125M / DOMPLUS.CLUB
фото: DOM 125M / DOMPLUS.CLUB
фото: DOM 125M / DOMPLUS.CLUB
фото: DOM 125M / DOMPLUS.CLUB
фото: DOM 125M / DOMPLUS.CLUB
фото: DOM 125M / DOMPLUS.CLUB
фото: DOM 125M / DOMPLUS.CLUB
фото: DOM 125M / DOMPLUS.CLUB
фото: DOM 125M / DOMPLUS.CLUB
фото: DOM 125M / DOMPLUS.CLUB
фото: DOM 125M / DOMPLUS.CLUB
фото: DOM 125M / DOMPLUS.CLUB
фото: DOM 125M / DOMPLUS.CLUB
фото: DOM 125M / DOMPLUS.CLUB
фото: DOM 125M / DOMPLUS.CLUB
фото: DOM 125M / DOMPLUS.CLUB
фото: DOM 125M / DOMPLUS.CLUB
фото: DOM 125M / DOMPLUS.CLUB
фото: DOM 125M / DOMPLUS.CLUB
фото: DOM 125M / DOMPLUS.CLUB
фото: DOM 125M / DOMPLUS.CLUB
фото: DOM 125M / DOMPLUS.CLUB
фото: DOM 125M / DOMPLUS.CLUB

Подробнее: Дом 125 м² с мебелью за 90 дней