Найти в Дзене
cozy_interior_home

Кухня ИКЕА Метод. Продолжение.

Всем привет, продолжим про кухню, начало можно почитать здесь - Кухня ИКЕА Метод Вот такой макет кухни я легко сделала с помощью конструктора на сайте ИКЕА У нас на кухне большой вентиляционный короб, он располагается слева от кухни, мойка примыкает к нему. Короб кстати, выкрашен меловой краской :) О меловой краске в интерьере читайте здесь - Грифельная/меловая стена в интерьере. Про размеры - все шкафы 60 см кроме последнего пенала, он 40. Такие размеры были идеальны для нашего помещения. Поэтому мы решили ничего не мудрить, сделать прямую кухню. Напомню, фасады у нас СЭВЕДАЛЬ, столешница КАРЛБИ, подвесы ХЕКТАР, вытяжка тоже ИКЕА, как и ПММ и выстроенный холодильник. А вот мойку и кран мы купили японской фирмы Omoikiri, очень долго и тщательно искала, и этот вариант мне понравился больше всего, советую. Кухня получилась небольшая, но достаточно вместительная. В ящиках под мойкой хранится бытовая химия для кухни, пакеты, губки. Над мойкой мы в итоге разместили два шкафчика

Всем привет, продолжим про кухню, начало можно почитать здесь -

Кухня ИКЕА Метод

Вот такой макет кухни я легко сделала с помощью конструктора на сайте ИКЕА

У нас на кухне большой вентиляционный короб, он располагается слева от кухни, мойка примыкает к нему.

Короб кстати, выкрашен меловой краской :) О меловой краске в интерьере читайте здесь - Грифельная/меловая стена в интерьере.

Про размеры - все шкафы 60 см кроме последнего пенала, он 40. Такие размеры были идеальны для нашего помещения. Поэтому мы решили ничего не мудрить, сделать прямую кухню.

Напомню, фасады у нас СЭВЕДАЛЬ, столешница КАРЛБИ, подвесы ХЕКТАР, вытяжка тоже ИКЕА, как и ПММ и выстроенный холодильник. А вот мойку и кран мы купили японской фирмы Omoikiri, очень долго и тщательно искала, и этот вариант мне понравился больше всего, советую.

Кухня получилась небольшая, но достаточно вместительная. В ящиках под мойкой хранится бытовая химия для кухни, пакеты, губки. Над мойкой мы в итоге разместили два шкафчика потом, там сушка для посуды и второй используем для хранения фужеров. На макете шкафчиков нет, мы их потом добавили.

Особое внимание хочу уделить крайнему шкафу, пенал 40 см. Этот шкаф я придумала еще до самой кухни, для хранения мелкой бытовой техники- хлебопечка, тостер, блендер, мясорубка и прочее, все умещается, очень удобно.

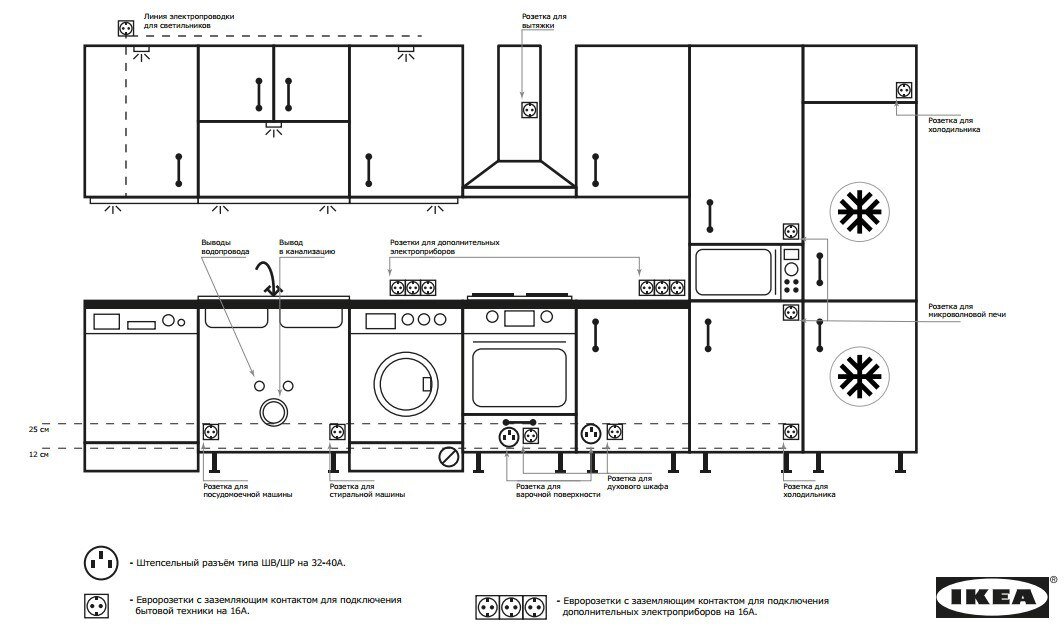
Кстати, не забывайте про розетки. Есть хорошие памятки с рекомендациями насчет розеток, листайте карусель.

Спустя два года могу сказать, что кухней мы довольны полностью, качество на высоте, белые фасады очень приятные в уходе))