Найти в Дзене

Проект одноэтажного дома 304В "Выбор удачи" с четырьмя спальными (137м2)

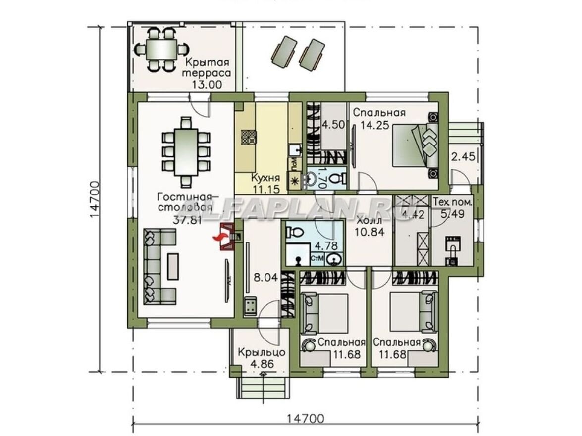
Проект современного одноэтажного дома 304 "Выбор удачи" разработан в двух вариантах: вариант А – с тремя спальными комнатами, вариант В – с четырьмя.
При сравнительно небольшой общей площади в доме есть все необходимое для комфортной жизни. Дом, прежде всего, отлично разделен на общую и спальные зоны, которые находятся по разные стороны от входа и прихожей.

Проект современного одноэтажного дома 304 "Выбор удачи" разработан в двух вариантах: вариант А – с тремя спальными комнатами, вариант В – с четырьмя.

При сравнительно небольшой общей площади, в доме есть все необходимое для комфортной жизни. Дом, прежде всего, отлично разделен на общую и спальные зоны, которые находятся по разные стороны от входа и прихожей. Спальные комнаты вынесены в отдельный функциональный блок.

Общая площадь дома составляет 136,6 м2.

В варианте проекта 304А кухня вынесена в отдельный объем от столовой. В варианте 304В – кухня объединена с гостиной-столовой и таким образом, выгорожена еще одна дополнительная комната для кабинета – компьютерной или для гостевой комнаты.

Фасады современного одноэтажного дома оформлены облицовочным кирпичом со вставками из дерева и штукатурки.

Проект разработан архитектурно-дизайнерской студией «Альфаплан».

Характеристики:
Тип фундамента - монолитная ж/б плита (250 мм)
Тип наружных стен - газо/пенобетон
Тип внутренних стен - газо/пенобетон
Тип перекрытий - по деревянным балкам
Тип кровли - натуральная или битумная черепица
Наружная отделка - облицовочный кирпич, штукатурка, вагонка
Наружная отделка цоколя - облицовочный камень

Дом по проекту может быть реализован в любом регионе России. Готовые проекты домов требуют ПРИВЯЗКИ к участку строительства.

Архитектурный проект является охраняемым объектом авторского права. Воспроизведение визуализаций проекта и/или его частей разрешается с обязательным указанием имени автора и активной гиперссылки на источник.

Ставьте лайки, подписывайтесь на наш канал Яндекс ДЗЕН. Стройте дома по проектам ® Альфаплан!