Добавить в корзинуПозвонить
Найти в Дзене
САМОСТРОЙ

Элегантный двухэтажный дом с боковым гаражом и кабинетом на первом этаже

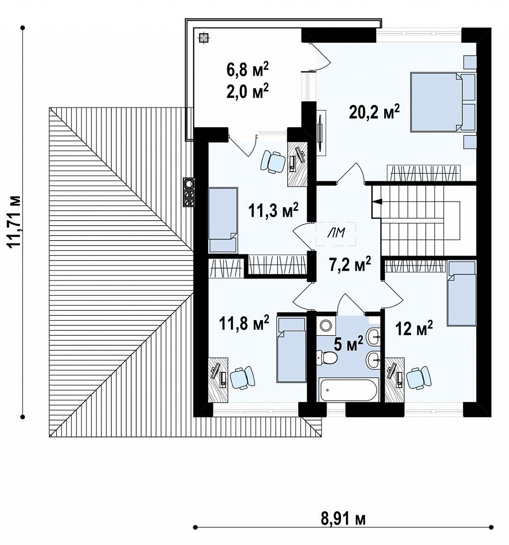
Общая площадь: 164 м² Гараж: 19,5 м² Наружные стены: газобетонные блоки Фундамент: ленточный сборно-монолитный из ФБС блоков Высота: 8,56 м Кровля: керамическая черепица Стоимость строительства: 3 580 000 руб.

Общая площадь: 164 м²

Гараж: 19,5 м²

Наружные стены: газобетонные блоки

Фундамент: ленточный сборно-монолитный из ФБС блоков

Высота: 8,56 м

Кровля: керамическая черепица

Стоимость строительства: 3 580 000 руб.