Добавить в корзинуПозвонить
Найти в Дзене
САМОСТРОЙ

Современный элегантный дом с гостиной с фронтальной стороны

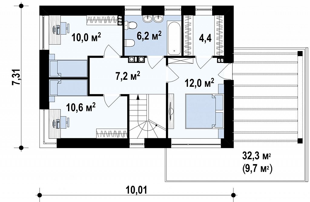
Общая площадь: 140 м² Гараж: 20,7 м² Наружные стены: газобетонные блоки Фундамент: ленточный сборно-монолитный из ФБС блоков Высота: 7 м Кровля: ПВХ мембрана Стоимость строительства: 3 050 000 руб.

Общая площадь: 140 м²

Гараж: 20,7 м²

Наружные стены: газобетонные блоки

Фундамент: ленточный сборно-монолитный из ФБС блоков

Высота: 7 м

Кровля: ПВХ мембрана

Стоимость строительства: 3 050 000 руб.