Найти в Дзене

Дом шале из клееного бруса. Красота проекта при простоте строительства.

Дома шале всегда отличались простотой и шармом. Свой следующий проект дома из клееного бруса мы так и назвали – Шале-278. Этот деревянный дом шале сочетает в себе комфорт, удобство эксплуатации и простоту конструкции деревянных стен из клееного бруса. Шале из клееного бруса не относится к разряду деревянных домов эконом класса. Для проекта в стиле шале характерны большие площади комнат, свободная планировка помещений как на первом, так и на втором этажах. Площадь дома Шале-278 больше 250 кв. метров - почти 280 кв. метров. На первом этаже кроме гостиной и кухни-столовой есть еще спальня и большой санузел. На втором этаже этого деревянного дома шале также две больших спальни, кабинет и два санузла. Рекомендуемое сечение клееного бруса от нашей фирмы Могута http://могута.рф для строительства деревянного дома в стиле шале 200 на 185. При этом толщина стены из клееного бруса в 200 мм вполне пригодна для постоянного проживания даже в северных районах России. Основное отличие домов в сти

Дома шале всегда отличались простотой и шармом. Свой следующий проект дома из клееного бруса мы так и назвали – Шале-278.

Дом шале
Дом шале

Этот деревянный дом шале сочетает в себе комфорт, удобство эксплуатации и простоту конструкции деревянных стен из клееного бруса. Шале из клееного бруса не относится к разряду деревянных домов эконом класса. Для проекта в стиле шале характерны большие площади комнат, свободная планировка помещений как на первом, так и на втором этажах.

Проект дома шале
Проект дома шале

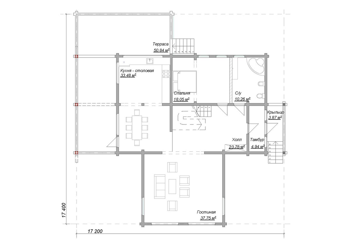
Площадь дома Шале-278 больше 250 кв. метров - почти 280 кв. метров. На первом этаже кроме гостиной и кухни-столовой есть еще спальня и большой санузел. На втором этаже этого деревянного дома шале также две больших спальни, кабинет и два санузла.

Дом шале
Дом шале

Рекомендуемое сечение клееного бруса от нашей фирмы Могута http://могута.рф для строительства деревянного дома в стиле шале 200 на 185. При этом толщина стены из клееного бруса в 200 мм вполне пригодна для постоянного проживания даже в северных районах России. Основное отличие домов в стиле шале в конструкции крыши – она пологая и накрывает деревянный дом вместе с террасами и другими пристройками дома из дерева.

Проект дома шале
Проект дома шале

Компания Могута осуществляет строительство домов шале из клееного бруса на всей центральной территории России. Собственное проектное бюро позволяет создавать проекты деревянных домов не только в стиле шале, но также в русском стиле, с элементами классицизма, модерна и в других направлениях архитектуры. Эти проекты можно увидеть в нашем каталоге деревянных домов: http://могута.рф/proekty

#деревянныедомаМогута – дома шале из клееного бруса-

Общая площадь: 278,11 м2
Площадь 1 этажа: 182,94 м2
1 этаж:
кухня-столовая – 33,48
холл -23,75
гостиная - 37,75
тамбур – 4,94

спальня – 18,05
с/у – 10,26
терраса – 50,84
крыльцо – 3,87

Площадь 2 этажа: 95,17 м2
2 этаж:

спальня - 20,45
спальня – 21,47
кабинет – 12,54
холл - 14,55

с/у – 6,84

с/у – 7,22

балкон – 12,1

Подробнее о проекте , ценах и строительстве смотрите в источнике:

http://могута.рф/proekty/doma-ploshchadyu-bolee-250-kv-m/shale.html

+7 910 790 21 51

А Вы бы хотели что-то изменить в проекте? Пишите Ваши пожелания в комментариях .