Добавить в корзинуПозвонить
Найти в Дзене
Promed

Дома для жизни

Начиная строительство своего дома или подыскивая готовый вариант, очень часто будущие хозяева совершают одну и ту же ошибку- ищут большой дом. Решившись на вложение денег в стройку, хочется стоить «на века» и «для внуков». И выбирая между современными технологиями строительства и камнем/срубом, особенно мужчины часто становятся очень консервативны- закладывают фундамент в 500 кв. м. под каменный дворец. Давайте разберем несколько вариантов строительства и планировок, чтобы понять, а что же действительно нужно семье из 4 человек и собаки для нормальной жизни. Странно, что покупая квартиру и решаясь на ипотеку, мы смотрим реальнее на имеющиеся средства на покупку и ремонт. А вот начатые и заброшенные дома на самых разных этапах строительства из-за того, что хозяин не рассчитал средства – частое явление в коттеджных поселках и СНТ. Итак, считаем, что каждому ребенку в новом доме будет нужна комната, родителям- спальня, общее пространство и кабинет (желательно), который периодически б

 Nordic 110  с сайта застройщика www.nordicwood.ru
Nordic 110 с сайта застройщика www.nordicwood.ru

Начиная строительство своего дома или подыскивая готовый вариант, очень часто будущие хозяева совершают одну и ту же ошибку- ищут большой дом.

Решившись на вложение денег в стройку, хочется стоить «на века» и «для внуков». И выбирая между современными технологиями строительства и камнем/срубом, особенно мужчины часто становятся очень консервативны- закладывают фундамент в 500 кв. м. под каменный дворец.

Давайте разберем несколько вариантов строительства и планировок, чтобы понять, а что же действительно нужно семье из 4 человек и собаки для нормальной жизни.

Странно, что покупая квартиру и решаясь на ипотеку, мы смотрим реальнее на имеющиеся средства на покупку и ремонт. А вот начатые и заброшенные дома на самых разных этапах строительства из-за того, что хозяин не рассчитал средства – частое явление в коттеджных поселках и СНТ.

Итак, считаем, что каждому ребенку в новом доме будет нужна комната, родителям- спальня, общее пространство и кабинет (желательно), который периодически будет служить комнатой для гостей. Это не более пяти жилых комнат. Два санузла- поверьте- это удобно. Один санузел-основной, большой, со стиральной машиной, второй- более камерный, ближе к спальням. Технические помещения- прихожая (в нашем климате- обязательна), котельная (отлично если с отдельным входом), гардеробная и кладовая. И, конечно же, кухня.

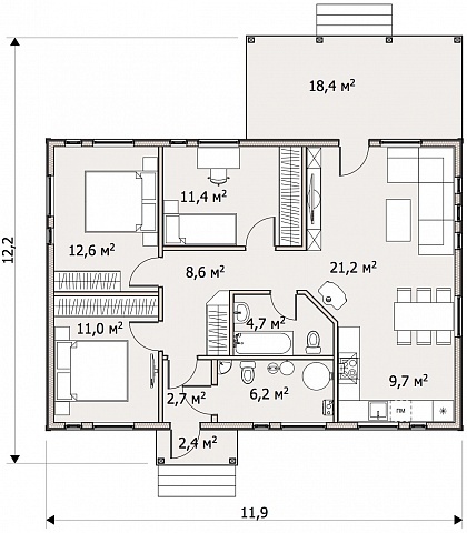
Обратите внимание на планировку выше. Одна родительская спальня , две детские комнаты, большое общее помещение совмещенное с кухней. Выход на веранду. И два санузла (один из них совмещен с техническим помещением- котельной). Отличный дом. Всего 110 кв. м, однако эргономичный и нет пространства, которое бы не использовалось.

Еще посмотрите проект, от крупного застройщика 123 кв. м.

В 90-е годы и в начале 2000-х были популярны огромные дома по 300-500 кв.м. Но такие дома дорого и долго строить, а так же дорого отделывать. Отопление больших площадей требует так же немало средств, как и монтаж оборудования под него.

И еще один очень важный момент- уборка большого дома. Конечно, если у вас есть возможность нанять клининговую компанию или приглашать уборщицу,то это не про вас. Однако, если нет, то генеральная уборка дома 250-300 кв. м. после и перед праздниками может сделать любой праздник уже не таким желанным.

И если 5 лет назад застройщики очень редко имели в арсенале проекты небольших домов "для жизни", то теперь этот сегмент один из самых востребованных.

Посмотрим еще проект такого формата:

Домик полезной площадью 110 кв. м. имеет не только два санузла, но и сауну.

Стройте дома в которых будете жить! Да прибудет с вами кирпич и клееный брус!