Найти в Дзене
Z500 Архитектурное бюро

Z28 Элегантный дом с мансардой, эркером и балконом над ним.

Элегантный дом Z28 выделяется среди прочих проектов своим выдержанным, благородным, классическим дизайном. Архитектурные дополнения в виде мансардных окон, аркады, оформляющей крыльцо, эркера и балкона над ним делают этот дом изысканным и неповторимым.
Преимущества проекта Z28:
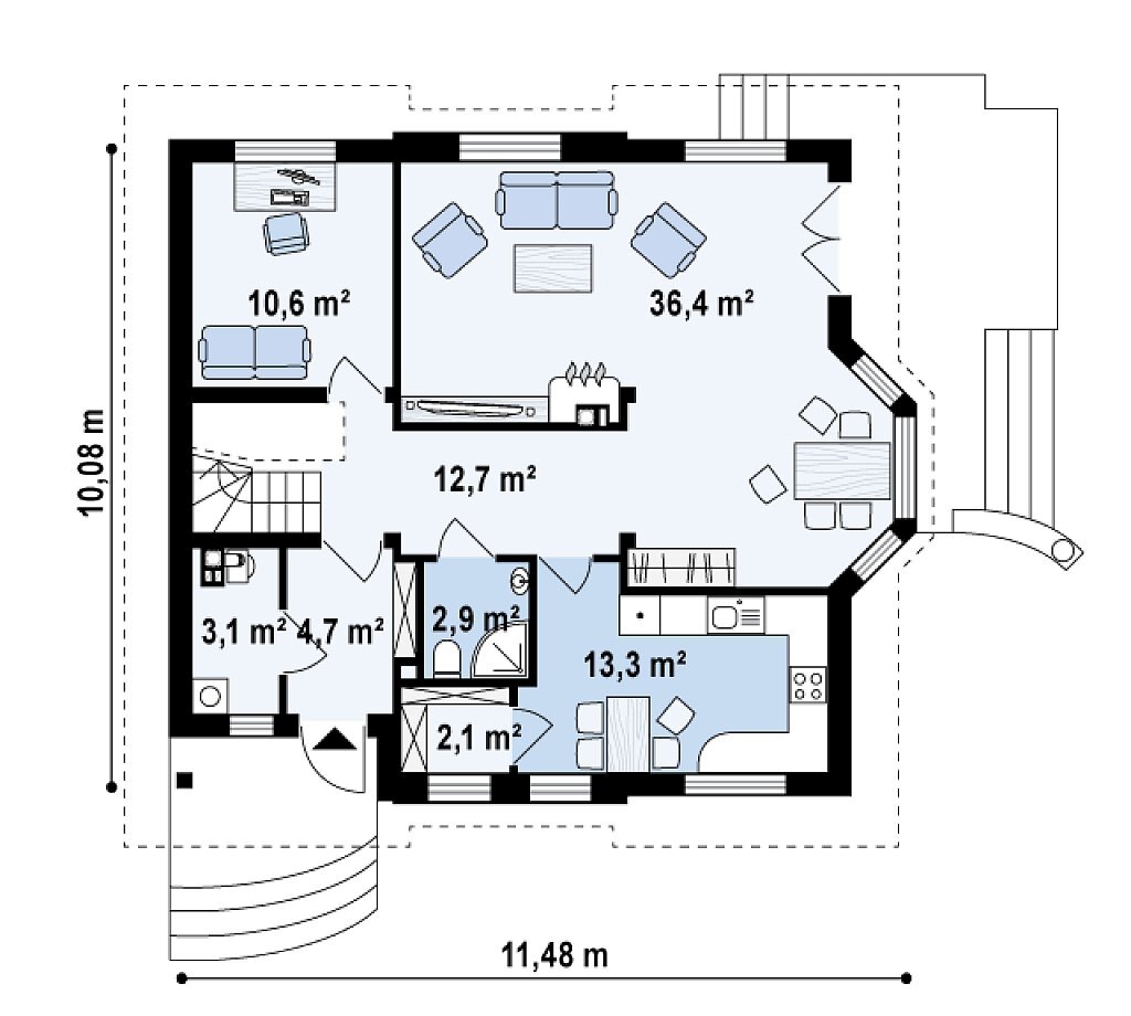
Отсутствие внутренних несущих стен дают возможность вносить многочисленные изменения в планировку: можно отказаться от

Элегантный дом Z28 выделяется среди прочих проектов своим выдержанным, благородным, классическим дизайном. Архитектурные дополнения в виде мансардных окон, аркады, оформляющей крыльцо, эркера и балкона над ним делают этот дом изысканным и неповторимым.

-2

Преимущества проекта Z28:

  • Отсутствие внутренних несущих стен дают возможность вносить многочисленные изменения в планировку: можно отказаться от дополнительной комнаты на первом этаже и стенной перегородки между холлом и гостиной, тогда площадь гостиной станет гораздо больше. Либо наоборот увеличить площадь кабинета за счет гостиной.
  • Закрытую кухню по достоинству оценят любители закрытых планировок. При желании ее можно сделать открытой, отказавшись от стенной перегородки.
  • Камин, расположенный в центре гостиной, кроме своих эстетических преимуществ может служить дополнительным источником тепла в холодную погоду.
-3
  • Выход на террасу в гостиной сможет наполнить ее свежим воздухом в летнее время и подарит ощущение единства с природой.
  • Эркер в обеденной зоне аккуратно отделяет обеденную подзону от остального пространства.
  • Кладовая с доступом из кухни очень удобна для хранения запасов и хозяйственной утвари.
  • Дополнительная комната на первом этаже делает первый этаж более комфортным и функциональным.
  • Одна из спален ночной зоны имеет выход на балкон, две другие оснащены собственными гардеробными.
  • Санузлы расположенные один над другим упрощают установку в доме водопроводной системы.
-4

Понравился проект? Пишите комментарии.

  • Заказать проект можно ЗДЕСЬ! 
  • Все подробности о данном проекте Вы найдете ЗДЕСЬ! 

Посмотреть другие проекты вы можете на сайте.

Подписывайтесь чтобы быть в курсе новинок.