Найти в Дзене

Нарисовал дом в Paint. И построил. Часть 1.

О выборе участков и общем подходе к строительству дома я писал ранее, так что пожалуй пришло время рассказать о том, как я начал разработку проекта дома.
На самом деле, еще задолго до побега из города я задумывался о том, какой бы дом я построил если бы у меня была бы возможность. Поэтому набросков в голове было много, и картина "хотелки" сформировалась довольно быстро.
Эксплуатационные требования к планировке дома были довольно просты:
Дом должен быть аналогом трёхкомнатной квартиры, вернее, евро-трёшки (кухня-гостиная и две комнаты)
Комнаты не должны быть проходными. Все входы в них должны быть из коридора
В доме должен быть раздельный санузел
В спальне будем только спать, а всю остальную деятельность вести за ее пределами - поэтому никаких компьютеров, телевизоров и пр. в ней быть не должно
Должна быть возможность расширения дома прибавлением кол-ва спален (жилой чердак-лофт или второй этаж)
Должна быть террасса или задел под ее устройство, с выходом из гостиной
Должен быть отдел

О выборе участков и общем подходе к строительству дома я писал ранее, так что пожалуй пришло время рассказать о том, как я начал разработку проекта дома.
На самом деле, еще задолго до побега из города я задумывался о том, какой бы дом я построил если бы у меня была бы возможность. Поэтому набросков в голове было много, и картина "хотелки" сформировалась довольно быстро.

Эксплуатационные требования к планировке дома были довольно просты:

Дом должен быть аналогом трёхкомнатной квартиры, вернее, евро-трёшки (кухня-гостиная и две комнаты)
Комнаты не должны быть проходными. Все входы в них должны быть из коридора
В доме должен быть раздельный санузел
В спальне будем только спать, а всю остальную деятельность вести за ее пределами - поэтому никаких компьютеров, телевизоров и пр. в ней быть не должно
Должна быть возможность расширения дома прибавлением кол-ва спален (жилой чердак-лофт или второй этаж)
Должна быть террасса или задел под ее устройство, с выходом из гостиной
Должен быть отдельный тамбур для входа (чтобы не открывать входную дверь сразу на улицу)
Должна быть небольшая гардеробная
В доме должно быть светло (большие окна и правильная ориентация дома на участке по инсоляции)


Посмотрел на участок, походил по нему в разное время дня, чтобы прикинуть тени от соседних домов, нашёл нужный угол для дома. Сел рисовать планировку. Сначала в тетрадке, потом решил что так дело не пойдёт, попросил помощи у коллеги по работе, он набросал в автокаде план. Поскольку автокадом я в то время вообще не владел, то дорисовывал пометки и исправления просто в Paint, так сказать, на коленке :)

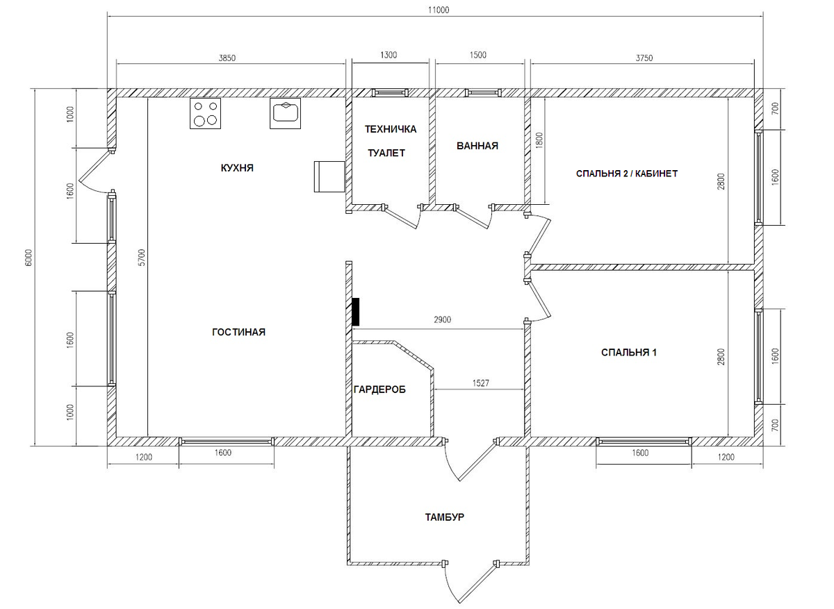
Получилось как-то так
Получилось как-то так

Домик получался 6х11 по наружным габаритам, высота первого этажа 3 метра, высота чердака 2 метра, внутренняя площадь "вчистую" ~ 63 м2 (вместе с тамбуром). Дверь в тамбуре в более поздних планах сделали всё таки вбок.

В разработке планировки я пользовался найденным на просторах интернета онлайн-сервисом housecreator, ссылку вставлять не буду, дабы не делать рекламу, кому надо - найдёт в яндексе, очень удобный сервис для визуальной оценки получающегося дома.

Применив немного этого сервиса, принтскрина и пейнта, я исхитрился сваять условную визуализацию дома на участке

-2

Увидел, что кровля островата, угол в итоге изменили (опустили уровень чердака).

В целом, дом примерно таким и получился :)

Продолжение следует!