Есть мнение, что одноэтажный дом удобнее для проживания по причине отсутствия лестницы, которая может стать непреодолимой преградой для пожилых людей.
Есть мнение, что одноэтажный дом удобнее для проживания по причине отсутствия лестницы, которая может стать непреодолимой преградой для пожилых людей.
...Читать далее
Изображения с сайта Лесстрой https://lesstroy.net/
Изображения с сайта Лесстрой https://lesstroy.net/
Есть мнение, что одноэтажный дом удобнее для проживания по причине отсутствия лестницы, которая может стать непреодолимой преградой для пожилых людей. При этом увеличивается полезная площадь, опять же, из-за того, что нет лестницы.
Есть и экономические аспекты: строительство такого объекта обходится дешевле, даже при условии, что строительным материалом является кирпич.
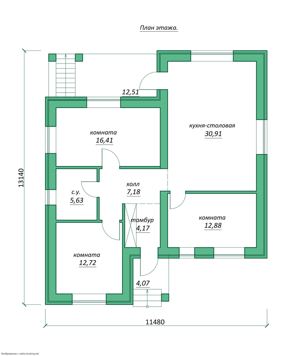
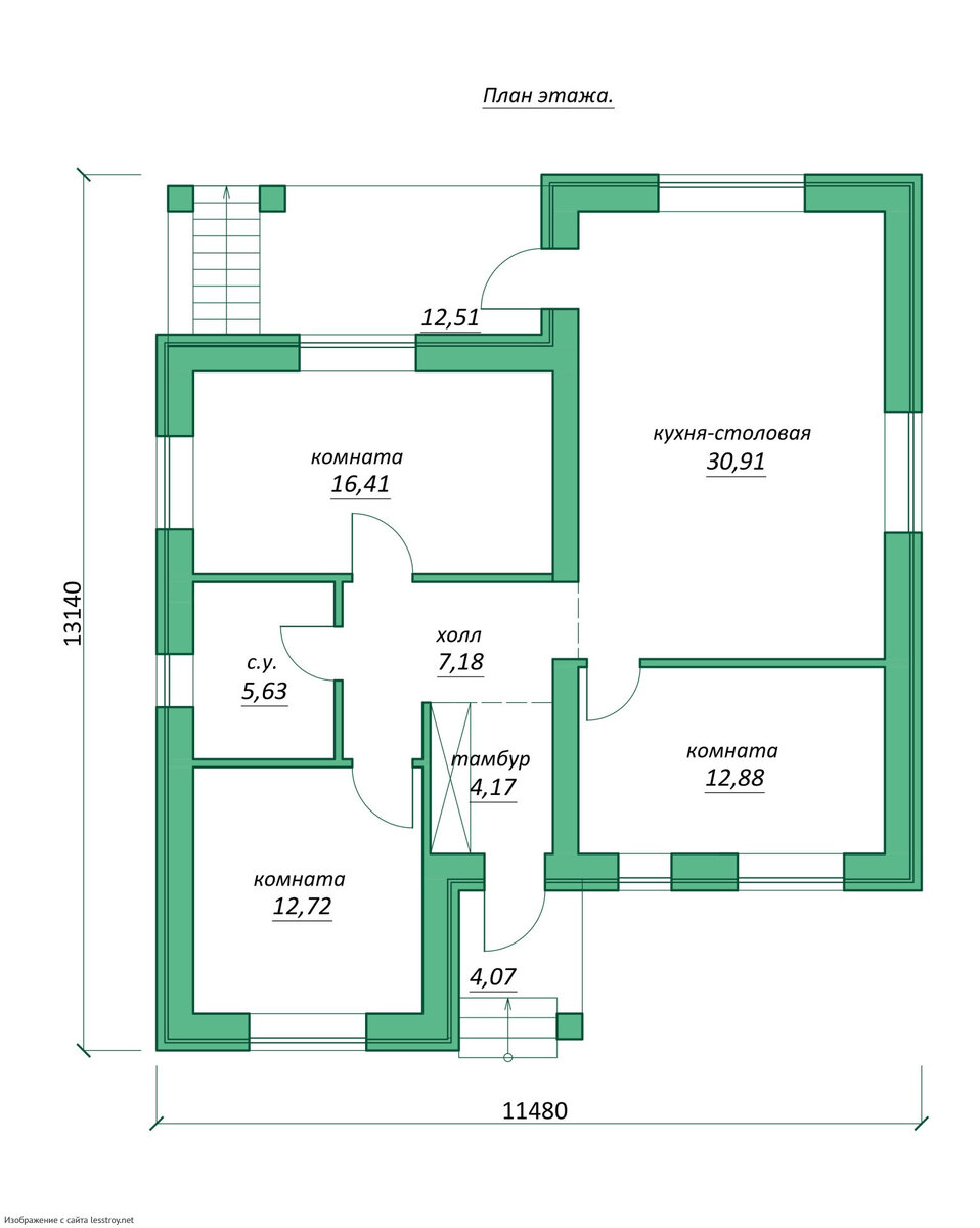
Компания «АСТРОЙ» предлагает ознакомиться с проектом одноэтажного кирпичного дома АС-110, состоящего из трёх комнат, кухни-столовой, санузла, тамбура и холла.