Добавить в корзинуПозвонить
Найти в Дзене
SINELNIKOVA MARY

Линейная двушка 50 кв.м в светлых тонах для видеоблогера

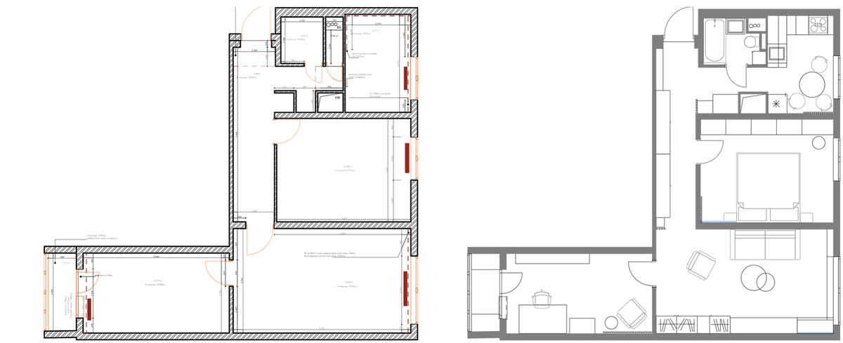
Ребята молодые и энергичные, которые часто путешествуют по работе, хотели светлую квартиру без лишней мебели в которой можно отдыхать. #Перепланировку мы почти не делали, только объединили санузлы, убрали дверные проемы, ведущие на кухню и в гостиную, демонтировали встроенный шкаф в коридоре и сместили вход в спальню. Одним из вариантов планировочного решения был также размещение спальни где на утвержденном плане гостиная, а гостиной где на плане выше спальня, но Заказчики предпочти другой вариант. Дальняя от кухни комната в перспективе станет детской, а пока там кабинет, который по различным соображениям показывать не буду, именно поэтому мы с вами рассматриваем эту квартиру в рамках сегодняшней беседы как "двушку"
В качестве основных отделочных материалов использовали ламинат и краску на стенах. Довольно вытянутого и узкого коридора, ведущего в гостиную комнату, не удалось избежать, так как место под хранение надо было обязательно предусмотреть, а гардеробная не умещалась, поэтому

Проект для известного видеоблоггера и его жены модели.
Ребята молодые и энергичные, которые часто путешествуют по работе,
хотели светлую квартиру без лишней мебели в которой можно отдыхать.

#Перепланировку мы почти не делали, только объединили санузлы, убрали дверные проемы, ведущие на кухню и в гостиную, демонтировали встроенный шкаф в коридоре и сместили вход в спальню.

Одним из вариантов планировочного решения был также размещение спальни где на утвержденном плане гостиная, а гостиной где на плане выше спальня, но Заказчики предпочти другой вариант.

Дальняя от кухни комната в перспективе станет детской, а пока там кабинет, который по различным соображениям показывать не буду, именно поэтому мы с вами рассматриваем эту квартиру в рамках сегодняшней беседы как "двушку"


В качестве основных отделочных материалов использовали ламинат и краску на стенах.

-2

Довольно вытянутого и узкого коридора, ведущего в гостиную комнату, не удалось избежать, так как место под хранение надо было обязательно предусмотреть, а гардеробная не умещалась, поэтому шкафы расположили именно в этой части квартиры

-3

В самой прихожей встроенный #шкаф под часто используемую верхнюю одежду, место где можно присесть чтобы обуться и обувница из #IKEA.

Было решено сделать тут небольшой и аккуратный акцент, ими стали белые балки, а так же рельефная отделка стены, которая вам так же встретиться в гостиной.

-4
-5

Дальше по небольшому коридору мы попадаем на кухню, которая тут небольшая-всего 6кв.м.

Обратите внимание как было решено визуально скрыть угол санузла, тем самым увеличив визуально площадь и получив функционал, которое несет в себе любое зеркало в полный рост.
-6
На кухне довольно неприятная история с открытыми трубами отопления, как видите они расположены довольно нестандартно и занимают три стены.

С одной стороны ее закрыли навесные шкафы, а вот на двух других стенах они остались доступны взору. Самым первым решением было безусловно провести переговоры с УК, что бы эти трубы сместить и избежать такой картины, но все было безуспешно и работали уже так как есть.

В качестве акцента на #терраццо на фартуке и мелкие балки над ним и в зоне обеденного стола, что связывает дополнительно кухню с коридором и спальней.

-7
Обеденные стулья выбрали именно эти умышленно. Что бы не делать на них лишний акцент и визуально вообще стереть с кухни, это позволило визуально сделать эту комнату просторнее


Даже после объединения санузлов, места прям чтобы много не стало, но все же лучше нежели раздельный.
В качестве акцента - терраццо как на кухне, синяя тумба и шкафчик

-8
-9
-10
Дополнительной изюминкой и деталью стали черные смесители и сантехника, они придают контраст и строгость.

Гостиную не стали перегружать различной отделкой, тут все лаконично и воздушно.

-11

В качестве акцентов тут: авторская картина, синий диван с красивым столиком и зона ТВ

-12

Отделка этой зоны та же что и в прихожей. Тут же потенциально дополнительное рабочее место с зеркалом за ним - это визуально расширило пространство, имитируя еще одну комнату за столом.

-13

Системы хранения предусмотрены в этой квартире в каждой комнате, так как вещей у ребят много.

-14

Спальня мне тут особенно нравится своей легкостью, акцентами и этим рисунком на стене.
Мы сделали тут и зеркало от пола до потолка, увеличивающее пространство, и подсветку, которая наполняет комнату приятным светом, и использовали мелкий брус для некого разделения комнаты на зоны.

-15

В качестве систем для хранения использовали комоды из IKEA, прикроватные столики тоже оттуда.

Заметьте что детали в черном цвете просматриваются во всей квартире - это создает некую динамику и контраст.
-16
-17

Синий пуф связывает спальню с синими деталями всех других комнат.

Так у нас получился легкий и светлый интерьер :) Надеюсь вам понравилась эта статья, буду рада лайкам и вашим комментариям.
Подписывайтесь на страничку, что бы первыми читать новые статьи.

Так же вы можете посмотреть другие похожие публикации:
Квартира-студия 32 кв.м в которой уместилось все
Белоснежная квартира 62кв.м в Москве
Дизайн однушки для сдачи, 37 м²
Светлая квартира с гардеробной на кухне