Найти в Дзене
Бунгало

Прямоугольник - самая популярная форма дома(по пятну застройки). Разбираем достоинства и недостатки.

У каждого серьёзного застройщика в своём арсенале есть такой проект. Далее представлены проекты домов, проверенные временем, которые регулярно выбирают и строят заказчики. Такие дома бывают небольшими, например у Kontio есть дом всего лишь 25 м2, его можно сделать как в виде бани, так и в виде полноценного дома. Прямоугольный дом - преимущества: Недостатки: Знаете еще какие-либо недостатки данного типа домов, пишите в комментариях. Вот, что есть на рынке авторитетных европейских компаний: Elk - самый☝️ крупный застройщик в Финляндии, представляет линейку очень простых домов, выбор огромный и все планировки выверены, есть как одноэтажные, так и двухэтажные дома. Другой европейский застройщик Marles тоже радует разнообразием форм и стилей. Флагман российского домостроения компания GOODWOOD(строит около 300 домов в год) предлагает несколько подобных проектов: "Проект СК-1" - это одноэтажный каменный дом и двухэтажный "Проект СВ-8". Даже в одноэтажной версии прямоугольного дома мог
Оглавление

У каждого серьёзного застройщика в своём арсенале есть такой проект.

Далее представлены проекты домов, проверенные временем, которые регулярно выбирают и строят заказчики.

Такие дома бывают небольшими, например у Kontio есть дом всего лишь 25 м2, его можно сделать как в виде бани, так и в виде полноценного дома.

Прямоугольный дом - преимущества:

  1. Большой выбор разнообразных планировочных решений и габаритных размеров дома.
  2. Простота возведения дома не потребует применения технологически сложных узлов и конструкторских решений, простота выполнения строительно-монтажных работ. Лёгкость выполнения тех. надзора.
  3. Простой расчет по количеству строительных материалов.
  4. Подходит любой тип крышы, без ущерба для экстерьера.
  5. Удобная посадка практически на любом земельном участке.

Недостатки:

  1. Простота внешнего вида.
  2. Сложнее разместить на узком участке со входом в дом с торца.
  3. Минимальный набор помещений, нет гаража, зимнего сада, бильярдной комнаты и т.п.
  4. В базовых версиях в основном отсутствуют навесы, карнизы, козырьки и т.п.

Знаете еще какие-либо недостатки данного типа домов, пишите в комментариях.

Вот, что есть на рынке авторитетных европейских компаний:

Elk - самый☝️ крупный застройщик в Финляндии, представляет линейку очень простых домов, выбор огромный и все планировки выверены, есть как одноэтажные, так и двухэтажные дома.

Другой европейский застройщик Marles тоже радует разнообразием форм и стилей.

Флагман российского домостроения компания GOODWOOD(строит около 300 домов в год) предлагает несколько подобных проектов: "Проект СК-1" - это одноэтажный каменный дом и двухэтажный "Проект СВ-8".

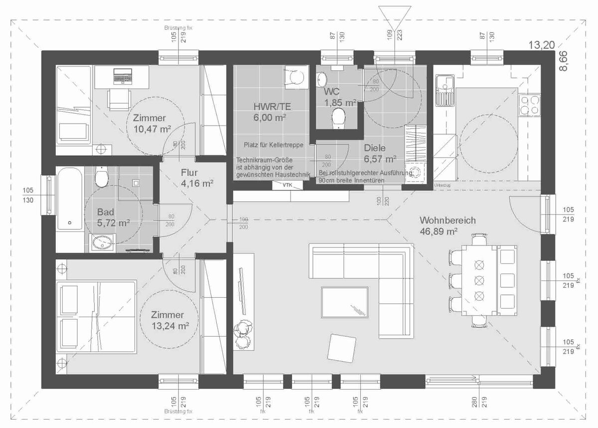
Даже в одноэтажной версии прямоугольного дома могут быть весьма разнообразные планировки 👇 выбирайте!

  1. DAN-WOOD Германия
  2. Hanlo häuser Австрия
  3. Hartle haus Австрия
  4. Hartle haus Австрия
  5. Wolf haus Австрия
  6. Тиматало Россия
  7. Рядом Россия
  8. Scout House Россия - самый оптимальный по цене и качеству дом, это для тех, у кого бюджет ограничен, но желание жить за городом превалирует. Знаете другой интересный вариант - пишите в комментариях.
  9. HoltsovHouse Россия
  10. Superdoms Россия

Предостережение

Выбирайте проект у реальных застройщиков! На сайтах, где представлены только проекты и нет опыта эксплуатации построенного дома можно ошибочно выбрать не удобный в эксплуатации дом.

Совет по проектированию

Самый простой способ проектирования - модульный, про него подробно рассказывает авторитетный архитектор Олег Карлсон, такой подход поможет вам исключить ошибку и создать удобную для жизни планировку.

Надеемся наша подборка поможет вам выбрать комфортный и практичный дом!