Добавить в корзинуПозвонить
Найти в Дзене

КАК РАССТАВИТЬ МЕБЕЛЬ НА ПЛАНЕ

Начертить план дома мечты и расставить мебель – 50% успеха в ремонте. Почему расстановка мебели меня беспокоит больше всего? Потому что это главная и отправная точка для начала ремонтных работ. Меня зовут Оксана Пантелеева. Я профессиональный декоратор и стилист интерьеров. Автор курсов "Фотошоп – это просто" и "Рисуем эскизы интерьеров на IPAD". Автор и главный редактор сайта "Thewaveofdecor.ru" – уникальной онлайн энциклопедии по созданию Дома мечты. Сайт получил сотни слов благодарностей и множество профессиональных премий. Лента инстаграм: https://www.instagram.com/thewaveofdecor/ – здесь провожу прямые эфиры в том числе и по темам искусство коллажей От плана расстановки мебели зависят все процессы ремонта. Все чертежи, которые надо нарисовать. Все материалы, которые надо купить. Бюджет на ремонт в прямом смысле зависит тоже от него. Найти идеальное планировочное решение можно за секунду, а можно порой мучиться долго. В работе у меня закон – если планировка не идет, надо сделать п

Начертить план дома мечты и расставить мебель – 50% успеха в ремонте. Почему расстановка мебели меня беспокоит больше всего? Потому что это главная и отправная точка для начала ремонтных работ.

Меня зовут Оксана Пантелеева. Я профессиональный декоратор и стилист интерьеров.

Автор курсов "Фотошоп – это просто" и "Рисуем эскизы интерьеров на IPAD".

Автор и главный редактор сайта "Thewaveofdecor.ru" – уникальной онлайн энциклопедии по созданию Дома мечты. Сайт получил сотни слов благодарностей и множество профессиональных премий.

Лента инстаграм: https://www.instagram.com/thewaveofdecor/ – здесь провожу прямые эфиры в том числе и по темам искусство коллажей

От плана расстановки мебели зависят все процессы ремонта. Все чертежи, которые надо нарисовать. Все материалы, которые надо купить. Бюджет на ремонт в прямом смысле зависит тоже от него.

итог планировочного решения проект 2018
итог планировочного решения проект 2018

Найти идеальное планировочное решение можно за секунду, а можно порой мучиться долго. В работе у меня закон – если планировка не идет, надо сделать перерыв. Никогда не бывает одного варианта. Даже для однокомнатной квартиры всегда есть 2-3 идеальных и 4-5 жизнеспособных вариантов расстановки мебели и стен. Просто надо потратить время, силы и не лениться.

Периметр дома или квартиры, или обычный обмерочный план, начерченный от руки или на компьютере просто линии на листке бумаги.

Пока там не появятся диваны, кресла, шкафы, раковины и ванны – это будет просто бумага с линиями и цифрами. Пусть даже очень красивая и правильно оформленная, но пока это не дом мечты.

Дом – это где я хочу и буду жить. Жизнь моя связана с комнатами, мебелью, декором, картинами. С ужинами на кухне, книжками в библиотеке и любимой кошкой на диване.

Чтобы сделать ремонт и построить мечту – надо сначала расставить мебель. И желательно, найти самую лучшую планировку для конкретно моей семьи.

Чтобы дом получился на 5 баллов, надо чтобы пожелания каждого члена семьи были исполнены. Для этого я напишу техническое задание для создания дома мечты. Иного варианта не может быть.

Техническое задание расскажет о том, что я должна сделать для будущего дома. Сколько диванов и кроватей поставить. Сколько столов купить и сколько лампочек над ними зажечь.

А для того чтобы расставить диваны, необязательно сразу бежать к компьютеру. Скажу, что даже вредно.

Дайте сначала поработать рукам и мозгам. Нарисуйте план на бумаге карандашом. Вырежьте желаемую мебель из картона и подвигайте ее на плане. Помните как в детстве играли в аппликацию? Сейчас будет очень полезно вспомнить все.

Игра называется «Найди место для дивана в доме мечты». Алгоритм и правила очень просты.

Шаг 1. РИСУЕМ ПЛАН КОМНАТЫ

-2

Любым удобным способом рисуем периметр комнаты или целого дома в выбранном масштабе. Обязательно в верхнем углу листа запишите масштаб! Чтобы потом ничего не перепутать.

Если дом большой, а лист маленький, то удобно чертить в масштабе 1:100.

Если квартира небольшая, то можно убрать масштаб 1:50.

Если чертим только комнату, то можно попробовать масштаб 1:25. Это будет очень крупный и удобный масштаб для дальнейшей работы.

Даже сегодня, обладая всеми навыками построения чертежей в компьютере, я черчу первые планировки исключительно от руки. В 2014 году, когда придумывала планировку для гостиной в Кулемино, в аппликацию с «набором для творчества»  в виде плана и картонной мебели играла вся семья.

Посмотрите на планы Тимуры Каримова и Сергея Воронина:

-3

Тимур Каримов & Сергей Воронин

Тимур Каримов & Сергей Воронин
Тимур Каримов & Сергей Воронин

Настоящие произведения искусства. Архитекторы с большой буквы, которые ценят ручную подачу, как принято сегодня называть чертежи и эскизы «от руки». загляните к ним в Инстаграм и познакомьтесь поближе. Совет от чистого сердца.

Шаг 2. РИСУЕМ МЕБЕЛЬ 

-5

На миллиметровой или простой бумаге, на картоне в таком же масштабе как и начерченный план комнаты вы рисуете мебель.

Все диваны, кресла и столы аккуратно чертите по их габаритам. Пусть это будут квадратики, прямоугольники, круги, овалы, другие геометрические фигуры. Необязательно сейчас рисовать диван, который идеально похож на диван.

Сверху, чтобы не забыть, надо подписать каждый квадратик и прямоугольник: кресло, диван, раковина, стул и так далее. Затем мебель надо аккуратно вырезать и сложить в коробочку, чтобы не потерять.

Масштаб плана и масштаб мебели должен быть одинаковый!

Шаг 2. РАССТАВЛЯЕМ МЕБЕЛЬ НА ПЛАНЕ

-6

Совет: 

  • Чтобы узнать размеры мебели – надо их записывать в магазинах
  • Если Вы уже находитесь в стадии подготовки к ремонту, всегда в сумке носите записную книжку, ручку, карандаш, рулетку, телефон с фотоаппаратом

Кажется, что очень много всего, и будет тяжело. Но потом гораздо тяжелее сожалеть, что видели диван нужный, и ничего про него не запомнили. Не записали, не сфотографировали.

В результате такой практики, вы станете обладателем целого каталога понравившейся мебели. У вас будут все размеры и габариты мебели, предметов сантехники, бытовой техники, значит сможете вечерами вырезать ее и двигать на плане сколько душе угодно.

Итог работы:

  • точно станет известно, что подходит в дом, а от чего надо отказаться
  • все ошибки задуманной планировки станут наглядными только вместе с расставленной мебелью
  • все сильные стороны планировки тоже проявят себя
  • вы нарисуете идеальную планировку дома мечты. Это самое главное.
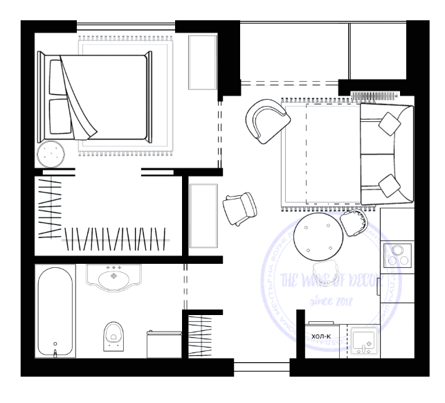
Планировочное решение гостиной. Проект студии “На волне декора”
Планировочное решение гостиной. Проект студии “На волне декора”

Я нарисовала пример, как выглядит шаблонная мебель для гостиной на листе А4 в масштабе 1:25. Нажмите, скачайте и распечатайте оригинал на бумаге формата А4. А мне скажите спасибо.

-8

Удачи в ремонте