Добавить в корзинуПозвонить
Найти в Дзене
Лесстрой Портал

Каркасные дома быстро стареют – миф или реальность?

На фото проект с нашего сайта - Стоктон. Тип постройки: Каркасный дом. Моральное и физическое старение каркасных домов является очередным мифом. Благодаря конструктивным особенностям фасады каркасных строений легко поддаются переделыванию в соответствии с новыми тенденциями в архитектурной моде. Немного усилий, незначительные затраты и каркасный дом будет выглядеть по-новому. Также не подвержены каркасные строения и физическому старению, поскольку все древесные материалы пропитываются средствами с огнеупорными и биозащитными свойствами, а сам каркас располагается скрыто. Поэтому дом не поддается воздействию внешних факторов и времени.

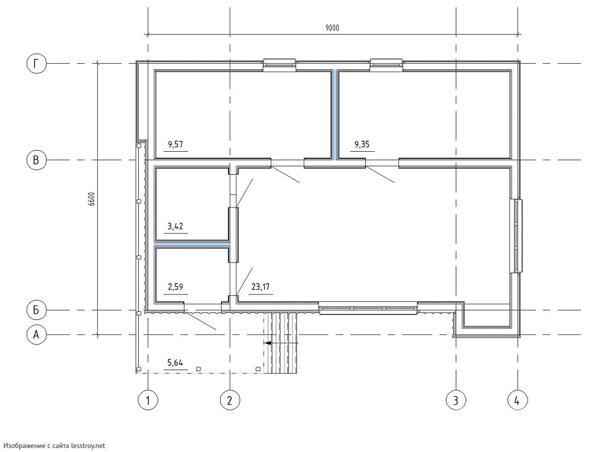
На фото проект с нашего сайта - Стоктон. Тип постройки: Каркасный дом.

Моральное и физическое старение каркасных домов является очередным мифом. Благодаря конструктивным особенностям фасады каркасных строений легко поддаются переделыванию в соответствии с новыми тенденциями в архитектурной моде. Немного усилий, незначительные затраты и каркасный дом будет выглядеть по-новому.

Также не подвержены каркасные строения и физическому старению, поскольку все древесные материалы пропитываются средствами с огнеупорными и биозащитными свойствами, а сам каркас располагается скрыто. Поэтому дом не поддается воздействию внешних факторов и времени.