Добавить в корзинуПозвонить
Найти в Дзене

Как сделать перепланировку 2-х комнатной квартиры? Совет дизайнера интерьера

Друзья всем привет! Меня зовут Дамир Музафаров я архитектор (дизайнер интерьера), сегодня хочу показать разбор перепланировки двухкомнатной квартиры в г. Москва, от застройщика "ПИК". Начнем разбор с фактической планировки. Квартира имеет два СанУзла, коридор, кухню и две жилые комнаты. Минусы: у входа нету возможности расположить большой шкаф для верхней одежды, коридор не освещен естественным освещением, маленький гостевой туалет. Что предлагаем мы, объединить два СУ в один, и сделать хорошую большую ванную комнату, и часть от малого туалета мы делаем шкаф для верхней одежды. Колонна с вентиляцией на кухне диктует нам сделать еще один небольшой шкаф, который мы разместили ровно на ось коридора, и фасады шкафа сделать в зеркале (во-первых: это даст визуальное расширение коридора, а во-вторых: растворит шкаф в пространстве квартиры), тем самым мы убиваем двух зайцев. У нас с Вами получилось два прохода в общественное пространство, что дает нам естественное освещение как в сам коридор,
План "ДО" перепланировки
План "ДО" перепланировки
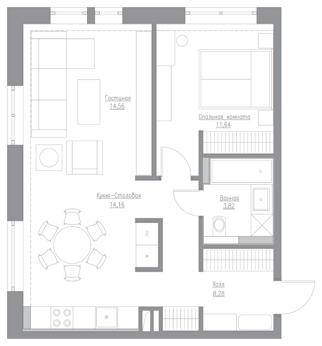
План "ПОСЛЕ" перепланировки
План "ПОСЛЕ" перепланировки

Друзья всем привет! Меня зовут Дамир Музафаров я архитектор (дизайнер интерьера), сегодня хочу показать разбор перепланировки двухкомнатной квартиры в г. Москва, от застройщика "ПИК".

Начнем разбор с фактической планировки. Квартира имеет два СанУзла, коридор, кухню и две жилые комнаты. Минусы: у входа нету возможности расположить большой шкаф для верхней одежды, коридор не освещен естественным освещением, маленький гостевой туалет. Что предлагаем мы, объединить два СУ в один, и сделать хорошую большую ванную комнату, и часть от малого туалета мы делаем шкаф для верхней одежды.

Колонна с вентиляцией на кухне диктует нам сделать еще один небольшой шкаф, который мы разместили ровно на ось коридора, и фасады шкафа сделать в зеркале (во-первых: это даст визуальное расширение коридора, а во-вторых: растворит шкаф в пространстве квартиры), тем самым мы убиваем двух зайцев.

У нас с Вами получилось два прохода в общественное пространство, что дает нам естественное освещение как в сам коридор, так и в холл при входе в квартиру. На самом деле это редкость, но в данной планировке это возможно сделать.

В ограждающую конструкцию между кухней-столовой и коридором мы поместили две колонны кухонного гарнитура, в которой располагается встроенный холодильник, встроенные духовой шкаф и микроволновка, и на ось этой встройки мы сажаем круглый стол на 6 персон.

Визуальное разграничение зон квартиры с различным назначением.
Визуальное разграничение зон квартиры с различным назначением.

Эту колонну с элементами кухни планировалась обшить зеркалом, чтобы в проходах и коридоре визуально расширить пространство. Использование зеркал в интерьере делает квартиру намного интереснее, дороже и стильнее.

Друзья если вам нравится эта статья, пожалуйста поставьте нам Лайк, нам будет приятно) и если вы делаете ремонт, то советую подписаться на нас, у нас на страничке вы найдете много чего интересного!

Гостиная зона формируется диванной группой с креслом, журнальным столиком, и столиком под светильник. Стенку под ТВ, мы сделали на всю стену, чтобы было больше мест хранения вещей, и она будет не обычной формы и смотреться это будет симпатично, чуть позже сделаю обзор с рендерами (3D картинками) этой квартиры. ТВ зона подшита с торца стеночкой, чтобы не было видно с коридора.

Размерные цепочки, для наглядности.
Размерные цепочки, для наглядности.

Немного разберем ванную комнату, когда мы попадаем в нее первое что мы видим это зеркало с раковиной, в нашем случае справа от раковины есть шкаф в едином стиле с тумбой под раковину, в котором можно расположить стиральную машину и сушилку (друг над другом). Чтобы при открывании двери не мешал унитаз мы его немного сдвинули, следите чтобы от стены до оси унитаза было не менее 430 мм, иначе будет некомфортно сидеть на нем. Ванная 1800*800мм не уместилась, поэтому мы поставили 1700*700мм. (Ванную лучше покупать чугунную, ну или если нет, то из прочных материалов, скоро сделаю статью про виды ванн)

У нас осталось разобрать Спальную комнату, вход в нее мы немного утопили в коридор, тем самым зона ТВ в гостиной тоже расширилась. У нас поместился достаточно большой шкаф 1900*600мм, торец шкафа мы также сделали из стены, полноценная кровать на две персоны 1600*2000мм, для супруги предусмотрен будуарный столик.

Возможно Вам также будет интересно:

10 лайфхаков при проектировании кухни. Совет дизайнера

Как сделать планировку в студии 22 кв.м.? Советы дизайнера

Как можно испортить Дизайн ванной комнаты? 10 ошибок. Совет дизайнера