Добавить в корзинуПозвонить
Найти в Дзене
Алексей Domovoy

Начало ремонта

Здравствуйте! Начало ремонта (3 обязательных шага) Многие люди не знают с чего начать ремонт в квартире. А ведь правильное начало - это половина дела. В этом видео будут отображены 3 обязательных шага в начале ремонта. В новом видео на канале Domovoy мы погрузимся в удивительный мир демонтажных работ. Первое что нужно сделать - сменить замок после старых жильцов. Никогда нельзя точно быть уверенным в том, что у кого то не осталься дубликат! Первая статья канала Domovoy "Замена цилиндрового механизма (личинки) замка на входной двери" доступна по ссылке: https://zen.yandex.ru/media/id/5e96f58b32c77f269c2b193f/zamena-cilindrovogo-mehanizma-lichinki-zamka-na-vhodnoi-dveri-5e96f9bc09479b4b6c0cb1d8 Вторым шагом нужно нарисовать планировку квартиры. Обязательно с указанием всех размеров мебели и техники. Убедитесь: Тщательно продумав и просчитав планировку вы будете точно знать сколько и какое количество розеток для бытовой техники вам потребуется. Вы поймете оптимальную расстановку м
Оглавление

Здравствуйте!

Начало ремонта (3 обязательных шага)

На кадре из видео:  Идет процесс демонтажа перегородки с использованием перфоратора.
На кадре из видео: Идет процесс демонтажа перегородки с использованием перфоратора.

Многие люди не знают с чего начать ремонт в квартире. А ведь правильное начало - это половина дела. В этом видео будут отображены 3 обязательных шага в начале ремонта. В новом видео на канале Domovoy мы погрузимся в удивительный мир демонтажных работ.

Первое что нужно сделать - сменить замок после старых жильцов.

Никогда нельзя точно быть уверенным в том, что у кого то не осталься дубликат! Первая статья канала Domovoy "Замена цилиндрового механизма (личинки) замка на входной двери" доступна по ссылке: https://zen.yandex.ru/media/id/5e96f58b32c77f269c2b193f/zamena-cilindrovogo-mehanizma-lichinki-zamka-na-vhodnoi-dveri-5e96f9bc09479b4b6c0cb1d8

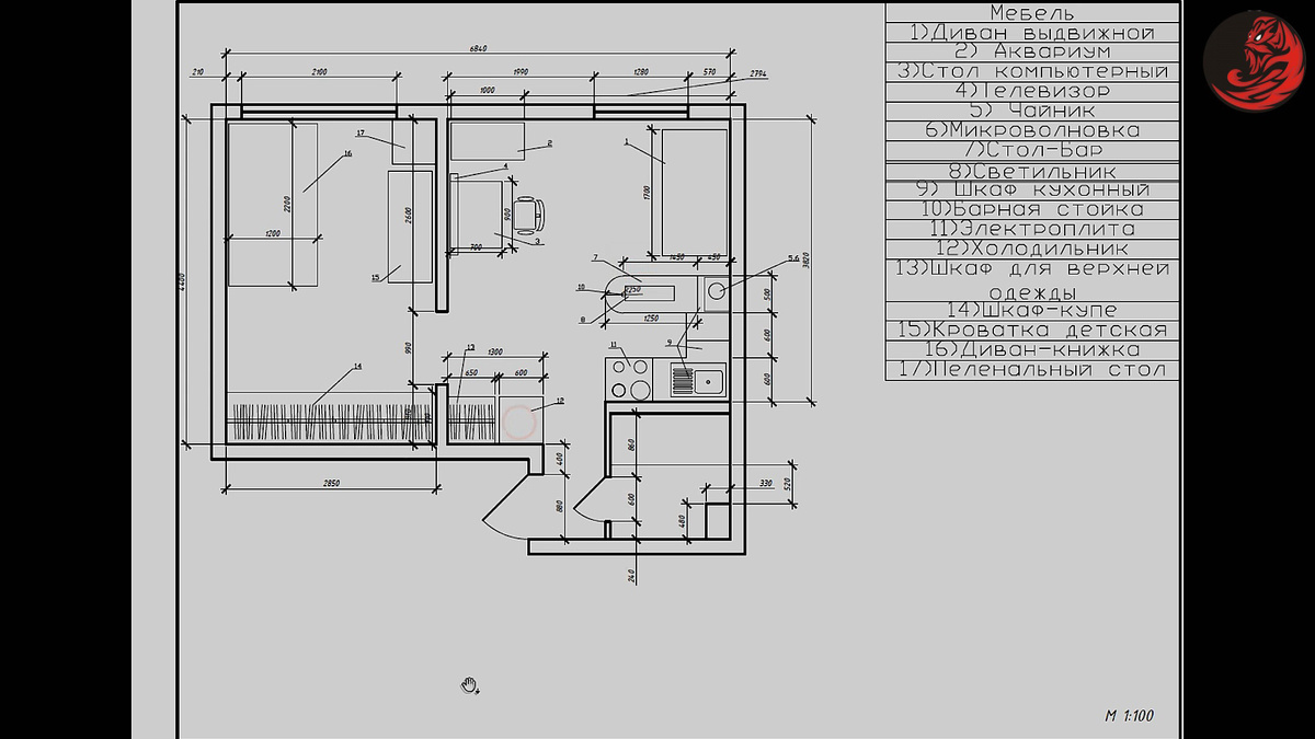
Вторым шагом нужно нарисовать планировку квартиры.

Обязательно с указанием всех размеров мебели и техники. Убедитесь:

  • Вещь влезает по габаритам в то место где вы хотите её видеть;
  • Есть пространство необходимое для доступа, открытия дверок, прохода и т.п;
  • Определитесь с зонированием и группировкой мебели.
  • Решите хватит существующих мест для хранения или их необходимо увеличить.
На кадре из видео:  Планировка однокомнатной квартиры
На кадре из видео: Планировка однокомнатной квартиры

Тщательно продумав и просчитав планировку вы будете точно знать сколько и какое количество розеток для бытовой техники вам потребуется. Вы поймете оптимальную расстановку мебели, для того чтобы сильно не загромождать квартиру. И наконец станет ясно какая мебель необходима, а какая будет лишней.

Третьим шагом в начале ремонта будет - Демонтаж.

Исходной точкой демонтажа в нашем случае будет сворачивание линолеума.

Его мы еще будем использовать. Конечно же, чтобы свернуть линолеум нужно снять плинтуса. Натяжной потолок мы тоже демонтируем, для того чтобы не повредить. Все остальное демонтируем!

Старые обои достаточно пестрые, с крупными розовыми цветами. А потому снятие обоев со стен будем производить без сожаления. Местами старые обои сдираются достаточно легко, но есть места где приходится поработать шпателем. Если содрать старые обои целиком не получилось и они расслоились, то достаточно смочить их обычной водой.

На кадре из видео: Демонтаж старых обоев
На кадре из видео: Демонтаж старых обоев

Пропитывать стены с обоями нужно хорошо, если к тому моменту когда вы начинаете отшкрябывать шпателем бумага высохла, намочите еще раз. а кадре из видео: Демонтаж старых обоев

Поскольку места не так много - будем сносить стену встроенного шкафа.

Соответственно нам необходимо разобрать шкаф. Сначала отсоединяем двери и выкручиваем все лишние саморезы. Затем аккуратно снимаем внутренние панели, а потом и бруски-направляющие. Наконец шкаф разобран и можно приступить к демонтажу стен.

Технология демонтажа стены не сложная. Главное убедится что стена не несущая и соблюдать технику безопасности, а также помнить о законе открытым Ньютоном. А значить снос стены нужно начинать с верхней части!

На кадре из видео:  Демонтаж кирпичной стены
На кадре из видео: Демонтаж кирпичной стены

Перед ломкой стен было бы не лишним убедиться в том, что в ней не идут необходимые коммуникации. На видио можно увидеть как я заизолировал электрический кабель. В остальном в демонтаже стен самое трудное - это уборка и вынос строительного мусора. Для демонтажных работ я пользовался перфоратором. Перфоратор makita HR2470 - http://makita.ru/catalog/model/322.html

Поскольку наша старая стена была из кирпича, то ломать стену перфоратором было одно удовольствие. Надеюсь моим соседям тоже было приятно из-за того что я справился так быстро.

Еще одной достаточно пыльной работой стал демонтаж кухонного фартука.

От старых владельцев нам достался кухонный фартук из керамической плитки. Снять плитку со стен мы решили сразу. Её состояние желало лучшего. Мы решили использовать новую плитку и значит демонтировать старую можно не аккуратно.

Сначала моим желанием было быстро снять кафель со стены перфоратором, но шпаклевать поверхность стены мне не хотелось. Что привело меня к ручному труду. Отчасти это из-за того что одна стена была из гипсокартона, а другая из сибита. Оба эти материала достаточно хрупкие и мой замечательный перфоратор нанес бы им много повреждений. В целях сохранности стен я взял в руки нож из рессоры и маленький молоток.

Снятие кафельной плитки со стены не доставило ни каких проблем, а вот с клеем от плитки пришлось повозиться. Старый клей никак не хотел отлепляться от стены. И чтобы снять плиточный клей стены пришлось потрудиться.
На кадре из видео: Показано как снять плитку и клей для плитки со стены
На кадре из видео: Показано как снять плитку и клей для плитки со стены

Интернет поисковики не дают внятного ответа на вопрос "Как снять плиточный клей со стены". Мне пришлось использовать дедовский способ очистки старого клея. А именно вставляя нож между стеной и затвердевшим клеем я наносил легкий удар молотком. Это очень ответственная работа, особенно на стене из гипсокартона. Пару раз, к сожалению, я проломил его.

Как бы то ни было плитка со стен удалена, а снятие плиточного клея со стены в ускорении в 20 раз смориться забавно. Наслаждайтесь.

Не забывайте подписываться на наш канал!