Найти в Дзене
Планировка

Рациональный проект дома площадью 200м.кв. Чертежи.

Проект дома площадью 200 м.кв. разрабатывался для заказчика в 2011 году. Построен в МО. Предназначен для постоянного проживания семьи из пяти человек.

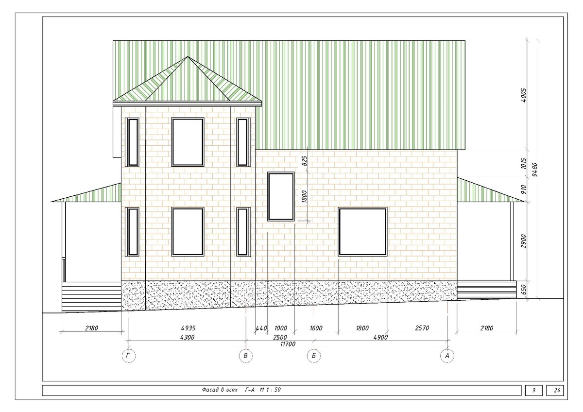
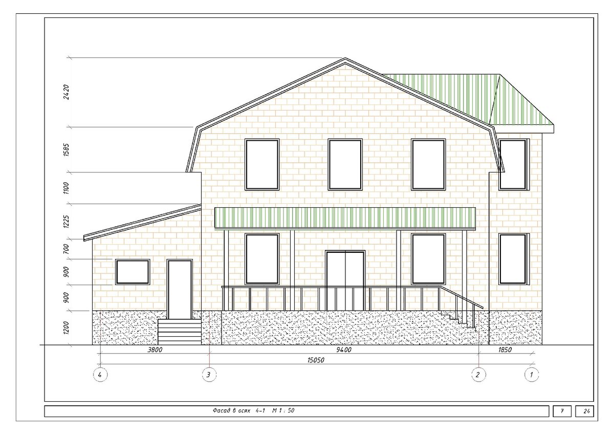
Основные материалы - фундамент - монолитный,ленточный, стены пенобетонный блок толщиной 300мм с облицовкой керамическим кирпичом. Покрытие кровли - металлочерепица.

Фасад в осях 4 - 1
Фасад в осях 4 - 1

Отделка - керамический кирпич, персикового цвета, незатейливо - но добротно.

Фасад в осях Г - А
Фасад в осях Г - А
Фасад в осях А-Г
Фасад в осях А-Г
План первого этажа
План первого этажа

Компактная и функциональная планировка. Пристроенный гараж.

План второго этажа
План второго этажа

Рациональная планировка второго этажа. Поместились 4 комнаты и санузел.

Разрез
Разрез
План стропильной системы
План стропильной системы

Кровля не утепленная, чердак.

План кровли
План кровли

Простая в монтаже, без лишних наворотов, нес читая покрытия эркера, двускатная кровля.

План перекрытий
План перекрытий

Перекрытия - облегченные пустотные плиты перекрытий, по монолитному ростверку.

Дом был построен и радует своих владельцев.

Понравилось - подписывайся на канал!

Вам может быть так же интересно:

Дачный дом. Типовой проект из СССР 1987г.

Садовый домик в проектах из СССР

Проект бани (раздам)