Найти в Дзене

Деревянные балки в Деревянном доме своими руками

Рассмотрим на примере одного дома, строительство которого мы начинаем. У вас есть план дома, вы начинаете фундамент. Если встал вопрос и балках, значит у вас: Расстановка балок в доме должна быть рациональной. Как расставить балки под стены? Рекомендуется: Как расположить балки в гостиной комнате? Можно предположить, что надо 10 балок по 4.5 м. Интуитивно мы понимаем, что надо по короткой стороне. В данном примере гостиная имеет размер по осям 4.5 м х 6.8 м. В таком случае прогиб балок составит 2 см Стоит нам только развернуть балки, прогиб уже составит всего 0.7 см при длине балки 3.5 м И план балок будет уже такой: Чем короче плечо деревянной балки - тем меньше будет эффект "батутности" в вашем деревянном доме. А так же: Так же настоятельно рекомендуем взвесить объективно стоимость всех видов фундамента для вашего дома на примере таблиц С уважением, Архангельский завод КЛЕЕНОГО БРУСА СКАЧАТЬ ПРАЙС НА КЛЕЕНЫЙ И ПРОФИЛИРОВАННЫЙ БРУС - https://arhzavod.ru/html/target001.png

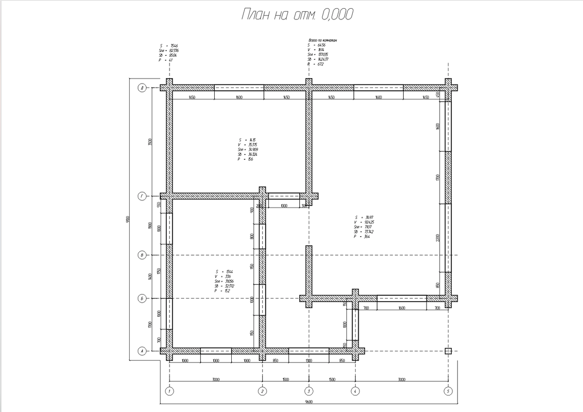
Рассмотрим на примере одного дома, строительство которого мы начинаем.

План 1го этажа деревянного дома
План 1го этажа деревянного дома

У вас есть план дома, вы начинаете фундамент. Если встал вопрос и балках, значит у вас:

  • свайный фундамент с ростверком или обвязкой;
  • ленточный мелкозаглубленный фундамент

Расстановка балок в доме должна быть рациональной.

Как расставить балки под стены?

План конструктива деревянных стен
План конструктива деревянных стен

Рекомендуется:

  • взять расстояние 590 мм между балками для удобства укладки утеплителя;
  • отступить от стены минимум 50 мм, потому что если вы поставите балку вплотную - добиться хорошего утепления почти не возможно

Как расположить балки в гостиной комнате?

Вариант расположения балок на перекрытии
Вариант расположения балок на перекрытии

Можно предположить, что надо 10 балок по 4.5 м.

Интуитивно мы понимаем, что надо по короткой стороне. В данном примере гостиная имеет размер по осям 4.5 м х 6.8 м.

В таком случае прогиб балок составит 2 см

Расчет прогиба балки 100х200 на 4,5 м - 2 см
Расчет прогиба балки 100х200 на 4,5 м - 2 см

Стоит нам только развернуть балки, прогиб уже составит всего 0.7 см при длине балки 3.5 м

Расчет прогиба балки 100х200 на 3,5 м - 8 мм
Расчет прогиба балки 100х200 на 3,5 м - 8 мм

И план балок будет уже такой:

Правильный план расстановки балок перекрытий в деревянном доме
Правильный план расстановки балок перекрытий в деревянном доме

Чем короче плечо деревянной балки - тем меньше будет эффект "батутности" в вашем деревянном доме.

А так же:

  • не забывайте сделать продухи;
  • убрать прочие факторы, исключающие образование в подполье переувлажнения.

Так же настоятельно рекомендуем взвесить объективно стоимость всех видов фундамента для вашего дома на примере таблиц

С уважением, Архангельский завод КЛЕЕНОГО БРУСА

СКАЧАТЬ ПРАЙС НА КЛЕЕНЫЙ И ПРОФИЛИРОВАННЫЙ БРУС - https://arhzavod.ru/html/target001.png