Добавить в корзинуПозвонить
Найти в Дзене
Жилье мечты

Теплый пол. Какой выбрать и нужен ли он в квартире? Часть 1

Здравствуйте, друзья! Сегодня речь пойдет о теплом поле. Нужен ли он в однокомнатной квартире? Безусловно для комфорта и удобства нужен, особенно если есть маленькие дети. Однако в моем случае возникло много вопросов. Итак, я планировала укладку плитки на пол в прихожей, около рабочей зоны в кухне и конечно в ванной комнате. И во всех местах где предусматривалась плитка можно было заложить теплый пол. Но взвесив все за и против (а против выступала в основном высокая цена), я решила делать теплый пол только в ванной комнате, потому как это влажная зона, где помещение необходимо просушивать, плюс по сути единственное место где человек находится босиком (так уж я привыкла с детства ходить в тапочках и теплых носках). Теплый пол бывает водяной и электрический. Самый экономичный по расходу энергии (воды) является водяной. Здесь горячая вода идет от газового котла и просто циркулирует по трубам, так же как в полотенцесушителе. Но устройство такого пола очень трудоемко и соответственно дор

Здравствуйте, друзья!

Сегодня речь пойдет о теплом поле. Нужен ли он в однокомнатной квартире? Безусловно для комфорта и удобства нужен, особенно если есть маленькие дети. Однако в моем случае возникло много вопросов.

Итак, я планировала укладку плитки на пол в прихожей, около рабочей зоны в кухне и конечно в ванной комнате. И во всех местах где предусматривалась плитка можно было заложить теплый пол. Но взвесив все за и против (а против выступала в основном высокая цена), я решила делать теплый пол только в ванной комнате, потому как это влажная зона, где помещение необходимо просушивать, плюс по сути единственное место где человек находится босиком (так уж я привыкла с детства ходить в тапочках и теплых носках).

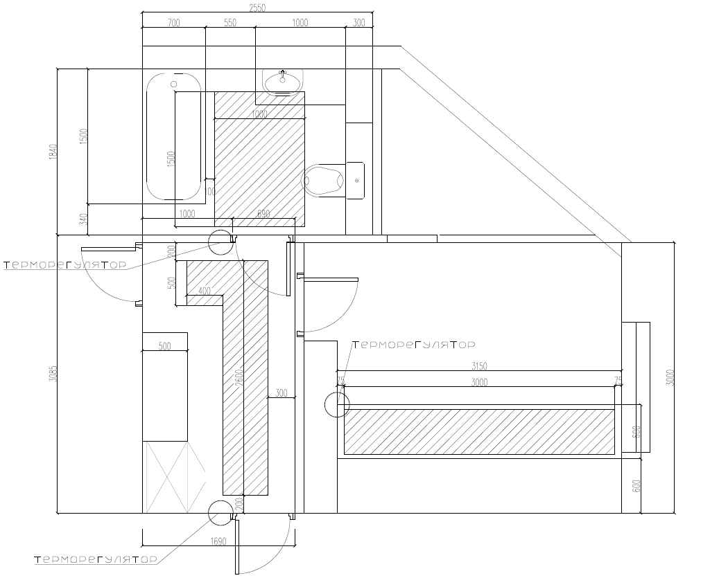
Шриховкой показан теплый пол
Шриховкой показан теплый пол

Теплый пол бывает водяной и электрический. Самый экономичный по расходу энергии (воды) является водяной. Здесь горячая вода идет от газового котла и просто циркулирует по трубам, так же как в полотенцесушителе. Но устройство такого пола очень трудоемко и соответственно дорого, так как пришлось бы поднимать уровень пола.

Поэтому мой вариант - электрический пол. Но электрический пол бывает трех видов:

-кабельный - обычный нагревательный кабель, предназначен для нестандартных помещений;

-пленочный инфракрасный - предназначен для монтажа без клея и стяжки, укладывается под ламинат, линолеум;

нагревательный мат - кабель, закрепленный на стекловолоконной сетке.

Я выбрала нагревательный мат, самое простое решение. Он укладывается на пол, дальше наносится слой клея и сверху плитка. Располагайте контур теплого пола только в тех местах где будете ходить, не нужно закладывать его по всей площади помещения, не грейте диваны и шкафы и сэкономьте свои деньги.

Для теплого пола необходим терморегулятор, который часто не идет в комплекте. Он необходим для поддержания теплового режима. Они бывают электронные и механические. Электронные можно программировать, задавать режимы, задавать время включения и выключения. Ну и зачем мне эти примочки?(тем более что стоят они в три раза больше чем механические). Я выбрала механический терморегулятор, это лучший вариант для маленьких помещений. Его мне вывели рабочие в коридор.

Итого: теплый пол 2200 руб за 1,5 м2; механический терморегулятор 750 руб. А о расходе электроэнергии на теплый пол я напишу в следующей статье, следите за обновлениями!

Спасибо за прочтение и удачного ремонта! Читайте и подписывайтесь, дальше больше!

Читайте так же:

Свет. Как грамотно спланировать освещение в квартире

Электрика. Установка розеток своими руками

Потолки. Какие выбрать и на чем можно сэкономить?