Найти в Дзене
ДжиТи Лайт

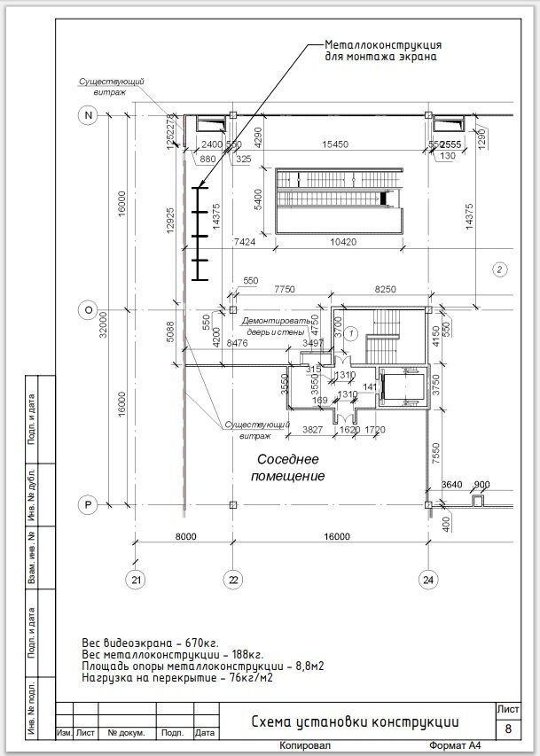
Проектирование металлоконструкций для монтажа светодиодного экрана

Собираясь купить светодиодный экран, необходимо подумать и о способе его установки. Монтаж LED-экрана выполняется на металлоконструкцию. И именно от того, насколько грамотно сделан проект металлоконструкции светодиодного экрана, будет зависеть общая надежность всей системы. В нашей компании работает проектный отдел, специалисты которого выполняют расчеты и готовят документацию для производства металлоконструкций. Для проектирования от заказчика требуется предоставить информацию о месте установки экрана: фасад, крыша, стена в помещении, отдельно стоящая конструкция на улице и т.д. Также необходимо указать, из какого материала изготовлены несущие стены. При проектировании также учитываются параметры выбранных заказчиком светодиодных кабинетов экрана для корректного расчета нагрузок. Изготовление металлоконструкции для LED -экрана Производство металлоконструкций сосредоточено в специальном цехе. Металл сваривают согласно проектной документации, затем выполняется покраска конструкции для з

Собираясь купить светодиодный экран, необходимо подумать и о способе его установки. Монтаж LED-экрана выполняется на металлоконструкцию. И именно от того, насколько грамотно сделан проект металлоконструкции светодиодного экрана, будет зависеть общая надежность всей системы.

В нашей компании работает проектный отдел, специалисты которого выполняют расчеты и готовят документацию для производства металлоконструкций. Для проектирования от заказчика требуется предоставить информацию о месте установки экрана: фасад, крыша, стена в помещении, отдельно стоящая конструкция на улице и т.д. Также необходимо указать, из какого материала изготовлены несущие стены.

При проектировании также учитываются параметры выбранных заказчиком светодиодных кабинетов экрана для корректного расчета нагрузок.

Изготовление металлоконструкции для LED -экрана

Производство металлоконструкций сосредоточено в специальном цехе. Металл сваривают согласно проектной документации, затем выполняется покраска конструкции для защиты от внешних воздействий и придания эстетичного облика.

Готовая конструкция доставляется на объект и устанавливается нашими монтажными бригадами. После монтажа несущей конструкции специалисты приступают к установке самого экрана.

Длительность работ зависит от специфики места установки. Например, для монтажа объемных конструкций для установки суперсайтов может потребоваться спецтехника, как и для монтажа фасадных и крышных установок.

Задать вопросы о производстве светодиодных экранов и рассчитать точную цену LED-экрана можно на нашем сайте.