Добавить в корзинуПозвонить
Найти в Дзене
ВАШ КРАСИВЫЙ САД

ЛАНДШАФТНОЕ ПРОЕКТИРОВАНИЕ УДАЛЕННО

Добрый день, уважаемые читатели! Именно сегодня удаленное ландшафтное проектирование становится тем инструментом, с помощью которого вы можете не только сэкономить свое время и деньги, но и получить отличный результат. Лично у меня такое предложение есть уже более 2х лет, и весь механизм взаимодействия отработан. Итак, давайте я вам расскажу поподробнее, а потом вы уже сами ознакомитесь с информацией, пройдя по ссылке. У вас есть дачный участок, который вы хотели бы изменить немного, или существенно, но КАК и ГДЕ расположить объекты, зоны с растениями, детскую площадку, плодовый сад с огородом (и так далее) - ВЫ НЕ ЗНАЕТЕ. И я вас понимаю! Ведь в любом деле необходимо быть профессионалом, а не любителем, и я уверена, что в своей профессиональной отрасли вы именно профи. Что же ПРЕДЛАГАЮ Я? Все просто: вы мне направляете нужную информацию по моему запросу, а я вам набросок в карандаше в масштабе, и на разбивочной сетке (для наилучшего воспроизведения на рельефе), плюс картинки - фото

Добрый день, уважаемые читатели!

Именно сегодня удаленное ландшафтное проектирование становится тем инструментом, с помощью которого вы можете не только сэкономить свое время и деньги, но и получить отличный результат.

Лично у меня такое предложение есть уже более 2х лет, и весь механизм взаимодействия отработан.

Только 1 вариант проектирования
Только 1 вариант проектирования

Итак, давайте я вам расскажу поподробнее, а потом вы уже сами ознакомитесь с информацией, пройдя по ссылке.

У вас есть дачный участок, который вы хотели бы изменить немного, или существенно, но КАК и ГДЕ расположить объекты, зоны с растениями, детскую площадку, плодовый сад с огородом (и так далее) - ВЫ НЕ ЗНАЕТЕ.

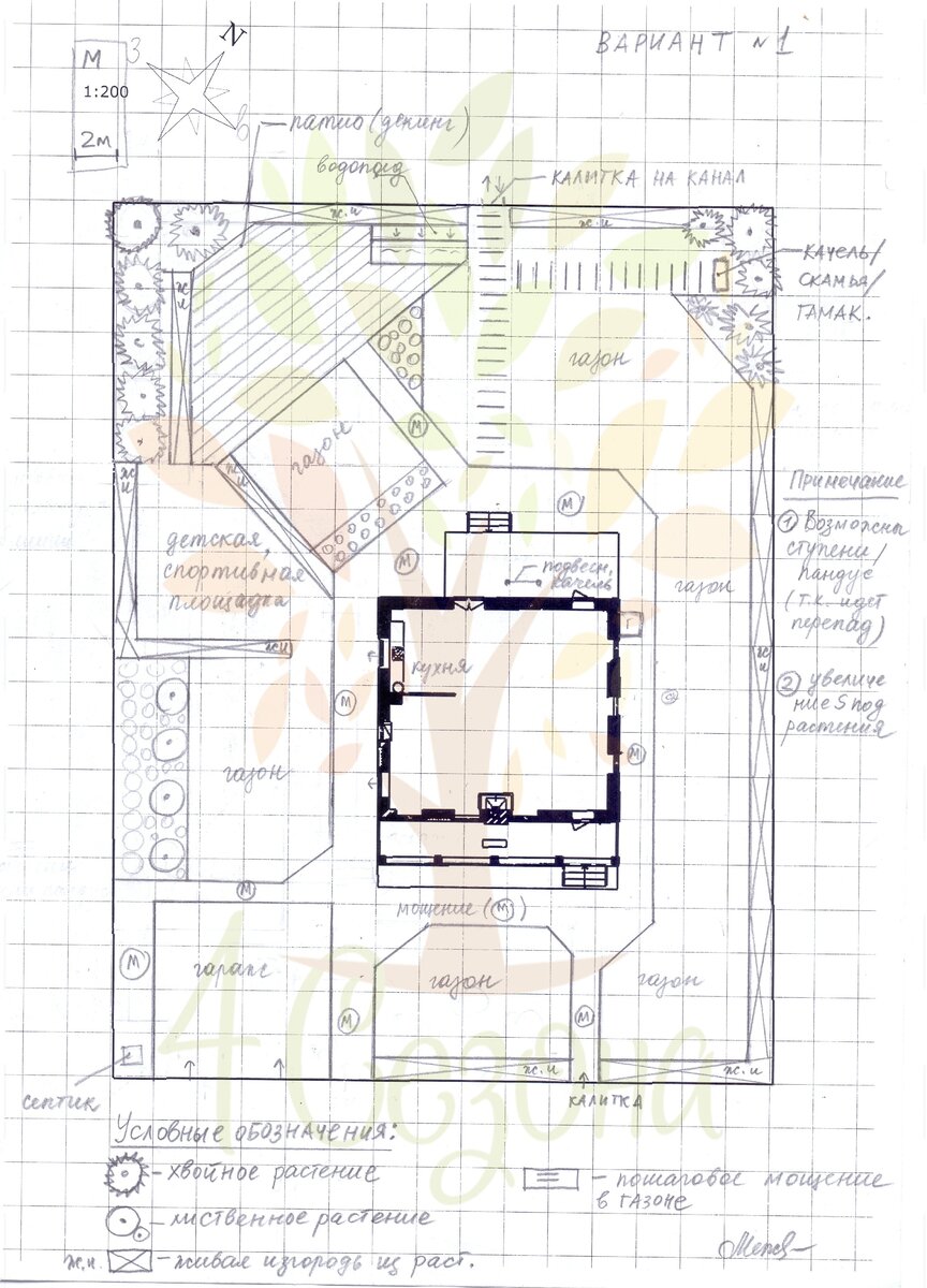
Эскизный проект - зонирование вашей территории
Эскизный проект - зонирование вашей территории

И я вас понимаю! Ведь в любом деле необходимо быть профессионалом, а не любителем, и я уверена, что в своей профессиональной отрасли вы именно профи.

Что же ПРЕДЛАГАЮ Я? Все просто: вы мне направляете нужную информацию по моему запросу, а я вам набросок в карандаше в масштабе, и на разбивочной сетке (для наилучшего воспроизведения на рельефе), плюс картинки - фотоаналоги для наилучшего восприятия. Мой эскизный проект вы легко сможете распечатать, и выполнять работы по нему.

Удаленное экспресс - проектирование - отличная возможность сэкономить на выезде ландшафтного дизайнера
Удаленное экспресс - проектирование - отличная возможность сэкономить на выезде ландшафтного дизайнера

Огромный опыт создания различных проектов дает мне уверенность, что при максимальной полноте предоставленной информации - вы останетесь довольны. Экспресс - проектирование актуально только для ровного, или с небольшим уклоном существующего рельефа.

ИМЕННО СЕЙЧАС можно себе позволить заняться такими жизнеутверждающими делами: ведь самоизоляция закончится, а у вас на руках будет уже четкое понимание, ЧТО ДЕЛАТЬ НА СВОЕЙ ДАЧЕ.

1 вариант исполнения, основан на ваших пожеланиях и мнении ландшафтного дизайнера.
1 вариант исполнения, основан на ваших пожеланиях и мнении ландшафтного дизайнера.

Где об этом можно прочесть подробнее: http://4sezona76.ru/kompaniya/novyj-god.html

Фото из Яндекс - картинки
Фото из Яндекс - картинки

Спасибо, что читаете! Оставляйте комментарии, ставьте лайк!