Найти в Дзене
Лесстрой Портал

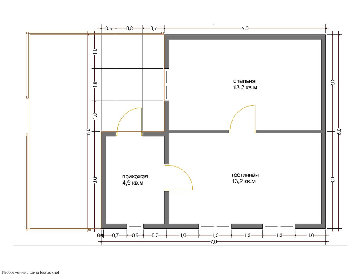
Как сэкономить на строительстве дома без потери для его качества?

Для этого нужно выбрать каркасный дом, на возведение которого потребуется всего 3-4 недели. При этом реальная экономия будет практически на каждом этапе строительства, поскольку для постройки каркасного дома: не нужно обустраивать сложный и дорогой фундамент; При этом получается прочный, добротный, долговечный и , что обусловлено спецификой технологии каркасного строительства. Также в дальнейшем экономия будет при отделке помещений, при отоплении, кондиционировании и обслуживании каркасного дома.

Для этого нужно выбрать каркасный дом, на возведение которого потребуется всего 3-4 недели. При этом реальная экономия будет практически на каждом этапе строительства, поскольку для постройки каркасного дома:

не нужно обустраивать сложный и дорогой фундамент;

  • не требуется большая строительная бригада, достаточно 3-х человек;
  • не нужно привлекать подъемный кран и другую спецтехнику;
  • не требуются дорогостоящие строительные материалы.

При этом получается прочный, добротный, долговечный и , что обусловлено спецификой технологии каркасного строительства.

Также в дальнейшем экономия будет при отделке помещений, при отоплении, кондиционировании и обслуживании каркасного дома.