Найти в Дзене
Газ монтаж

Подбор оборудования при проектировании газоснабжения

Приветствую дорогие читатели на канале "Газ монтаж!". В предыдущей статье я описывал процесс проектирования обычного частного дома. Но мы проектируем и монтируем не только частные дома. Есть объекты коммунально-бытового назначения. Обычно там и оборудование помощнее и процесс проектирования поинтереснее. Поэтому давайте я Вам покажу подбор оборудования при проектировании газоснабжения. Как обычно все начинается с технических условий, в которых обычно и давление газа уже может быть не только низкое, но и среднее, и даже высокое. А допустим котлы, которые будут использоваться на объекте работают на низком давлении. В таком случае нужно ставить специальные регуляторы, которые снижают давление до значений, которое нам нужно. Для начала нам нужно суммировать расход газа, который потребляют наши котлы. Затем выяснить какой у них минимальный расход, а вернее минимальный расход самого малого по мощности котла. Получим диапазон, в котором должен работать наш регулятор, а именно его пропускную

Приветствую дорогие читатели на канале "Газ монтаж!".

В предыдущей статье я описывал процесс проектирования обычного частного дома.

Но мы проектируем и монтируем не только частные дома.

Есть объекты коммунально-бытового назначения.

Обычно там и оборудование помощнее и процесс проектирования поинтереснее.

Поэтому давайте я Вам покажу подбор оборудования при проектировании газоснабжения.

Как обычно все начинается с технических условий, в которых обычно и давление газа уже может быть не только низкое, но и среднее, и даже высокое.

А допустим котлы, которые будут использоваться на объекте работают на низком давлении.

В таком случае нужно ставить специальные регуляторы, которые снижают давление до значений, которое нам нужно.

Для начала нам нужно суммировать расход газа, который потребляют наши котлы.

Затем выяснить какой у них минимальный расход, а вернее минимальный расход самого малого по мощности котла.

Получим диапазон, в котором должен работать наш регулятор, а именно его пропускную способность.

Далее обычно я с помощью программы или запроса в компанию - поставщика прошу подобрать требуемую ГРУ (газо-регуляторную установку).

После того, как они прислали свой подбор, я еще раз проверяю свои значения, чтобы регулятор, измерительное устройство, все подходило под диапазон расходов.

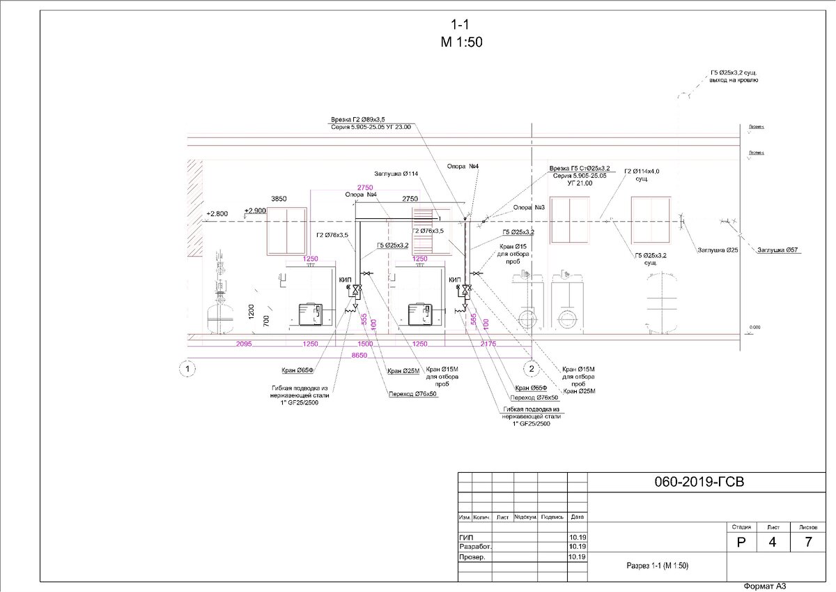
После на плане расставляется ГРУ, котлы, трасса трубопроводов, прикидываю аксонометрию.

Затем делаю гидравлический расчет, чтобы расчитать требуемые диаметры.

И всю эту информацию вношу в проект.

В данном случае главное грамотно составить пояснительную записку, проверить диапазоны расходов и давлений, без ошибок начертить план , требуемые разрезы и конечно же аксонометрию.

В конце идет спецификация оборудования, в которой указывается марка оборудования, количество, единица измерения и даже поставщиков, где все это можно заказать.

Это порядок, который я использую при проектирования проектов коммунально-бытового назначения.

Спасибо, что дочитали до конца!
Ставьте лайк, если было полезно!
Подписывайтесь, будет много интересной и полезной инофрмации!