Найти в Дзене
МОНОЛИТ-ХАУС

Проект двухэтажного кирпичного дома на века

Проект даухэтажного дома из крупноформатного кирпича готов к реализаци. Проект выполнен по индивидуальному заказу для строительства в Выборгском районе Ленинградской области.
Дом из кирпича - настоящее воплощение мечты о родовом гнезде в тени вековых сосен.Благодаря своим классическим пропорциям, этот дом будет актуален и через 50, и через 100 лет.
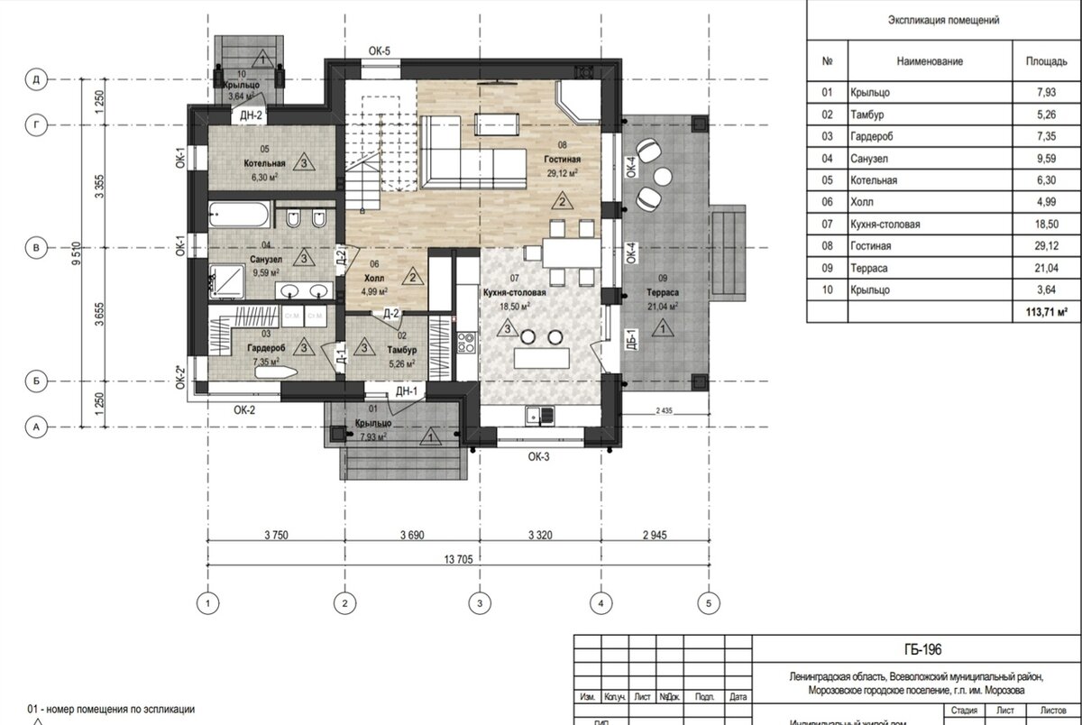
Общая площадь дома - 196м2, жилая - 84м2. Площадь первого этажа - 114м2, второго - 81м2.
Дом рассчитан для комфортного проживания семьи из 4 человек.
Первый этаж - это общие зоны отдыха - кухня - столовая с выходом на террасу и просторная гостиная с камином и большим панорамным окном. Здесь же размещены необходимые хозяйственные и бытовые помещения.
Второй этаж - приватная зона. Здесь устроены четыре спальных комнаты и большой общий санузел. Все пространство объединяет большой холл.
В проекте дома нет никаких лишних деталей. Его конструктив и внутренняя организация пространства отвечают всем пожеланиям заказчиков.
Фундамент - монолитна

Проект даухэтажного дома из крупноформатного кирпича готов к реализаци. Проект выполнен по индивидуальному заказу для строительства в Выборгском районе Ленинградской области.

Визуализация дома из кирпича
Визуализация дома из кирпича


Дом из кирпича - настоящее воплощение мечты о родовом гнезде в тени вековых сосен.Благодаря своим классическим пропорциям, этот дом будет актуален и через 50, и через 100 лет.

Общая площадь дома - 196м2, жилая - 84м2. Площадь первого этажа - 114м2, второго - 81м2.

-2


Дом рассчитан для комфортного проживания семьи из 4 человек.
Первый этаж - это общие зоны отдыха - кухня - столовая с выходом на террасу и просторная гостиная с камином и большим панорамным окном. Здесь же размещены необходимые хозяйственные и бытовые помещения.
Второй этаж - приватная зона. Здесь устроены четыре спальных комнаты и большой общий санузел. Все пространство объединяет большой холл.

Фасад дома со стороны кухни
Фасад дома со стороны кухни

В проекте дома нет никаких лишних деталей. Его конструктив и внутренняя организация пространства отвечают всем пожеланиям заказчиков.
Фундамент - монолитная плита с ростверком
Несущий элемент - монолитные колонны и крупноформатный керамический кирпич
Кровля - металлочерепица
Отделка фасада - натуральный камень, облицовочный кирпич и планкен из лиственницы

В отделке фасадов использованы облицовочный кирпич и планкен из лиственницы
В отделке фасадов использованы облицовочный кирпич и планкен из лиственницы

Команда архитекторов "МОНОЛИТ-ХАУС" готова создать для вас индивидуальный проект дома, отвечающий всем вашим требованиям и пожеланиям.
Мы проектируем и строим загородные дома в Санкт-Петербурге и Ленинградской области уже более 13 лет.

Мы можем проконсультировать вас о загородном проектировании и строительстве по телефону 8 (812) 501-10-20. Примеры наших проектов и готовыъх работ размещены на сайте www.monolit-house.ru