Найти в Дзене

Z39 Маленький, уютный дом с мансардой, двускатной крышей и c фронтальной террасой.

Представляем вашему вниманию проект Z39 — маленький, уютный дом с двускатной крышей, смансардой, фронтальной и боковой террасами. Отделка фасадов из натурального дерева придают дому уютный, «теплый» характер. Преимущества проекта Z39: Если вы ищите проекты домов с верандой, обратите внимание на Z39, террасу у входной группы в этом проекте можно легко переоборудовать в веранду. Понравился проект? Пишите комментарии. Посмотреть другие проекты вы можете на сайте.
Подписывайтесь чтобы быть в курсе новинок.

Представляем вашему вниманию проект Z39 маленький, уютный дом с двускатной крышей, смансардой, фронтальной и боковой террасами. Отделка фасадов из натурального дерева придают дому уютный, «теплый» характер.

-2

Преимущества проекта Z39:

  • Простая форма дома, и двускатная крыша, его небольшая площадь помогут значительно сэкономить денежные средств во время строительства и эксплуатации.
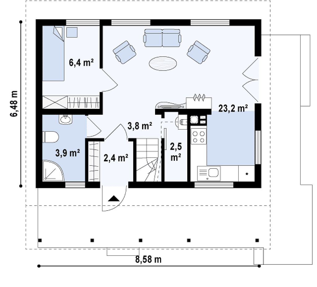
  • Расположение несущих стен дает возможность вносить определенные изменения в планировку: так, например, можно увеличить площадь дополнительной комнаты на первом этаже за счет гостиной, либо наоборот увеличить площадь гостиной, отказавшись от дополнительной комнаты. Кухню можно сделать частично или полностью закрытой.
  • Открытая кухня зрительно увеличивает пространство дневной зоны.
-3
  • Расположенный в центре камин сможет не только украсить собой интерьер, но и стать дополнительным источником тепла в холодное время года.
  • Расположение окон в дневной зоне с трех сторон (северной, западной, южной) способствует ее хорошему естественному освещению.
  • Дополнительная комната на первом этаже делает его более практичным, она особенно актуальна для семей с маленькими детьми и пожилых людей.
  • Санузлы расположенные один над другим упрощают установку водопроводной системы в доме. 

Если вы ищите проекты домов с верандой, обратите внимание на Z39, террасу у входной группы в этом проекте можно легко переоборудовать в веранду.

-4

Понравился проект? Пишите комментарии.

  • Заказать проект можно ЗДЕСЬ! 
  • Все подробности о данном проекте Вы найдете ЗДЕСЬ! 

Посмотреть другие проекты вы можете на сайте.

Подписывайтесь чтобы быть в курсе новинок.