Найти в Дзене
zonagazona

Песочница своими руками

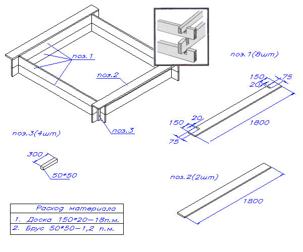
Итак, начнём обустраивать детскую площадку с первого, одного из простых, элемента - песочницы. После того, как определились с местом, начинаем подготовку участка. Под детской песочницей закладываем дренаж из щебня, предварительно удалив дёрн и часть почвы для того, чтобы воде было легко уйти и песок мог быстро просохнуть после дождя. Материал (доски, бруски) для песочницы должен использоваться гладко обработанный, чтобы ребёнок не нахватал заноз. Нам потребуется десять 150 мм досок обрезных, толщиной 20 мм и длинной 1.8 метра. Стенки песочницы будут состоять из двух таких досок и составлять 30 см. Таким образом нам потребуется 8 досок. По краям этих досок выпиливаем пазы, в которые будут вставляться доски при сборке. Для закрепления всей конструкции - по торцам устанавливаем бруски 50х50 (см. схему выше). И в завершении на стенки крепим две доски (а можно и все четыре), которые будут играть роль скамеек. На этих скамейках ребёнок сможет и сидеть и лепить куличики. Если у Вас есть

Итак, начнём обустраивать детскую площадку с первого, одного из простых, элемента - песочницы. После того, как определились с местом, начинаем подготовку участка.

Под детской песочницей закладываем дренаж из щебня, предварительно удалив дёрн и часть почвы для того, чтобы воде было легко уйти и песок мог быстро просохнуть после дождя.

Материал (доски, бруски) для песочницы должен использоваться гладко обработанный, чтобы ребёнок не нахватал заноз. Нам потребуется десять 150 мм досок обрезных, толщиной 20 мм и длинной 1.8 метра. Стенки песочницы будут состоять из двух таких досок и составлять 30 см. Таким образом нам потребуется 8 досок. По краям этих досок выпиливаем пазы, в которые будут вставляться доски при сборке. Для закрепления всей конструкции - по торцам устанавливаем бруски 50х50 (см. схему выше). И в завершении на стенки крепим две доски (а можно и все четыре), которые будут играть роль скамеек. На этих скамейках ребёнок сможет и сидеть и лепить куличики.

-3

Если у Вас есть несколько свободных брёвен, то можно сделать интересную песочницу из пеньков. Брёвна могут быть как строганные, так и дикие.
В зависимости от Ваших возможностей и потребностей песочницу можно сделать любого размера и формы. Брёвна должны быть вкопаны на 20 см.
Пенёчки можно сделать разной высоты, создав эффект стен замка. Из пеньков также можно организовать какие-нибудь столики.

-4
-5
-6

Источник: http://zonagazona.ru/info/pesochnica_svoimi_rukami