Найти в Дзене
Денис Бедный

История строительства загородной усадьбы из СИП-панелей.

Пролог. В этой истории я выступил исполнителем строительства и идейным советником хозяина будущего дома. Наше заочное знакомство состоялось, когда я был в гостях у моего давнего друга и по совместительству заказчика в прошлом. Он и поведал о возможных планах его знакомого на строительства дома, и что как только он определится, то сразу мне позвонит. Так и случилось. В конце апреля 2018 года раздался звонок. Все детали мы обсудили по телефону и сразу приступили к первичной оценке стоимости строительства по первичным эскизам и пожеланиям будущего хозяина дома. Как выяснилось, на тот момент эскизы уже показывались в нескольких строительных компаниях, так как задачей занимался помощник заказчика и моего номера у него не оказалось:) 1.Исходные данные проекта: 2.Планировочное решение: 3.Экстерьер: Архитектурное решение полностью разрабатывалось с опорой на ландшафтное расположение пятна застройки.  Также важным условием было не выпасть из единого стиля строений, которые уже были на участке
Оглавление

Часть - 1.

От идеи к реализации.

Пролог. В этой истории я выступил исполнителем строительства и идейным советником хозяина будущего дома. Наше заочное знакомство состоялось, когда я был в гостях у моего давнего друга и по совместительству заказчика в прошлом. Он и поведал о возможных планах его знакомого на строительства дома, и что как только он определится, то сразу мне позвонит.

Так и случилось. В конце апреля 2018 года раздался звонок. Все детали мы обсудили по телефону и сразу приступили к первичной оценке стоимости строительства по первичным эскизам и пожеланиям будущего хозяина дома. Как выяснилось, на тот момент эскизы уже показывались в нескольких строительных компаниях, так как задачей занимался помощник заказчика и моего номера у него не оказалось:)

1.Исходные данные проекта:

  • Общая площадь - 236,4 кв.м.
  • Габариты - 16,5х24 м
  • Этажность - одноэтажный
  • Фундамент - свайной-винтовой
  • Кровельное покрытие - гибкая черепица
  • Тип крыши - вальма

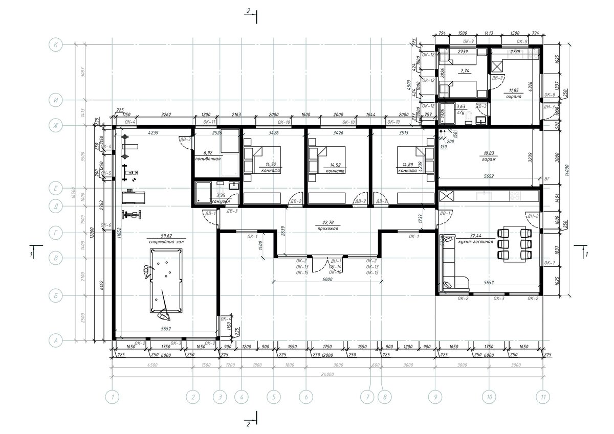
2.Планировочное решение:

  • Спальня — 3 шт.
  • Кухня-гостиная — 1 шт.
  • Бильярдная + спортзал
  • Ванная комната
  • Помывочная
  • Блок-студия для персонала (кухня, спальня, сан. узел)
  • Гараж

3.Экстерьер:

Архитектурное решение полностью разрабатывалось с опорой на ландшафтное расположение пятна застройки.  Также важным условием было не выпасть из единого стиля строений, которые уже были на участке.

  • Отсутствие чердачного перекрытия
  • Высота аттиковых стен 3600 мм, высота в коньке 5232 мм

Конструктивное решение

После знакомства с эскизами дома вместе с заказчиком мы приняли решение полностью переработать проект и подготовить два конструктивных решения по строительству, основными отличиями которых было наличие чердачного перекрытия и  его отсутствие (где потолок сразу является крышей дома, в эскизах фигурировал именно этот вариант). Для нас основной причиной проработки иных вариаций от предложенной стало точное понимание различия в цене строительства и передачи этой информации заказчику для окончательного решения. Создание модели и проработка конструктивных решений заняли у нас пару дней, после чего многостраничные сметы были отправлены на рассмотрение.

-3
Наиболее выгодным экономическим решением оказался вариант с чердачным перекрытием и холодным чердаком. Экономия составила более 250 000 рублей.

Первое посещение участка

Спустя неделю рассмотрений и уточнений меня пригласили на участок, где и планировалось возвести дом. Посещение и личное знакомство мы совместили с осмотром пятна застройки, замером перепада высот на участке и пробным бурением грунта. Пятно застройки было достаточно ровным, без сильных перепадов по всей длине, грунт тоже попался удачный, в верхних слоях находился песок и на глубине 1,8м начинался суглинок, достаточно было свай с длиной ствола 2,5-3м.

Пробное бурение сваи
Пробное бурение сваи


Шлифовка проекта


Максимально проработать и отшлифовать все детали - это один из самых важных этапов, который производится до начала строительных работ. Точное расположение окон и их размер, как это будет выглядеть при полном мебелировании, расположение санфаянса и стороны открывания дверей… в общем не самый захватывающий этап работ, но очень важный и нужный!
При проработке нашего проекта произошло множество изменений, как незначительных, так и кардинальных. Вот некоторые из них:

  • Добавили сан. узел в гостевой спальне
  • Во входной зоне добавили две ниши под гардеробные шкафы
  • Добавили нишу в холле под кушетку
  • Все окна изменились в габаритах и несколько изделий добавилось
  • Помещение помывочной было поделено на три секции: душевая/тех.помещение/сауна
  • В блоке персонала убрали стену, разграничивающую спальное место и кухню
  • Добавили крыльцо в основной входной зоне, в гостиной и блоке персонала
-5

Итоговое проектирование

В начале мая (спустя две недели после первого звонка), согласовав все детали, мы приступили к разработке стандартной проектной документации, которая включает в себя следующие части — АР/КР/КР-1.  Параллельно мы начали подготовку материалов (СИП-панелей и пиломатериалов), из которых и был изготовлен домокомплект по чертежам раздела КР-1. Строительство начали этапами. С готовностью свайного поля был произведен монтаж фундамента.

Монтаж фундамента

Кол-во свай - 99 штук

Монтаж занял два дня и прошел с небольшими сюрпризами. Первым была дорожная плита еще советских времен, которая была закопана на глубине в 1 метр, а вторым - силовой кабель, который проходил через всё пятно застройки на глубине 0,5 метра и никто не знал, где точно он закопан. Мы приняли решение вручную копать приямки под сваи в предполагаемом месте проходящего кабеля, и буквально на второй яме мы его обнаружили. Дополнительно мы выкопали яму под септик и прокопали траншею для ввода воды и труб отопления.

Монтаж ростверка

Расход бруса 200х200мм на ростверк - 216 погонных метров без учёта обрезков и отходов. Брус закрепили на шпильки М16 через двойную гидроизоляцию к оговоркам свай, а также дополнительно скрепили детали между собой скобами и конструкционными саморезами длиной 320 мм. Ростверк должен плотно прилегать к оголовкам свай и жестко быть стянут между собой, так как его основная функция - это распределение нагрузки от ограждающих стен и перекрытий. Монтажные работы заняли 2 полных дня.

Монтаж нулевого перекрытия

Пол первого этажа выполнили из панелей толщиной 174 мм и шириной не превышающей 623 мм с закладной шпонкой из бруса сечением 97×147мм. Для дополнительной защиты от влаги внешнюю часть панелей нулевого перекрытия гидроизолировали битумным праймером. Крепление СИП-панели с роствером производится как саморезами, так и конструкционными шурупами через всю толщину панели. Между собой панели крепятся с помощью бруса и саморезов (гвоздей) с шагом не более 20 см.

Сборка ограждающих конструкций дома

Монтаж ограждающих стен - один из самых быстрых этапов строительства дома из СИП-панелей. В нашем случае, проект не имел архитектурно сложных форм и погода позволяла работать полный день, поэтому ограждающие стены были смонтированы меньше чем за неделю. Весь ограждающий контур выполнили из СИП-панелей толщиной 174 мм и закладными шпонками из бруса сечением 97×147мм.

На момент сборки чердачного перекрытия с погодой повезло меньше, поэтому монтаж производился частями и сразу укрывался тентом от попадания влаги на деревянные конструкции. Все межкомнатные перегородки выполнены по каркасно-рамочной технологии из доски сечением 45×145мм, а вот чердачное перекрытие из СИП-панелей толщиной 174 мм и шириной 413 мм с закладными шпонками из бруса.


Сборка крыши

Общая площадь - 387 кв.м.
Вес кровельного покрытия - 4567 кг.

Наиболее важной конструкцией в любом доме является его крыша, которая предназначена не только для защиты дома от атмосферных осадков, но и для красивого экстерьера. Форма и тип крыши могут существенно изменить визуальное восприятие дома как в лучшую, так и в худшую сторону. В нашем проекте с самого начала проектирования был определен наиболее удачный тип и форма крыши. В процессе строительства производились лишь корректировки по углу ската (уменьшили на 3гр.) и выносам, которые увеличились с 350 мм до 800 мм. Конструктив силового каркаса крыши собран таким образом, что вся нагрузка от крыши переходит на ограждающие стены, а не на чердачное перекрытие.

Конструктив крыши
Конструктив крыши

Монтаж силового каркаса и финишного покрытия крыши

Укладка гибкой черепицы, как и любого финишного покрытия, требует подготовки основания. В данном проекте использовался следующий кровельный пирог:

  1. стропила
  2. мембрана
  3. контррейка
  4. рядная обрешётка
  5. сплошная обрешётка
  6. подкладочный ковер
  7. гибкая черепица

В момент подготовки основания для гибкой черепицы мы установили крюки и желоба водосточной системы, а также подшили софиты завальцованной доской, заранее покрашенной в белый цвет.


Коробка дома готова!

Общий расход:
СИП-панели - 216 шт.
Пиломатериал - 67,4 куб.м.

Коробка дома построена, но работы на объекте продолжились, поэтому я решил поделить отчет о строительстве СИП-усадьбы на несколько частей, в которых расскажу о внешней и внутренней отделке, коммуникациях, ландшафтных работах.

Надеюсь вам понравилась моя первая статья и я буду рад увидеть ваше мнение о данном проекте в комментариях.

Ссылка на оригинальную статью.