Добавить в корзинуПозвонить
Найти в Дзене
Жилье мечты

Как правильно спланировать интерьер своей квартиры и не платить за это дизайнеру

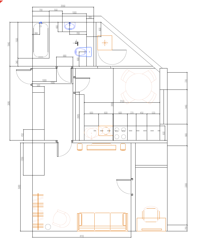
Здравствуйте, друзья! В этой статье я расскажу о начальном этапе ремонта. Чтобы узнать о том, как я попала в ипотечное рабство на 15 лет, переходи по ссылке на мою прошлую статью. Итак, заветные ключи от новой квартиры в кармане, с чего же начать ремонт? Самое первое что сделала я, это сняла фактические размеры комнат, проемов,высоты потолка, расположение труб, газового котла. Так как по профессии я проектировщик, у меня есть чертежная программа AutoCAD, я без труда смогла начертить план своей квартиры. Но я уверена,что сейчас существует множество онлайн сервисов для проектирования, с которыми не сложно разобраться и самостоятельно спланировать квартиру своей мечты. Далее, имея полноценный план квартиры я начала "расставлять" мебель, технику, приборы так, как хочется мне. Мой совет делайте сразу несколько вариантов планировок, так как приходится порой отказываться от одного варианта в силу разных обстоятельств. Например с ванной комнатой пришлось помучаться. Ту планировку которую хоте

Здравствуйте, друзья!

В этой статье я расскажу о начальном этапе ремонта. Чтобы узнать о том, как я попала в ипотечное рабство на 15 лет, переходи по ссылке на мою прошлую статью.

Итак, заветные ключи от новой квартиры в кармане, с чего же начать ремонт? Самое первое что сделала я, это сняла фактические размеры комнат, проемов,высоты потолка, расположение труб, газового котла. Так как по профессии я проектировщик, у меня есть чертежная программа AutoCAD, я без труда смогла начертить план своей квартиры. Но я уверена,что сейчас существует множество онлайн сервисов для проектирования, с которыми не сложно разобраться и самостоятельно спланировать квартиру своей мечты.

Далее, имея полноценный план квартиры я начала "расставлять" мебель, технику, приборы так, как хочется мне. Мой совет делайте сразу несколько вариантов планировок, так как приходится порой отказываться от одного варианта в силу разных обстоятельств.

Например с ванной комнатой пришлось помучаться. Ту планировку которую хотела я, невозможно было осуществить в реальности. Но об ванной комнате я напишу отдельную статью, следите за обновлениями.

Параллельно с планированием я изучала различные дизайны интерьеров, обстановки чужих квартир, пытаясь полностью создать свое представление идеального жилья.

-2
-3
-4

Если у вас в приоритете не стоит цель как можно быстрее заехать в квартиру, то не торопитесь, а продумайте каждую деталь. Будет ли вам удобно подходить к раковине? Не будет ли дверца холодильника мешать проходу? Все эти мелочи не будут омрачать вашу дальнейшую жизнь в новом жилье.

В следующих статьях я буду рассказывать о планировке каждой комнаты отдельно, следите за обновлениями. Спасибо за прочтение и удачного ремонта! Читайте и подписывайтесь, дальше больше!