Добавить в корзинуПозвонить
Найти в Дзене
Дом минимализм

Современная креативная беседка! Сколько она может стоить?

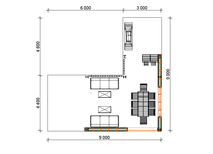
Друзья, представляю вашему вниманию, новый проект, современной беседки, которую я скоро планирую собирать. Стоимость этого творения сообщу в конце статьи, а сейчас про характеристики. Беседка Г образной формы, габаритные размеры основной зоны отдыха 4,4 х 9 м, а зона барбекю 3 х 4,6 м, высота потолка в чистоте 2,9 м. Фундамент - винтовые сваи 108 мм. Основа - каркас из стальной широкополочной двутавровой балки 200 мм. Лаги и стропилы - из сухого строганного бруса 90 х 190 мм. Кровля - гидроизол на OSB плиту, двух слойное покрытие и водостоки под заказ квадратной формы. Окна - в углу глухой однокамерный стеклопакет и алюминиевое окно открывающееся по типу фрамуги. Торцы - стальной окрашенный лист на металлокаркасе. Стены - фиброцементные панели на несущий каркас. Пергола - стальная профильная труба 40 х 80 мм. Пол и потолок - доска ДПК (древесно полимерный композит). Свет - десять точечных светодиодных светильников. Барбекю - стальное 2200 х 600 х 900 мм с активной вытяжкой. А теперь

Друзья, представляю вашему вниманию, новый проект, современной беседки, которую я скоро планирую собирать. Стоимость этого творения сообщу в конце статьи, а сейчас про характеристики.

-2

Беседка Г образной формы, габаритные размеры основной зоны отдыха 4,4 х 9 м, а зона барбекю 3 х 4,6 м, высота потолка в чистоте 2,9 м.

Фундамент - винтовые сваи 108 мм.

Основа - каркас из стальной широкополочной двутавровой балки 200 мм.

Лаги и стропилы - из сухого строганного бруса 90 х 190 мм.

Кровля - гидроизол на OSB плиту, двух слойное покрытие и водостоки под заказ квадратной формы.

Окна - в углу глухой однокамерный стеклопакет и алюминиевое окно открывающееся по типу фрамуги.

-3

Торцы - стальной окрашенный лист на металлокаркасе.

Стены - фиброцементные панели на несущий каркас.

Пергола - стальная профильная труба 40 х 80 мм.

Пол и потолок - доска ДПК (древесно полимерный композит).

Свет - десять точечных светодиодных светильников.

Барбекю - стальное 2200 х 600 х 900 мм с активной вытяжкой.

-4

А теперь про стоимость и как она сформировалась! Ко мне обратился человек с бюджетом до миллиона рублей, который захотел на своем, давно обустроенном, участке, построить современную беседку.

В изначальной концепции я планировал:

  • полностью деревянный каркас с укороченными на один метр свесами кровли и террасы под ними
  • пол и потолок отделать палубной доской из лиственницы, из неё же думал отделать торцы изделия
  • стены с дизайном под камень отделать цокольным пластмассовым сайдингом
  • окна сделать из монолитного поликарбоната

Мне удалось с дорогущим барбекю выйти на цифру чуть больше 1 000 000 руб.

-5

Но что-то пошло не так.

Мне захотелось консоли сделать длиннее, больше, фундаментальнее. А это уже металлокаркас из дорогих двутавров. Стали разбираться с характеристиками доски из лиственницы и поняли, что кому то не хочется в будущем заниматься подкрашиванием. Какая альтернатива, да - это дорогущая доска ДПК, почти вечная, за исключением цветового выгорания. Ок пошли дальше и пластмасу на стенах, пусть даже от хорошего производителя, убираем. А что в замен? Опять премиум! Панели НИЧИХА из фиброцемента и опять дорогущие. Монолитный поликарбонат тоже не зашел, его заменили на однокамерный стеклопакет в углу и алюминиевое окно для проветривания.

Итоговая концепция с барбекю получилась почти 1 500 000 руб.

Вывод - эта беседка в такой комплектации изделие дорогое и фетишное, для педантов! Для практичных и экономных людей больше подойдет мой изначальный, удешевленный вариант, на деревянном каркасе с отделкой из лиственницы!

Спасибо большое за внимание и ваши отзывы!